2013December
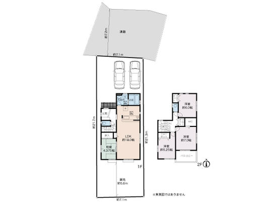
47,300,000 yen, 4LDK, 99.57 sq m
New Homes » Kanto » Kanagawa Prefecture » Yokohama Asahi-ku
 
| | Yokohama-shi, Kanagawa-ku, Asahi 神奈川県横浜市旭区 |
| Sagami Railway Main Line "Mitsuzakai" walk 9 minutes 相鉄本線「三ツ境」歩9分 |
Price 価格 | | 47,300,000 yen 4730万円 | Floor plan 間取り | | 4LDK 4LDK | Units sold 販売戸数 | | 1 units 1戸 | Land area 土地面積 | | 153.22 sq m (measured) 153.22m2(実測) | Building area 建物面積 | | 99.57 sq m (measured) 99.57m2(実測) | Driveway burden-road 私道負担・道路 | | Nothing, North 7.2m width (contact the road width 7.1m) 無、北7.2m幅(接道幅7.1m) | Completion date 完成時期(築年月) | | December 2013 2013年12月 | Address 住所 | | Yokohama-shi, Kanagawa-ku, Asahi Sasanodai 3 神奈川県横浜市旭区笹野台3 | Traffic 交通 | | Sagami Railway Main Line "Mitsuzakai" walk 9 minutes 相鉄本線「三ツ境」歩9分
| Person in charge 担当者より | | This in person in charge Takayuki 担当者中本 隆之 | Contact お問い合せ先 | | Sotetsu Real Estate Sales Co., Ltd. Mitsuzakai shop TEL: 0800-603-2975 [Toll free] mobile phone ・ Also available from PHS Caller ID is not notified Please contact the "saw SUUMO (Sumo)" If it does not lead, If the real estate company 相鉄不動産販売(株)三ツ境店TEL:0800-603-2975【通話料無料】携帯電話・PHSからもご利用いただけます 発信者番号は通知されません 「SUUMO(スーモ)を見た」と問い合わせください つながらない方、不動産会社の方は
| Building coverage, floor area ratio 建ぺい率・容積率 | | 40% ・ 80% 40%・80% | Time residents 入居時期 | | Consultation 相談 | Land of the right form 土地の権利形態 | | Ownership 所有権 | Structure and method of construction 構造・工法 | | Wooden 2-story 木造2階建 | Use district 用途地域 | | One low-rise 1種低層 | Other limitations その他制限事項 | | Building confirmation: No. H25SHC113002 建築確認:第H25SHC113002号 | Overview and notices その他概要・特記事項 | | Contact: Nakamoto Takayuki, Parking: car space 担当者:中本 隆之、駐車場:カースペース | Company profile 会社概要 | | <Mediation> Minister of Land, Infrastructure and Transport (2) the first 006,809 No. Sotetsu Real Estate Sales Co., Ltd. Mitsuzakai shop Yubinbango246-0022 Yokohama-shi, Kanagawa-ku, Seya Mitsuzakai 4-14 <仲介>国土交通大臣(2)第006809号相鉄不動産販売(株)三ツ境店〒246-0022 神奈川県横浜市瀬谷区三ツ境4-14 |
 Local appearance photo
現地外観写真
 Floor plan
間取り図
Location
|