New Homes » Kanto » Kanagawa Prefecture » Yokohama Asahi-ku
 
| | Yokohama-shi, Kanagawa-ku, Asahi 神奈川県横浜市旭区 |
| Sagami Railway Main Line "Mitsuzakai" walk 9 minutes 相鉄本線「三ツ境」歩9分 |
Features pickup 特徴ピックアップ | | Parking two Allowed / Bathroom Dryer / Yang per good / A quiet residential area / LDK15 tatami mats or more / Toilet 2 places / 2-story / South balcony / Underfloor Storage / The window in the bathroom / Dish washing dryer / City gas 駐車2台可 /浴室乾燥機 /陽当り良好 /閑静な住宅地 /LDK15畳以上 /トイレ2ヶ所 /2階建 /南面バルコニー /床下収納 /浴室に窓 /食器洗乾燥機 /都市ガス | Price 価格 | | 47,300,000 yen ・ 47,300,000 yen 4730万円・4730万円 | Floor plan 間取り | | 4LDK 4LDK | Units sold 販売戸数 | | 2 units 2戸 | Total units 総戸数 | | 2 units 2戸 | Land area 土地面積 | | 151.76 sq m ~ 153.22 sq m (45.90 tsubo ~ 46.34 tsubo) (Registration) 151.76m2 ~ 153.22m2(45.90坪 ~ 46.34坪)(登記) | Building area 建物面積 | | 99.57 sq m ~ 100.61 sq m (30.11 tsubo ~ 30.43 tsubo) (Registration) 99.57m2 ~ 100.61m2(30.11坪 ~ 30.43坪)(登記) | Completion date 完成時期(築年月) | | Mid-January 2014 2014年1月中旬予定 | Address 住所 | | Yokohama-shi, Kanagawa-ku, Asahi Sasanodai 3-4-10 神奈川県横浜市旭区笹野台3-4-10 | Traffic 交通 | | Sagami Railway Main Line "Mitsuzakai" walk 9 minutes 相鉄本線「三ツ境」歩9分
| Contact お問い合せ先 | | Sotetsu Real Estate Sales Co., Ltd. Mitsuzakai shop TEL: 0800-603-2975 [Toll free] mobile phone ・ Also available from PHS Caller ID is not notified Please contact the "saw SUUMO (Sumo)" If it does not lead, If the real estate company 相鉄不動産販売(株)三ツ境店TEL:0800-603-2975【通話料無料】携帯電話・PHSからもご利用いただけます 発信者番号は通知されません 「SUUMO(スーモ)を見た」と問い合わせください つながらない方、不動産会社の方は
| Building coverage, floor area ratio 建ぺい率・容積率 | | Kenpei rate: 40%, Volume ratio: 80% 建ペい率:40%、容積率:80% | Time residents 入居時期 | | Mid-January 2014 2014年1月中旬予定 | Land of the right form 土地の権利形態 | | Ownership 所有権 | Use district 用途地域 | | One low-rise 1種低層 | Land category 地目 | | Residential land 宅地 | Other limitations その他制限事項 | | Height district 高度地区 | Overview and notices その他概要・特記事項 | | Building confirmation number: No. H25SHC113003 建築確認番号:第H25SHC113003号 | Company profile 会社概要 | | <Mediation> Minister of Land, Infrastructure and Transport (2) the first 006,809 No. Sotetsu Real Estate Sales Co., Ltd. Mitsuzakai shop Yubinbango246-0022 Yokohama-shi, Kanagawa-ku, Seya Mitsuzakai 4-14 <仲介>国土交通大臣(2)第006809号相鉄不動産販売(株)三ツ境店〒246-0022 神奈川県横浜市瀬谷区三ツ境4-14 |
Local appearance photo現地外観写真  Local (August 2013) Shooting
現地(2013年8月)撮影
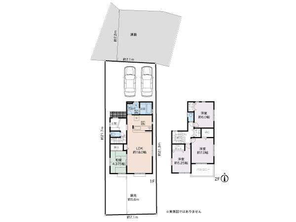
Floor plan間取り図  (1 Building), Price 48,800,000 yen, 4LDK, Land area 153.22 sq m , Building area 99.57 sq m
(1号棟)、価格4880万円、4LDK、土地面積153.22m2、建物面積99.57m2
 (Building 2), Price 48,600,000 yen, 4LDK, Land area 151.76 sq m , Building area 100.61 sq m
(2号棟)、価格4860万円、4LDK、土地面積151.76m2、建物面積100.61m2
Location
|