New Homes » Kanto » Kanagawa Prefecture » Yokohama Asahi-ku
 
| | Yokohama-shi, Kanagawa-ku, Asahi 神奈川県横浜市旭区 |
| Sagami Railway Main Line "Futamatagawa" walk 20 minutes 相鉄本線「二俣川」歩20分 |
| 2 along the line more accessible, Yang per good, A quiet residential area, LDK15 tatami mats or more, Parking two Allowed, Corresponding to the flat-35S, Pre-ground survey, Year Available, Energy-saving water heaters, System kitchen, Bathroom Dryer, All stay 2沿線以上利用可、陽当り良好、閑静な住宅地、LDK15畳以上、駐車2台可、フラット35Sに対応、地盤調査済、年内入居可、省エネ給湯器、システムキッチン、浴室乾燥機、全居 |
| 2 along the line more accessible, Yang per good, A quiet residential area, LDK15 tatami mats or more, Parking two Allowed, Corresponding to the flat-35S, Pre-ground survey, Year Available, Energy-saving water heaters, System kitchen, Bathroom Dryer, All room storage, Around traffic fewerese-style room, Shaping land, Washbasin with shower, Face-to-face kitchen, Toilet 2 places, Bathroom 1 tsubo or more, 2-story, South balcony, Double-glazing, Otobasu, Warm water washing toilet seat, Underfloor Storage, The window in the bathroom, Leafy residential area, Dish washing dryer, Water filter 2沿線以上利用可、陽当り良好、閑静な住宅地、LDK15畳以上、駐車2台可、フラット35Sに対応、地盤調査済、年内入居可、省エネ給湯器、システムキッチン、浴室乾燥機、全居室収納、周辺交通量少なめ、和室、整形地、シャワー付洗面台、対面式キッチン、トイレ2ヶ所、浴室1坪以上、2階建、南面バルコニー、複層ガラス、オートバス、温水洗浄便座、床下収納、浴室に窓、緑豊かな住宅地、食器洗乾燥機、浄水器 |
Features pickup 特徴ピックアップ | | Corresponding to the flat-35S / Pre-ground survey / Year Available / Parking two Allowed / 2 along the line more accessible / Energy-saving water heaters / System kitchen / Bathroom Dryer / Yang per good / All room storage / A quiet residential area / LDK15 tatami mats or more / Around traffic fewer / Japanese-style room / Shaping land / Washbasin with shower / Face-to-face kitchen / Toilet 2 places / Bathroom 1 tsubo or more / 2-story / South balcony / Double-glazing / Otobasu / Warm water washing toilet seat / Underfloor Storage / The window in the bathroom / Leafy residential area / Dish washing dryer / Water filter フラット35Sに対応 /地盤調査済 /年内入居可 /駐車2台可 /2沿線以上利用可 /省エネ給湯器 /システムキッチン /浴室乾燥機 /陽当り良好 /全居室収納 /閑静な住宅地 /LDK15畳以上 /周辺交通量少なめ /和室 /整形地 /シャワー付洗面台 /対面式キッチン /トイレ2ヶ所 /浴室1坪以上 /2階建 /南面バルコニー /複層ガラス /オートバス /温水洗浄便座 /床下収納 /浴室に窓 /緑豊かな住宅地 /食器洗乾燥機 /浄水器 | Price 価格 | | 35,200,000 yen 3520万円 | Floor plan 間取り | | 4LDK 4LDK | Units sold 販売戸数 | | 1 units 1戸 | Total units 総戸数 | | 1 units 1戸 | Land area 土地面積 | | 120.43 sq m (measured) 120.43m2(実測) | Building area 建物面積 | | 97.09 sq m (registration) 97.09m2(登記) | Driveway burden-road 私道負担・道路 | | Nothing, North 4m width 無、北4m幅 | Completion date 完成時期(築年月) | | October 2013 2013年10月 | Address 住所 | | Yokohama-shi, Kanagawa-ku, Asahi Kirigasaku 神奈川県横浜市旭区桐が作 | Traffic 交通 | | Sagami Railway Main Line "Futamatagawa" walk 20 minutes Sagami Railway Main Line "Futamatagawa" bus 5 minutes Hon'yado Kaikan walk 5 minutes 相鉄本線「二俣川」歩20分 相鉄本線「二俣川」バス5分本宿会館歩5分
| Contact お問い合せ先 | | Century 21 (Ltd.) a central residential TEL: 0800-603-3014 [Toll free] mobile phone ・ Also available from PHS Caller ID is not notified Please contact the "saw SUUMO (Sumo)" If it does not lead, If the real estate company センチュリー21(株)中央住宅TEL:0800-603-3014【通話料無料】携帯電話・PHSからもご利用いただけます 発信者番号は通知されません 「SUUMO(スーモ)を見た」と問い合わせください つながらない方、不動産会社の方は
| Building coverage, floor area ratio 建ぺい率・容積率 | | Fifty percent ・ 80% 50%・80% | Time residents 入居時期 | | Immediate available 即入居可 | Land of the right form 土地の権利形態 | | Ownership 所有権 | Structure and method of construction 構造・工法 | | Wooden 2-story 木造2階建 | Construction 施工 | | (Ltd.) Asakawa Home (株)アサカワホーム | Use district 用途地域 | | Urbanization control area, Unspecified 市街化調整区域、無指定 | Other limitations その他制限事項 | | Set-back: already セットバック:済 | Overview and notices その他概要・特記事項 | | Facilities: Public Water Supply, This sewage, Individual LPG, Building Permits reason: City Planning Law Enforcement Ordinance Article 36 corresponds to 1, Item No. 3 b, Building confirmation number: 105689, Parking: car space 設備:公営水道、本下水、個別LPG、建築許可理由:都市計画法施行令36条1項3号ロに該当、建築確認番号:105689、駐車場:カースペース | Company profile 会社概要 | | <Mediation> Governor of Kanagawa Prefecture (3) No. Century 21 (Ltd.) a central residential Yubinbango241-0821 Yokohama City, Kanagawa Prefecture Asahi-ku, the first 023,979 Futamatagawa 2-56-1 <仲介>神奈川県知事(3)第023979号センチュリー21(株)中央住宅〒241-0821 神奈川県横浜市旭区二俣川2-56-1 |
Local appearance photo現地外観写真  Local (12 May 2013) Shooting
現地(2013年12月)撮影
Livingリビング  Local (12 May 2013) Shooting
現地(2013年12月)撮影
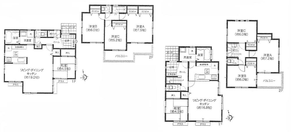
Floor plan間取り図  35,200,000 yen, 4LDK, Land area 120.43 sq m , Building area 97.09 sq m
3520万円、4LDK、土地面積120.43m2、建物面積97.09m2
Local appearance photo現地外観写真  Local (12 May 2013) Shooting
現地(2013年12月)撮影
Livingリビング  Local (12 May 2013) Shooting
現地(2013年12月)撮影
Bathroom浴室  Local (12 May 2013) Shooting
現地(2013年12月)撮影
Kitchenキッチン  Local (12 May 2013) Shooting
現地(2013年12月)撮影
Non-living roomリビング以外の居室  Local (12 May 2013) Shooting
現地(2013年12月)撮影
Entrance玄関  Local (12 May 2013) Shooting
現地(2013年12月)撮影
Wash basin, toilet洗面台・洗面所  Local (12 May 2013) Shooting
現地(2013年12月)撮影
Toiletトイレ  Local (12 May 2013) Shooting
現地(2013年12月)撮影
Local photos, including front road前面道路含む現地写真  Local (12 May 2013) Shooting
現地(2013年12月)撮影
Balconyバルコニー  Local (12 May 2013) Shooting
現地(2013年12月)撮影
Otherその他  View
眺望
Kitchenキッチン  Local (12 May 2013) Shooting
現地(2013年12月)撮影
Non-living roomリビング以外の居室  Local (12 May 2013) Shooting
現地(2013年12月)撮影
 Local (12 May 2013) Shooting
現地(2013年12月)撮影
 Local (12 May 2013) Shooting
現地(2013年12月)撮影
Location
|