New Homes » Kanto » Kanagawa Prefecture » Yokohama Asahi-ku
 
| | Yokohama-shi, Kanagawa-ku, Asahi 神奈川県横浜市旭区 |
| Sagami Railway Main Line "Tsurugamine" 10 minutes Shirane stand the second step 5 minutes by bus 相鉄本線「鶴ヶ峰」バス10分白根台第2歩5分 |
| Entrance tile natural stone used ・ Car space two possible (by car) ・ Good day per southwest road ・ Livable 2-story, 4LDK ・ Local will guide you, Please feel free to contact us. 玄関タイル天然石使用・カースペース2台可(車種による)・南西道路につき日当たり良好・暮らしやすい2階建、4LDK・現地ご案内いたします、お気軽にお問い合わせください。 |
| The outer wall fire protection, Excellent Asahi Kasei power board used for heat insulation, etc. ・ Solid base specification with excellent earthquake resistance ・ Room pair glass ・ Water filter, Bathroom Dryer, Shampoo dresser such as in-room facilities enhancement 外壁は防火性、断熱性等に優れた旭化成パワーボード使用・耐震性に優れたベタ基礎仕様・居室ペアガラス・浄水器、浴室乾燥機、シャンプードレッサー等室内設備充実 |
Features pickup 特徴ピックアップ | | Corresponding to the flat-35S / Year Available / Parking two Allowed / System kitchen / Bathroom Dryer / All room storage / A quiet residential area / Japanese-style room / Shaping land / Washbasin with shower / Face-to-face kitchen / Toilet 2 places / Bathroom 1 tsubo or more / 2-story / Double-glazing / Warm water washing toilet seat / Underfloor Storage / The window in the bathroom / TV monitor interphone / Southwestward / Water filter / All rooms are two-sided lighting / roof balcony フラット35Sに対応 /年内入居可 /駐車2台可 /システムキッチン /浴室乾燥機 /全居室収納 /閑静な住宅地 /和室 /整形地 /シャワー付洗面台 /対面式キッチン /トイレ2ヶ所 /浴室1坪以上 /2階建 /複層ガラス /温水洗浄便座 /床下収納 /浴室に窓 /TVモニタ付インターホン /南西向き /浄水器 /全室2面採光 /ルーフバルコニー | Price 価格 | | 31,800,000 yen 3180万円 | Floor plan 間取り | | 4LDK 4LDK | Units sold 販売戸数 | | 1 units 1戸 | Land area 土地面積 | | 109.33 sq m (33.07 tsubo) (Registration) 109.33m2(33.07坪)(登記) | Building area 建物面積 | | 86.94 sq m (26.29 tsubo) (Registration) 86.94m2(26.29坪)(登記) | Driveway burden-road 私道負担・道路 | | Nothing, Southwest 4.5m width 無、南西4.5m幅 | Completion date 完成時期(築年月) | | November 2013 2013年11月 | Address 住所 | | Yokohama-shi, Kanagawa-ku, Asahi Shirane 8 神奈川県横浜市旭区白根8 | Traffic 交通 | | Sagami Railway Main Line "Tsurugamine" 10 minutes Shirane stand the second step 5 minutes by bus 相鉄本線「鶴ヶ峰」バス10分白根台第2歩5分
| Person in charge 担当者より | | We are dedicating personnel system for each person in charge customers. [Your tour of the day is also possible! ] Inquiry of the Property Century 21 Global Home "residence of the Information Center" sales staff to please feel free to! 0800-603-7494 担当者お客様毎に専属担当者制です。【当日のご見学も可能です!】本物件のお問い合わせはセンチュリー21グローバルホーム「住まいの情報館」営業スタッフまでお気軽にどうぞ!0800-603-7494 | Contact お問い合せ先 | | TEL: 0800-603-7494 [Toll free] mobile phone ・ Also available from PHS Caller ID is not notified Please contact the "saw SUUMO (Sumo)" If it does not lead, If the real estate company TEL:0800-603-7494【通話料無料】携帯電話・PHSからもご利用いただけます 発信者番号は通知されません 「SUUMO(スーモ)を見た」と問い合わせください つながらない方、不動産会社の方は
| Building coverage, floor area ratio 建ぺい率・容積率 | | Fifty percent ・ 80% 50%・80% | Time residents 入居時期 | | Consultation 相談 | Land of the right form 土地の権利形態 | | Ownership 所有権 | Structure and method of construction 構造・工法 | | Wooden 2-story 木造2階建 | Use district 用途地域 | | One low-rise 1種低層 | Overview and notices その他概要・特記事項 | | The person in charge: is dedicating personnel system for each customer. , Facilities: Public Water Supply, This sewage, Individual LPG, Building confirmation number: first H25SBC- Make 01604Y No., Parking: car space 担当者:お客様毎に専属担当者制です。、設備:公営水道、本下水、個別LPG、建築確認番号:第H25SBC-確01604Y号、駐車場:カースペース | Company profile 会社概要 | | <Mediation> Kanagawa Governor (2) the first 026,326 No. Century 21 Global Home Co., Ltd. Yubinbango221-0825 Yokohama-shi, Kanagawa, Kanagawa-ku, Sorimachi 4-37-3 Nissin building Yokohama Sorimachi first floor ・ Second floor <仲介>神奈川県知事(2)第026326号センチュリー21グローバルホーム(株)〒221-0825 神奈川県横浜市神奈川区反町4-37-3 日伸ビル横浜反町1階・2階 |
Local appearance photo現地外観写真  Local (October 8, 2013) Shooting
現地(2013年10月8日)撮影
Local photos, including front road前面道路含む現地写真  Local (October 8, 2013) Shooting
現地(2013年10月8日)撮影
 Local (October 8, 2013) Shooting
現地(2013年10月8日)撮影
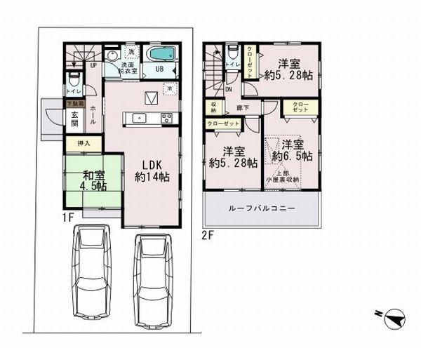
Floor plan間取り図  31,800,000 yen, 4LDK, Land area 109.33 sq m , Building area 86.94 sq m
3180万円、4LDK、土地面積109.33m2、建物面積86.94m2
Junior high school中学校  1420m to Yokohama Municipal Asahikita junior high school
横浜市立旭北中学校まで1420m
Primary school小学校  710m to Yokohama Municipal Shirane Elementary School
横浜市立白根小学校まで710m
Location
|