New Homes » Kanto » Kanagawa Prefecture » Yokohama Asahi-ku
 
| | Yokohama-shi, Kanagawa-ku, Asahi 神奈川県横浜市旭区 |
| Sagami Railway Main Line "Futamatagawa" walk 20 minutes 相鉄本線「二俣川」歩20分 |
| LDK17.5 Pledge popular counter kitchen southeast 4m public roads good per yang LDK17.5帖人気のカウンターキッチン東南4m公道陽当たり良好 |
| Including alley-shaped portion about 22 square meters in land area 土地面積に路地状部分約22平米含む |
Features pickup 特徴ピックアップ | | System kitchen / Yang per good / LDK15 tatami mats or more / Face-to-face kitchen / Toilet 2 places / 2-story / Otobasu / City gas システムキッチン /陽当り良好 /LDK15畳以上 /対面式キッチン /トイレ2ヶ所 /2階建 /オートバス /都市ガス | Price 価格 | | 29,800,000 yen 2980万円 | Floor plan 間取り | | 4LDK 4LDK | Units sold 販売戸数 | | 1 units 1戸 | Land area 土地面積 | | 113.49 sq m (measured) 113.49m2(実測) | Building area 建物面積 | | 96.47 sq m 96.47m2 | Driveway burden-road 私道負担・道路 | | Nothing, Southeast 4m width 無、南東4m幅 | Completion date 完成時期(築年月) | | March 2014 2014年3月 | Address 住所 | | Yokohama-shi, Kanagawa-ku, Asahi Minamihonjuku cho 神奈川県横浜市旭区南本宿町 | Traffic 交通 | | Sagami Railway Main Line "Futamatagawa" walk 20 minutes 相鉄本線「二俣川」歩20分
| Related links 関連リンク | | [Related Sites of this company] 【この会社の関連サイト】 | Contact お問い合せ先 | | TEL: 0800-603-0959 [Toll free] mobile phone ・ Also available from PHS Caller ID is not notified Please contact the "saw SUUMO (Sumo)" If it does not lead, If the real estate company TEL:0800-603-0959【通話料無料】携帯電話・PHSからもご利用いただけます 発信者番号は通知されません 「SUUMO(スーモ)を見た」と問い合わせください つながらない方、不動産会社の方は
| Building coverage, floor area ratio 建ぺい率・容積率 | | 60% ・ 160% 60%・160% | Time residents 入居時期 | | Consultation 相談 | Land of the right form 土地の権利形態 | | Ownership 所有権 | Structure and method of construction 構造・工法 | | Wooden 2-story 木造2階建 | Use district 用途地域 | | One dwelling 1種住居 | Other limitations その他制限事項 | | Organize Code: 603338, 整理コード:603338、 | Overview and notices その他概要・特記事項 | | Facilities: Public Water Supply, This sewage, City gas, Building confirmation number: 13KAK Ken確 No. 05736 設備:公営水道、本下水、都市ガス、建築確認番号:13KAK建確05736号 | Company profile 会社概要 | | <Mediation> Governor of Kanagawa Prefecture (8) No. 014861 No. Century 21 Hitachi Home Sales six Division Yubinbango220-0004 Kanagawa Prefecture, Nishi-ku, Yokohama-shi Kitasaiwai 2-15-1 Tobu Yokohama the second building on the ground floor <仲介>神奈川県知事(8)第014861号センチュリー21(株)日立ホーム営業六課〒220-0004 神奈川県横浜市西区北幸2-15-1 東武横浜第2ビル1階 |
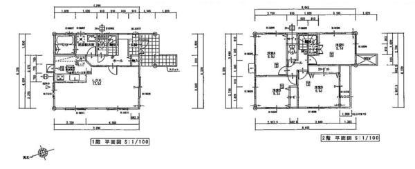
Floor plan間取り図  29,800,000 yen, 4LDK, Land area 113.49 sq m , Building area 96.47 sq m
2980万円、4LDK、土地面積113.49m2、建物面積96.47m2
Supermarketスーパー  1402m to Seiyu Futamatagawa shop
西友二俣川店まで1402m
Junior high school中学校  781m to Yokohama Municipal Makigahara junior high school
横浜市立万騎が原中学校まで781m
Primary school小学校  567m to Yokohama Municipal Minamihonjuku Elementary School
横浜市立南本宿小学校まで567m
Kindergarten ・ Nursery幼稚園・保育園  Hon'yado 735m to kindergarten
本宿幼稚園まで735m
Hospital病院  Foundation Sekizenkai Hyugadai 1727m to the hospital
公益財団法人積善会日向台病院まで1727m
Park公園  665m until Minamihonjuku park
南本宿公園まで665m
Location
|