2013November
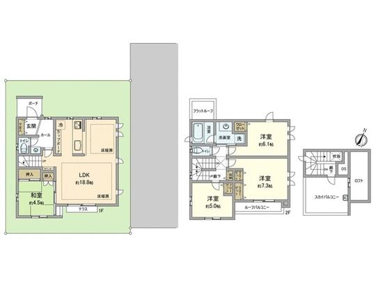
42,570,000 yen, 4LDK, 99.97 sq m
New Homes » Kanto » Kanagawa Prefecture » Yokohama Asahi-ku
 
| | Yokohama-shi, Kanagawa-ku, Asahi 神奈川県横浜市旭区 |
| Sagami Railway Main Line "Kibogaoka" walk 13 minutes 相鉄本線「希望ヶ丘」歩13分 |
Price 価格 | | 42,570,000 yen 4257万円 | Floor plan 間取り | | 4LDK 4LDK | Units sold 販売戸数 | | 1 units 1戸 | Land area 土地面積 | | 100.22 sq m (measured) 100.22m2(実測) | Building area 建物面積 | | 99.97 sq m (measured) 99.97m2(実測) | Driveway burden-road 私道負担・道路 | | 217.88 sq m 217.88m2 | Completion date 完成時期(築年月) | | November 2013 2013年11月 | Address 住所 | | Yokohama-shi, Kanagawa-ku, Asahi everything cho 神奈川県横浜市旭区善部町 | Traffic 交通 | | Sagami Railway Main Line "Kibogaoka" walk 13 minutes Sagami Railway Izumino Line "Minami Makigahara" walk 14 minutes 相鉄本線「希望ヶ丘」歩13分 相鉄いずみ野線「南万騎が原」歩14分
| Person in charge 担当者より | | The person in charge Masaya Katagiri (deputy manager) 担当者片桐雅也(副店長) | Contact お問い合せ先 | | Mitsui Rehouse Futamatagawa shop Mitsui Fudosan Realty (Ltd.) TEL: 0120-993831 [Toll free] Please contact the "saw SUUMO (Sumo)" 三井のリハウス二俣川店三井不動産リアルティ(株)TEL:0120-993831【通話料無料】「SUUMO(スーモ)を見た」と問い合わせください | Building coverage, floor area ratio 建ぺい率・容積率 | | Fifty percent ・ Hundred percent 50%・100% | Time residents 入居時期 | | Immediate available 即入居可 | Land of the right form 土地の権利形態 | | Ownership 所有権 | Structure and method of construction 構造・工法 | | Wooden 2-story 木造2階建 | Use district 用途地域 | | One low-rise 1種低層 | Other limitations その他制限事項 | | Large-scale projects of the development area 2900m2 more 開発面積2900m2以上の大規模プロジェクト | Overview and notices その他概要・特記事項 | | Contact: Masaya Katagiri (deputy manager), Parking: car space 担当者:片桐雅也(副店長)、駐車場:カースペース | Company profile 会社概要 | | <Mediation> Minister of Land, Infrastructure and Transport (13) No. 000777 (one company) Property distribution management Association (Corporation) metropolitan area real estate Fair Trade Council member Mitsui Rehouse Futamatagawa shop Mitsui Fudosan Realty Co. Yubinbango241-0821 Yokohama-shi, Kanagawa-ku, Asahi Futamatagawa 2-62-7 Ozeki building first floor <仲介>国土交通大臣(13)第000777号(一社)不動産流通経営協会会員 (公社)首都圏不動産公正取引協議会加盟三井のリハウス二俣川店三井不動産リアルティ(株)〒241-0821 神奈川県横浜市旭区二俣川2-62-7 小関ビル1階 |
 Local appearance photo
現地外観写真
 Floor plan
間取り図
Location
|