2013December
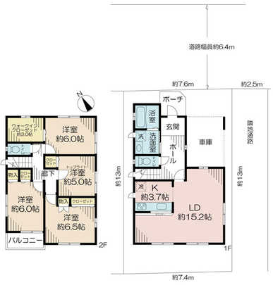
33,800,000 yen, 4LDK, 115.1 sq m
New Homes » Kanto » Kanagawa Prefecture » Yokohama Hodogaya-ku
 
| | Yokohama, Kanagawa Prefecture Hodogaya-ku, 神奈川県横浜市保土ケ谷区 |
| JR Yokosuka Line "Hodogaya" bus 14 minutes Kariba AzumaAyumi 3 minutes JR横須賀線「保土ヶ谷」バス14分狩場東歩3分 |
Price 価格 | | 33,800,000 yen 3380万円 | Floor plan 間取り | | 4LDK 4LDK | Units sold 販売戸数 | | 1 units 1戸 | Land area 土地面積 | | 100.49 sq m (registration) 100.49m2(登記) | Building area 建物面積 | | 115.1 sq m (registration) 115.1m2(登記) | Driveway burden-road 私道負担・道路 | | Nothing, Northeast 6.4m width (contact the road width 7.6m) 無、北東6.4m幅(接道幅7.6m) | Completion date 完成時期(築年月) | | December 2013 2013年12月 | Address 住所 | | Yokohama, Kanagawa Prefecture Hodogaya-ku, Kariba-cho 神奈川県横浜市保土ケ谷区狩場町 | Traffic 交通 | | JR Yokosuka Line "Hodogaya" bus 14 minutes Kariba AzumaAyumi 3 minutes Shinjuku line vortex Shonan "Hodogaya" bus 14 minutes Kariba AzumaAyumi 3 minutes JR横須賀線「保土ヶ谷」バス14分狩場東歩3分 湘南新宿ライン宇須「保土ヶ谷」バス14分狩場東歩3分
| Contact お問い合せ先 | | TEL: 0800-603-0239 [Toll free] mobile phone ・ Also available from PHS Caller ID is not notified Please contact the "saw SUUMO (Sumo)" If it does not lead, If the real estate company TEL:0800-603-0239【通話料無料】携帯電話・PHSからもご利用いただけます 発信者番号は通知されません 「SUUMO(スーモ)を見た」と問い合わせください つながらない方、不動産会社の方は
| Building coverage, floor area ratio 建ぺい率・容積率 | | 60% ・ 200% 60%・200% | Land of the right form 土地の権利形態 | | Ownership 所有権 | Structure and method of construction 構造・工法 | | Wooden 2-story 木造2階建 | Use district 用途地域 | | One dwelling 1種住居 | Other limitations その他制限事項 | | ・ specification ・ Facilities are subject to change per schedule. ・ Position pending garbage yard. There is a case where a telephone pole falls within the site. ・仕様・設備は予定につき変更になる場合があります。 ・ゴミ置場の位置未定。敷地内に電柱が入る場合があります。 | Overview and notices その他概要・特記事項 | | Parking: car space 駐車場:カースペース | Company profile 会社概要 | | <Mediation> Minister of Land, Infrastructure and Transport (8) No. 003394 No. Taisei the back Real Estate Sales Co., Ltd. Kannai office Yubinbango231-0015 Yokohama-shi, Kanagawa, Naka-ku, Onoe-cho 3-35 <仲介>国土交通大臣(8)第003394号大成有楽不動産販売(株)関内営業所〒231-0015 神奈川県横浜市中区尾上町3-35 |
Local appearance photo現地外観写真  Kariba Town, newly built Building 2 appearance 2013 December shooting
狩場町新築2号棟外観 平成25年12月撮影
 Floor plan
間取り図
Location
|