New Homes » Kanto » Kanagawa Prefecture » Yokohama Hodogaya-ku
 
| | Yokohama, Kanagawa Prefecture Hodogaya-ku, 神奈川県横浜市保土ケ谷区 |
| JR Yokosuka Line "Hodogaya" walk 12 minutes JR横須賀線「保土ヶ谷」歩12分 |
| Livable 2-story house ・ Good living environment per quiet residential area ・ Good day every south-facing dwelling unit ・ During preview accepted per building completed already, Please feel free to contact us. 暮らしやすい2階建住宅・閑静な住宅街につき住環境良好・南向き住戸につき日当たり良好・建物完成済につき内覧受付中、お気軽にお問い合わせください。 |
| Educational institutions, Supermarket, Friendly environment within walking distance of the park ・ Face-to-face kitchen adopt bouncing of conversation ・ All room storage Yes ・ Good day per south road 教育施設、スーパー、公園が徒歩圏内の便利な環境・会話の弾む対面キッチン採用・全居室収納有・南道路につき日当たり良好 |
Features pickup 特徴ピックアップ | | Year Available / LDK18 tatami mats or more / Facing south / All room storage / Siemens south road / A quiet residential area / Japanese-style room / Face-to-face kitchen / Toilet 2 places / 2-story / South balcony / City gas / Storeroom 年内入居可 /LDK18畳以上 /南向き /全居室収納 /南側道路面す /閑静な住宅地 /和室 /対面式キッチン /トイレ2ヶ所 /2階建 /南面バルコニー /都市ガス /納戸 | Price 価格 | | 34,400,000 yen ~ 37,400,000 yen 3440万円 ~ 3740万円 | Floor plan 間取り | | 1LDK + 3S (storeroom) ~ 2LDK + 2S (storeroom) 1LDK+3S(納戸) ~ 2LDK+2S(納戸) | Units sold 販売戸数 | | 3 units 3戸 | Land area 土地面積 | | 100 sq m ~ 106 sq m (30.24 tsubo ~ 32.06 tsubo) (Registration) 100m2 ~ 106m2(30.24坪 ~ 32.06坪)(登記) | Building area 建物面積 | | 94.18 sq m ~ 104.34 sq m (28.48 tsubo ~ 31.56 tsubo) (Registration) 94.18m2 ~ 104.34m2(28.48坪 ~ 31.56坪)(登記) | Driveway burden-road 私道負担・道路 | | Setback: upon 2.9 sq m ~ 6.9 sq m セットバック:要2.9m2 ~ 6.9m2 | Completion date 完成時期(築年月) | | 2014 end of March plan 2014年3月末予定 | Address 住所 | | Yokohama, Kanagawa Prefecture Hodogaya-ku, Setogaya cho 神奈川県横浜市保土ケ谷区瀬戸ケ谷町 | Traffic 交通 | | JR Yokosuka Line "Hodogaya" walk 12 minutes JR横須賀線「保土ヶ谷」歩12分
| Person in charge 担当者より | | We are dedicating personnel system for each person in charge customers. [Your tour of the day is also possible! ] Inquiry of the Property Century 21 Global Home "residence of the Information Center" sales staff to please feel free to! 0800-603-7494 担当者お客様毎に専属担当者制です。【当日のご見学も可能です!】本物件のお問い合わせはセンチュリー21グローバルホーム「住まいの情報館」営業スタッフまでお気軽にどうぞ!0800-603-7494 | Contact お問い合せ先 | | TEL: 0800-603-7494 [Toll free] mobile phone ・ Also available from PHS Caller ID is not notified Please contact the "saw SUUMO (Sumo)" If it does not lead, If the real estate company TEL:0800-603-7494【通話料無料】携帯電話・PHSからもご利用いただけます 発信者番号は通知されません 「SUUMO(スーモ)を見た」と問い合わせください つながらない方、不動産会社の方は
| Building coverage, floor area ratio 建ぺい率・容積率 | | Building coverage: 60%, Volume ratio: 200% 建ぺい率:60%、容積率:200% | Time residents 入居時期 | | 2014 end of March plan 2014年3月末予定 | Land of the right form 土地の権利形態 | | Ownership 所有権 | Use district 用途地域 | | One dwelling 1種住居 | Other limitations その他制限事項 | | Irregular land 不整形地 | Overview and notices その他概要・特記事項 | | The person in charge: is dedicating personnel system for each customer. , Building confirmation number: No. 13KAK Ken確 03,999 other 担当者:お客様毎に専属担当者制です。、建築確認番号:第13KAK建確03999号他 | Company profile 会社概要 | | <Mediation> Kanagawa Governor (2) the first 026,326 No. Century 21 Global Home Co., Ltd. Yubinbango221-0825 Yokohama-shi, Kanagawa, Kanagawa-ku, Sorimachi 4-37-3 Nissin building Yokohama Sorimachi first floor ・ Second floor <仲介>神奈川県知事(2)第026326号センチュリー21グローバルホーム(株)〒221-0825 神奈川県横浜市神奈川区反町4-37-3 日伸ビル横浜反町1階・2階 |
Local photos, including front road前面道路含む現地写真  2013 December 13, shooting Panoramic view
2013年12月13日撮影 全景
Local appearance photo現地外観写真  2013 December 13, shooting 1 Building
2013年12月13日撮影 1号棟
 2013 December 13, shooting Building 2
2013年12月13日撮影 2号棟
Floor plan間取り図  (1 Building), Price 37,400,000 yen, 2LDK+2S, Land area 106 sq m , Building area 96.87 sq m
(1号棟)、価格3740万円、2LDK+2S、土地面積106m2、建物面積96.87m2
Local appearance photo現地外観写真  2013 December 13, shooting 1 Building
2013年12月13日撮影 1号棟
Station駅  960m until the JR Yokosuka Line "Hodogaya" station
JR横須賀線「保土ヶ谷」駅まで960m
 The entire compartment Figure
全体区画図
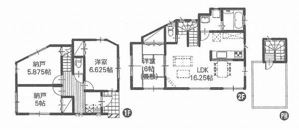
Floor plan間取り図  (Building 2), Price 34,400,000 yen, 2LDK+2S, Land area 102 sq m , Building area 94.18 sq m
(2号棟)、価格3440万円、2LDK+2S、土地面積102m2、建物面積94.18m2
Local appearance photo現地外観写真  2013 December 13, shooting Building 2
2013年12月13日撮影 2号棟
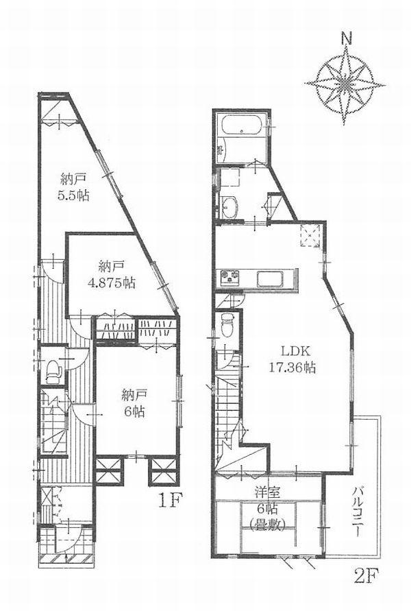
Floor plan間取り図  (3 Building), Price 35.4 million yen, 1LDK+3S, Land area 100 sq m , Building area 104.34 sq m
(3号棟)、価格3540万円、1LDK+3S、土地面積100m2、建物面積104.34m2
Location
|