New Homes » Kanto » Kanagawa Prefecture » Yokohama Hodogaya-ku
 
| | Yokohama, Kanagawa Prefecture Hodogaya-ku, 神奈川県横浜市保土ケ谷区 |
| JR Yokosuka Line "Hodogaya" walk 10 minutes JR横須賀線「保土ヶ谷」歩10分 |
| Leave and is a real estate agent who is the administrative scrivener "lawyer of the go-town" peace of mind! Real estate consulting master from resident property wish to Financial Plan ・ ・ Total Support My home wish! 任せて安心『頼れる街の法律家』行政書士のいる不動産屋です!不動産コンサルマスターも常駐物件選びからファイナンシャルプランまで・・マイホーム選びをトータルサポート! |
| Flat to the station, Yang per good, Bathroom Dryer, Washbasin with shower, Siemens south road, A quiet residential area, Three-story or more 駅まで平坦、陽当り良好、浴室乾燥機、シャワー付洗面台、南側道路面す、閑静な住宅地、3階建以上 |
Features pickup 特徴ピックアップ | | Bathroom Dryer / Yang per good / Flat to the station / Siemens south road / A quiet residential area / Washbasin with shower / Three-story or more 浴室乾燥機 /陽当り良好 /駅まで平坦 /南側道路面す /閑静な住宅地 /シャワー付洗面台 /3階建以上 | Price 価格 | | 33,800,000 yen ・ 35,800,000 yen 3380万円・3580万円 | Floor plan 間取り | | 4LDK 4LDK | Units sold 販売戸数 | | 2 units 2戸 | Total units 総戸数 | | 2 units 2戸 | Land area 土地面積 | | 57.18 sq m ・ 78.43 sq m (measured) 57.18m2・78.43m2(実測) | Building area 建物面積 | | 96.99 sq m ・ 104.01 sq m (measured) 96.99m2・104.01m2(実測) | Driveway burden-road 私道負担・道路 | | South 4.9m road 南側4.9m道路 | Completion date 完成時期(築年月) | | March 2014 in late schedule 2014年3月下旬予定 | Address 住所 | | Yokohama, Kanagawa Prefecture Hodogaya-ku, Kasumidai 神奈川県横浜市保土ケ谷区霞台 | Traffic 交通 | | JR Yokosuka Line "Hodogaya" walk 10 minutes Sagami Railway Main Line "Hoshikawa" walk 21 minutes Sagami Railway Main Line "Tenno-cho" walk 25 minutes JR横須賀線「保土ヶ谷」歩10分 相鉄本線「星川」歩21分 相鉄本線「天王町」歩25分
| Person in charge 担当者より | | Rep Takeuchi Akirasei we offer from various angles the importance of your house to choose for our customers. Please consult also trifles. 担当者竹内 晶生お客様にとって大切なお住まい選びを様々な角度よりご提案させて頂きます。些細な事でもご相談下さい。 | Contact お問い合せ先 | | TEL: 0800-603-1841 [Toll free] mobile phone ・ Also available from PHS Caller ID is not notified Please contact the "saw SUUMO (Sumo)" If it does not lead, If the real estate company TEL:0800-603-1841【通話料無料】携帯電話・PHSからもご利用いただけます 発信者番号は通知されません 「SUUMO(スーモ)を見た」と問い合わせください つながらない方、不動産会社の方は
| Building coverage, floor area ratio 建ぺい率・容積率 | | Building coverage 60% Volume rate of 200% 建蔽率60% 容積率200% | Time residents 入居時期 | | 2014 end of March plan 2014年3月末予定 | Land of the right form 土地の権利形態 | | Ownership 所有権 | Structure and method of construction 構造・工法 | | Wooden three-story 木造3階建 | Use district 用途地域 | | One dwelling 1種住居 | Land category 地目 | | Residential land 宅地 | Overview and notices その他概要・特記事項 | | Contact: Takeuchi Akirasei, Building confirmation number: 5351 担当者:竹内 晶生、建築確認番号:5351 | Company profile 会社概要 | | <Mediation> Kanagawa Governor (6) Article 018811 No. Century 21 (stock) Star Life business three Division Yubinbango220-0005 Kanagawa Prefecture, Nishi-ku, Yokohama-shi Nanko 2-11-1 Yokohama Em ・ Es ・ Building second floor <仲介>神奈川県知事(6)第018811号センチュリー21(株)スターライフ営業三課〒220-0005 神奈川県横浜市西区南幸2-11-1 横浜エム・エス・ビル2階 |
 Local photos, including front road
前面道路含む現地写真
 Same specifications photo (kitchen)
同仕様写真(キッチン)
 Same specifications photos (Other introspection)
同仕様写真(その他内観)
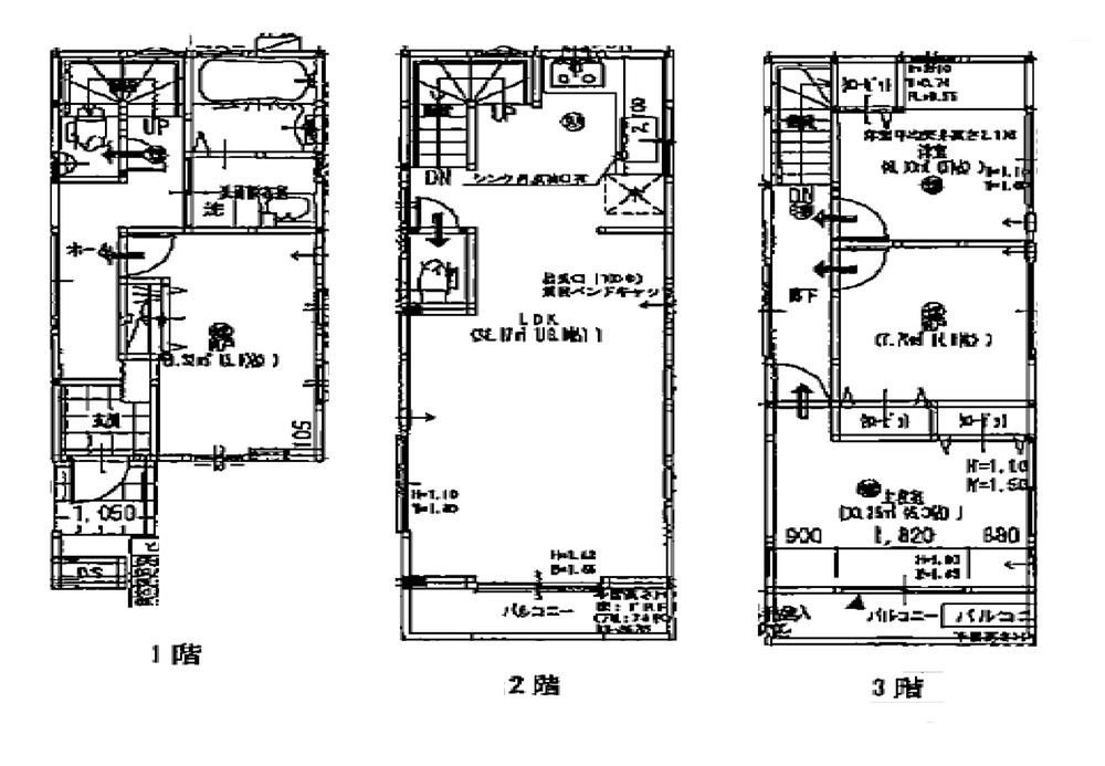
Floor plan間取り図  (A), Price 35,800,000 yen, 4LDK, Land area 57.18 sq m , Building area 104.01 sq m
(A)、価格3580万円、4LDK、土地面積57.18m2、建物面積104.01m2
 Local appearance photo
現地外観写真
 Same specifications photo (bathroom)
同仕様写真(浴室)
 Local photos, including front road
前面道路含む現地写真
Hospital病院  400m to the city of clinic
街のクリニックまで400m
 Same specifications photos (Other introspection)
同仕様写真(その他内観)
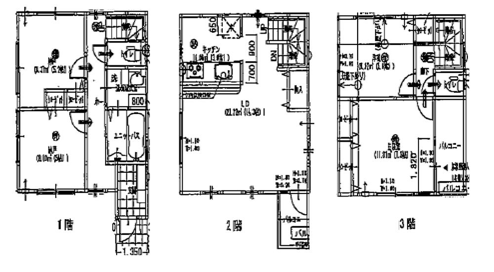
Floor plan間取り図  (B), Price 33,800,000 yen, 4LDK, Land area 78.43 sq m , Building area 96.99 sq m
(B)、価格3380万円、4LDK、土地面積78.43m2、建物面積96.99m2
 Local appearance photo
現地外観写真
Primary school小学校  300m until Iwasaki elementary school
岩崎小学校まで300m
Park公園  150m until Seto months Tanimachi third park
瀬戸ヶ谷町第三公園まで150m
Location
|