New Homes » Kanto » Kanagawa Prefecture » Yokohama Izumi-ku
 
| | Yokohama-shi, Kanagawa-ku, Izumi 神奈川県横浜市泉区 |
| Sagami Railway Izumino Line "Yayoidai" walk 7 minutes 相鉄いずみ野線「弥生台」歩7分 |
| Design involved to detail! ! Rich in variety is a four floor plans! ! 細部まで拘った設計!!バラエティに富んだ4つの間取りです!! |
| A quiet residential area, Bathroom Dryer, Yang per good, Security enhancement, Facing south, Around traffic fewer, 2-story, Dish washing dryer 閑静な住宅地、浴室乾燥機、陽当り良好、セキュリティ充実、南向き、周辺交通量少なめ、2階建、食器洗乾燥機 |
Features pickup 特徴ピックアップ | | Facing south / Bathroom Dryer / Yang per good / A quiet residential area / Around traffic fewer / Security enhancement / 2-story / Dish washing dryer 南向き /浴室乾燥機 /陽当り良好 /閑静な住宅地 /周辺交通量少なめ /セキュリティ充実 /2階建 /食器洗乾燥機 | Price 価格 | | 36,800,000 yen ~ 40,800,000 yen 3680万円 ~ 4080万円 | Floor plan 間取り | | 4LDK 4LDK | Units sold 販売戸数 | | 3 units 3戸 | Total units 総戸数 | | 5 units 5戸 | Land area 土地面積 | | 125.04 sq m ~ 125.08 sq m (measured) 125.04m2 ~ 125.08m2(実測) | Building area 建物面積 | | 94.81 sq m ~ 97.71 sq m (measured) 94.81m2 ~ 97.71m2(実測) | Driveway burden-road 私道負担・道路 | | West 4m 西4m | Completion date 完成時期(築年月) | | In late September 2013 2013年9月下旬 | Address 住所 | | Yokohama City, Kanagawa Prefecture Izumi-ku, Shinbashi-cho 神奈川県横浜市泉区新橋町 | Traffic 交通 | | Sagami Railway Izumino Line "Yayoidai" walk 7 minutes 相鉄いずみ野線「弥生台」歩7分
| Person in charge 担当者より | | Person in charge of forest We aim to work given the impression to the Yasuyuki customers. Thanking you in advance. 担当者森 靖之お客様に感動を与えられる仕事を目標としています。宜しくお願いします。 | Contact お問い合せ先 | | TEL: 0800-603-1841 [Toll free] mobile phone ・ Also available from PHS Caller ID is not notified Please contact the "saw SUUMO (Sumo)" If it does not lead, If the real estate company TEL:0800-603-1841【通話料無料】携帯電話・PHSからもご利用いただけます 発信者番号は通知されません 「SUUMO(スーモ)を見た」と問い合わせください つながらない方、不動産会社の方は
| Building coverage, floor area ratio 建ぺい率・容積率 | | Building coverage 50% Volume of 80% 建ぺい率50% 容積率80% | Time residents 入居時期 | | Consultation 相談 | Land of the right form 土地の権利形態 | | Ownership 所有権 | Structure and method of construction 構造・工法 | | Wooden 2-story 木造2階建 | Use district 用途地域 | | One low-rise 1種低層 | Land category 地目 | | Residential land 宅地 | Overview and notices その他概要・特記事項 | | Contact: Forest Yasuyuki, Building confirmation number: 511 担当者:森 靖之、建築確認番号:511 | Company profile 会社概要 | | <Mediation> Kanagawa Governor (6) Article 018811 No. Century 21 (stock) Star Life business three Division Yubinbango220-0005 Kanagawa Prefecture, Nishi-ku, Yokohama-shi Nanko 2-11-1 Yokohama Em ・ Es ・ Building second floor <仲介>神奈川県知事(6)第018811号センチュリー21(株)スターライフ営業三課〒220-0005 神奈川県横浜市西区南幸2-11-1 横浜エム・エス・ビル2階 |
 Local appearance photo
現地外観写真
 Same specifications photo (kitchen)
同仕様写真(キッチン)
 Same specifications photo (bathroom)
同仕様写真(浴室)
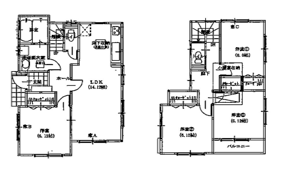
Floor plan間取り図  (1), Price 40,800,000 yen, 4LDK, Land area 125.04 sq m , Building area 97.71 sq m
(1)、価格4080万円、4LDK、土地面積125.04m2、建物面積97.71m2
 Local appearance photo
現地外観写真
Supermarketスーパー  Sotetsu until Rosen 560m
そうてつローゼンまで560m
 Same specifications photos (Other introspection)
同仕様写真(その他内観)
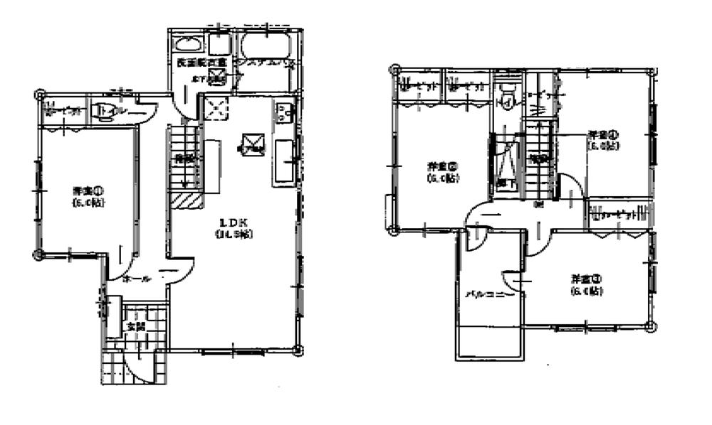
Floor plan間取り図  (4), Price 36,800,000 yen, 4LDK, Land area 125.08 sq m , Building area 95.43 sq m
(4)、価格3680万円、4LDK、土地面積125.08m2、建物面積95.43m2
 Local appearance photo
現地外観写真
Kindergarten ・ Nursery幼稚園・保育園  Yayoi stand 100m to kindergarten
やよい台幼稚園まで100m
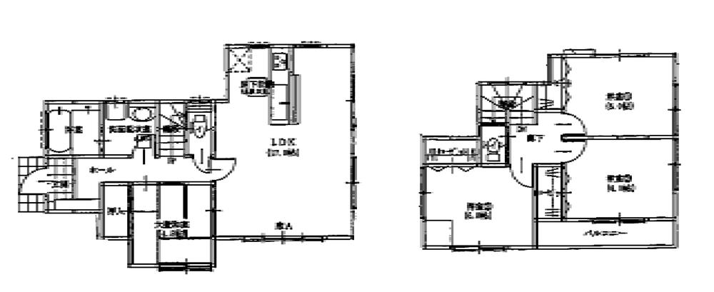
Floor plan間取り図  (5), Price 39,800,000 yen, 4LDK, Land area 125.05 sq m , Building area 94.81 sq m
(5)、価格3980万円、4LDK、土地面積125.05m2、建物面積94.81m2
 Local appearance photo
現地外観写真
Primary school小学校  Shinbashi 300m up to elementary school
新橋小学校まで300m
 Local appearance photo
現地外観写真
Park公園  250m until the pilgrimage hill park
巡礼坂公園まで250m
 Local appearance photo
現地外観写真
Hospital病院  300m to Shenzhen clinic
深川医院まで300m
Station駅  560m until Yayoidai Station
弥生台駅まで560m
Location
|