|
|
Yokohama-shi, Kanagawa-ku, Izumi
神奈川県横浜市泉区
|
|
Blue Line "Nakata" walk 15 minutes
ブルーライン「中田」歩15分
|
|
Metro Blue Line "Nakata" Japanese-style room with 4LDK solar power generation system provided with a space of a quiet residential area Nantei nestled in a good location, a 15-minute walk to the station is also attractive! !
地下鉄ブルーライン『中田』駅まで徒歩15分の好立地に佇む閑静な住宅街南庭のスペースを設けた和室付4LDK太陽光発電システムも魅力的です!!
|
|
■ Bathroom Dryer ■ Intercom with TV monitor ■ Pair glass ■ Shower toilet ■ Water filter ■ A kind low-rise ■ Japanese-style room ■ System kitchen ■ Solar power system ■ Shampoo dresser
■浴室乾燥機■TVモニター付インターホン■ペアガラス■シャワートイレ■浄水器■一種低層■和室■システムキッチン■太陽光発電システム■シャンプードレッサー
|
Features pickup 特徴ピックアップ | | Solar power system / Pre-ground survey / Year Available / System kitchen / Bathroom Dryer / Yang per good / All room storage / A quiet residential area / Shaping land / Washbasin with shower / Toilet 2 places / Bathroom 1 tsubo or more / 2-story / Warm water washing toilet seat / Nantei / The window in the bathroom / TV monitor interphone / Mu front building / Ventilation good / Water filter / Flat terrain 太陽光発電システム /地盤調査済 /年内入居可 /システムキッチン /浴室乾燥機 /陽当り良好 /全居室収納 /閑静な住宅地 /整形地 /シャワー付洗面台 /トイレ2ヶ所 /浴室1坪以上 /2階建 /温水洗浄便座 /南庭 /浴室に窓 /TVモニタ付インターホン /前面棟無 /通風良好 /浄水器 /平坦地 |
Price 価格 | | 27,800,000 yen 2780万円 |
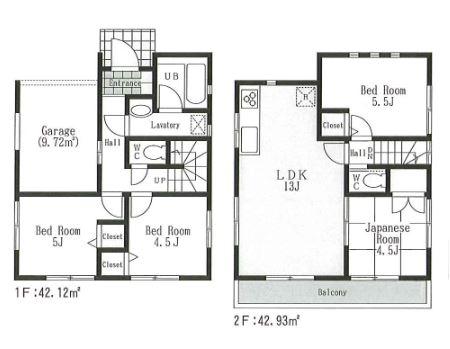
Floor plan 間取り | | 4LDK 4LDK |
Units sold 販売戸数 | | 1 units 1戸 |
Land area 土地面積 | | 87.15 sq m (registration) 87.15m2(登記) |
Building area 建物面積 | | 85.05 sq m (registration) 85.05m2(登記) |
Driveway burden-road 私道負担・道路 | | Nothing 無 |
Completion date 完成時期(築年月) | | December 2013 2013年12月 |
Address 住所 | | Yokohama-shi, Kanagawa-ku, Izumi Nakataminami 5 神奈川県横浜市泉区中田南5 |
Traffic 交通 | | Blue Line "Nakata" walk 15 minutes Blue Line "landing" walk 16 minutes ブルーライン「中田」歩15分 ブルーライン「踊場」歩16分
|
Related links 関連リンク | | [Related Sites of this company] 【この会社の関連サイト】 |
Contact お問い合せ先 | | TEL: 0800-809-8850 [Toll free] mobile phone ・ Also available from PHS Caller ID is not notified Please contact the "saw SUUMO (Sumo)" If it does not lead, If the real estate company TEL:0800-809-8850【通話料無料】携帯電話・PHSからもご利用いただけます 発信者番号は通知されません 「SUUMO(スーモ)を見た」と問い合わせください つながらない方、不動産会社の方は
|
Building coverage, floor area ratio 建ぺい率・容積率 | | Fifty percent ・ Hundred percent 50%・100% |
Time residents 入居時期 | | Consultation 相談 |
Land of the right form 土地の権利形態 | | Ownership 所有権 |
Structure and method of construction 構造・工法 | | Wooden 2-story 木造2階建 |
Use district 用途地域 | | One low-rise 1種低層 |
Overview and notices その他概要・特記事項 | | Facilities: Public Water Supply, This sewage, Building confirmation number: 110836, Parking: Garage 設備:公営水道、本下水、建築確認番号:110836、駐車場:車庫 |
Company profile 会社概要 | | <Mediation> Governor of Kanagawa Prefecture (1) No. 028491 (Ltd.) Stableford Home Yubinbango252-0804 Fujisawa, Kanagawa Prefecture Shonandai 4-2-12 <仲介>神奈川県知事(1)第028491号(株)ステイブルホーム〒252-0804 神奈川県藤沢市湘南台4-2-12 |