New Homes » Kanto » Kanagawa Prefecture » Kohoku-ku, Yokohama
 
| | Yokohama-shi, Kanagawa-ku, Kohoku 神奈川県横浜市港北区 |
| JR Yokohama Line "small desk" walk 10 minutes JR横浜線「小机」歩10分 |
| 2-story of 10 minutes from the train station is this price. Because it is a final stage in the large subdivision, You can you live in a beautiful city skyline. 駅から10分の2階建がこの価格です。大型分譲地内の最終期ですので、綺麗な街並みにお住まいいただけます。 |
Features pickup 特徴ピックアップ | | Bathroom Dryer / All room storage / A quiet residential area / LDK15 tatami mats or more / Or more before road 6m / Japanese-style room / Shaping land / Face-to-face kitchen / Toilet 2 places / Bathroom 1 tsubo or more / 2-story / Double-glazing / The window in the bathroom / Leafy residential area / Water filter / All rooms are two-sided lighting / Readjustment land within 浴室乾燥機 /全居室収納 /閑静な住宅地 /LDK15畳以上 /前道6m以上 /和室 /整形地 /対面式キッチン /トイレ2ヶ所 /浴室1坪以上 /2階建 /複層ガラス /浴室に窓 /緑豊かな住宅地 /浄水器 /全室2面採光 /区画整理地内 | Price 価格 | | 33 million yen 3300万円 | Floor plan 間取り | | 3LDK + S (storeroom) 3LDK+S(納戸) | Units sold 販売戸数 | | 1 units 1戸 | Total units 総戸数 | | 9 units 9戸 | Land area 土地面積 | | 103.84 sq m (measured) 103.84m2(実測) | Building area 建物面積 | | 91.36 sq m (measured) 91.36m2(実測) | Driveway burden-road 私道負担・道路 | | Road width: 6.5m 道路幅:6.5m | Completion date 完成時期(築年月) | | January 2012 2012年1月 | Address 住所 | | Yokohama-shi, Kanagawa-ku, Kohoku small desk-cho 神奈川県横浜市港北区小机町 | Traffic 交通 | | JR Yokohama Line "small desk" walk 10 minutes JR横浜線「小机」歩10分
| Related links 関連リンク | | [Related Sites of this company] 【この会社の関連サイト】 | Contact お問い合せ先 | | TEL: 0800-602-6179 [Toll free] mobile phone ・ Also available from PHS Caller ID is not notified Please contact the "saw SUUMO (Sumo)" If it does not lead, If the real estate company TEL:0800-602-6179【通話料無料】携帯電話・PHSからもご利用いただけます 発信者番号は通知されません 「SUUMO(スーモ)を見た」と問い合わせください つながらない方、不動産会社の方は
| Building coverage, floor area ratio 建ぺい率・容積率 | | Kenpei rate: 60% ・ 200% 建ペい率:60%・200% | Time residents 入居時期 | | Immediate available 即入居可 | Land of the right form 土地の権利形態 | | Ownership 所有権 | Use district 用途地域 | | One dwelling 1種住居 | Other limitations その他制限事項 | | Quasi-fire zones 準防火地域 | Overview and notices その他概要・特記事項 | | Building confirmation number: H23 confirmation building God Ken'yasu cooperation No. 04066 建築確認番号:H23確認建築神建安協04066号 | Company profile 会社概要 | | <Mediation> Governor of Kanagawa Prefecture (1) No. 028042 (Corporation) All Japan Real Estate Association (Corporation) metropolitan area real estate Fair Trade Council member Idec Inc. Yubinbango224-0001 Yokohama City, Kanagawa Prefecture Tsuzuki-ku Nakagawa 1-21-20 <仲介>神奈川県知事(1)第028042号(公社)全日本不動産協会会員 (公社)首都圏不動産公正取引協議会加盟アイデック(株)〒224-0001 神奈川県横浜市都筑区中川1-21-20 |
Livingリビング  Living (April 2013) Shooting
リビング(2013年4月)撮影
Otherその他  Spacious is the attic with storage, which was! !
広々とした屋根裏収納付きです!!
Bathroom浴室  Bathroom (April 2013) Shooting It is very spacious bathroom! Of course with bathroom dryer!
浴室(2013年4月)撮影 とっても広々とした浴室です! もちろん浴室乾燥機付き!
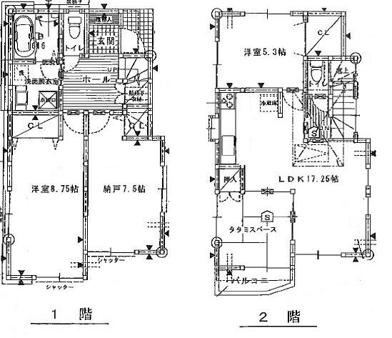
Floor plan間取り図  (B Building), Price 33 million yen, 3LDK+S, Land area 103.84 sq m , Building area 91.36 sq m
(B号棟)、価格3300万円、3LDK+S、土地面積103.84m2、建物面積91.36m2
Local appearance photo現地外観写真  Also firmly secured car space!
カースペースもしっかり確保!
Kitchenキッチン  Kitchen (April 2013) Shooting
キッチン(2013年4月)撮影
Station駅  Until Kozukue Station is a 800m walk 10 minutes.
小机駅まで800m 徒歩10分です。
Primary school小学校  Small desk is a 800m walk 10 minutes to the elementary school.
小机小学校まで800m 徒歩10分です。
Location
|