New Homes » Kanto » Kanagawa Prefecture » Kohoku-ku, Yokohama
 
| | Yokohama-shi, Kanagawa-ku, Kohoku 神奈川県横浜市港北区 |
| Tokyu Toyoko Line "Okurayama" walk 14 minutes 東急東横線「大倉山」歩14分 |
| A quiet residential area of the popular Toyoko wayside Ōkurayama Station use ・ Zento southwestward per day good ・ Good living environment for each development subdivision in ・ Seismic capacity, Excellent Dairaito method to fire performance 人気の東横線沿線大倉山駅利用の閑静な住宅街・全棟南西向きにつき日当たり良好・開発分譲地内につき住環境良好・耐震性能、耐火性能に優れたダイライト工法 |
| Livable 2-story ・ Cross adhesive material health, Nonhorumu specification in consideration of the environment ・ Room pair glass sash (Low-E) energy saving specifications ・ Bathroom Dryer, TV interphone, Water purifier such as in-room facilities enhancement 暮らしやすい2階建・クロス接着材は健康、環境に配慮したノンホルム仕様・居室ペアガラスサッシ(Low-E)省エネ仕様・浴室乾燥機、TVインターホン、浄水器等室内設備充実 |
Features pickup 特徴ピックアップ | | 2 along the line more accessible / LDK20 tatami mats or more / System kitchen / Bathroom Dryer / All room storage / Siemens south road / A quiet residential area / Corner lot / Washbasin with shower / Face-to-face kitchen / Toilet 2 places / Bathroom 1 tsubo or more / 2-story / 2 or more sides balcony / Double-glazing / Warm water washing toilet seat / TV monitor interphone / Southwestward / All room 6 tatami mats or more / Water filter / City gas / Development subdivision in 2沿線以上利用可 /LDK20畳以上 /システムキッチン /浴室乾燥機 /全居室収納 /南側道路面す /閑静な住宅地 /角地 /シャワー付洗面台 /対面式キッチン /トイレ2ヶ所 /浴室1坪以上 /2階建 /2面以上バルコニー /複層ガラス /温水洗浄便座 /TVモニタ付インターホン /南西向き /全居室6畳以上 /浄水器 /都市ガス /開発分譲地内 | Price 価格 | | 44,300,000 yen 4430万円 | Floor plan 間取り | | 4LDK 4LDK | Units sold 販売戸数 | | 1 units 1戸 | Total units 総戸数 | | 3 units 3戸 | Land area 土地面積 | | 100.82 sq m (measured) 100.82m2(実測) | Building area 建物面積 | | 100.32 sq m 100.32m2 | Completion date 完成時期(築年月) | | 2013 end of November 2013年11月末 | Address 住所 | | Yokohama-shi, Kanagawa-ku, Kohoku Morooka cho 神奈川県横浜市港北区師岡町 | Traffic 交通 | | Tokyu Toyoko Line "Okurayama" walk 14 minutes JR Yokohama Line "Shin" bus 17 minutes south Ayumi Yato 6 minutes JR Keihin Tohoku Line "Tsurumi" 30 minutes south Ayumi Yato 6 minutes by bus 東急東横線「大倉山」歩14分 JR横浜線「新横浜」バス17分南谷戸歩6分 JR京浜東北線「鶴見」バス30分南谷戸歩6分
| Related links 関連リンク | | [Related Sites of this company] 【この会社の関連サイト】 | Person in charge 担当者より | | We are dedicating personnel system for each person in charge customers. [Your tour of the day is also possible! ] Inquiry of the Property Century 21 Global Home "residence of the Information Center" sales staff to please feel free to! 0800-603-7494 担当者お客様毎に専属担当者制です。【当日のご見学も可能です!】本物件のお問い合わせはセンチュリー21グローバルホーム「住まいの情報館」営業スタッフまでお気軽にどうぞ!0800-603-7494 | Contact お問い合せ先 | | TEL: 0800-603-7494 [Toll free] mobile phone ・ Also available from PHS Caller ID is not notified Please contact the "saw SUUMO (Sumo)" If it does not lead, If the real estate company TEL:0800-603-7494【通話料無料】携帯電話・PHSからもご利用いただけます 発信者番号は通知されません 「SUUMO(スーモ)を見た」と問い合わせください つながらない方、不動産会社の方は
| Building coverage, floor area ratio 建ぺい率・容積率 | | Kenpei rate: 50%, Volume ratio: 100% 建ペい率:50%、容積率:100% | Time residents 入居時期 | | Consultation 相談 | Land of the right form 土地の権利形態 | | Ownership 所有権 | Use district 用途地域 | | One low-rise 1種低層 | Land category 地目 | | Residential land 宅地 | Other limitations その他制限事項 | | Residential land development construction regulation area, Advanced use district, Quasi-fire zones, Site area minimum Yes 宅地造成工事規制区域、高度利用地区、準防火地域、敷地面積最低限度有 | Overview and notices その他概要・特記事項 | | The person in charge: is dedicating personnel system for each customer. , Building confirmation number: No. 13UDI3S Ken 00154 other 担当者:お客様毎に専属担当者制です。、建築確認番号:第13UDI3S建00154号他 | Company profile 会社概要 | | <Mediation> Kanagawa Governor (2) the first 026,326 No. Century 21 Global Home Co., Ltd. Yubinbango221-0825 Yokohama-shi, Kanagawa, Kanagawa-ku, Sorimachi 4-37-3 Nissin building Yokohama Sorimachi first floor ・ Second floor <仲介>神奈川県知事(2)第026326号センチュリー21グローバルホーム(株)〒221-0825 神奈川県横浜市神奈川区反町4-37-3 日伸ビル横浜反町1階・2階 |
Local appearance photo現地外観写真  Panoramic view Local (November 19, 2013) Shooting
全景 現地(2013年11月19日)撮影
 1 Building Local (November 19, 2013) Shooting Imposing completed local appearance
1号棟 現地(2013年11月19日)撮影 堂々完成した現地外観
Livingリビング  1 Building Indoor (November 19, 2013) Shooting
1号棟 室内(2013年11月19日)撮影
Kitchenキッチン  1 Building Indoor (November 19, 2013) Shooting
1号棟 室内(2013年11月19日)撮影
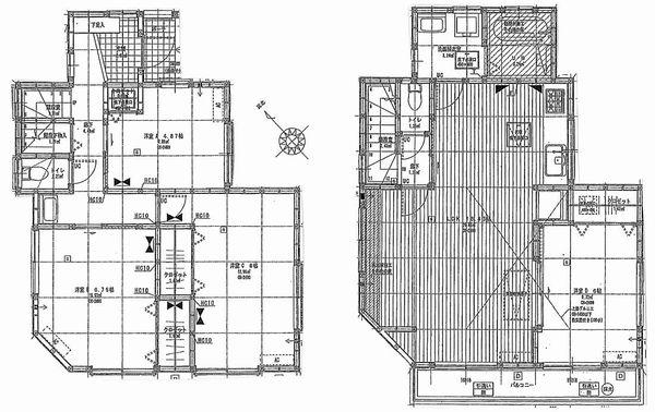
Floor plan間取り図  (1 Building), Price 44,300,000 yen, 4LDK, Land area 100.82 sq m , Building area 100.32 sq m
(1号棟)、価格4430万円、4LDK、土地面積100.82m2、建物面積100.32m2
Local appearance photo現地外観写真  1 Building Local (November 19, 2013) Shooting
1号棟 現地(2013年11月19日)撮影
Bathroom浴室  1 Building Indoor (November 19, 2013) Shooting
1号棟 室内(2013年11月19日)撮影
Non-living roomリビング以外の居室  1 Building Indoor (November 19, 2013) Shooting
1号棟 室内(2013年11月19日)撮影
Wash basin, toilet洗面台・洗面所  1 Building Indoor (November 19, 2013) Shooting
1号棟 室内(2013年11月19日)撮影
Receipt収納  1 Building Indoor (November 19, 2013) Shooting
1号棟 室内(2013年11月19日)撮影
Toiletトイレ  1 Building Indoor (November 19, 2013) Shooting
1号棟 室内(2013年11月19日)撮影
Parking lot駐車場  1 Building Local (November 19, 2013) Shooting
1号棟 現地(2013年11月19日)撮影
Balconyバルコニー  1 Building Local (November 19, 2013) Shooting
1号棟 現地(2013年11月19日)撮影
Station駅  Tokyu Toyoko Line "Okurayama" 1120m to the station
東急東横線「大倉山」駅まで1120m
Other introspectionその他内観  1 Building Grenier (November 19, 2013) Shooting
1号棟 グルニエ(2013年11月19日)撮影
Non-living roomリビング以外の居室  1 Building Indoor (November 19, 2013) Shooting
1号棟 室内(2013年11月19日)撮影
 1 Building Indoor (November 19, 2013) Shooting
1号棟 室内(2013年11月19日)撮影
 1 Building Indoor (November 19, 2013) Shooting
1号棟 室内(2013年11月19日)撮影
Location
|