New Homes » Kanto » Kanagawa Prefecture » Kohoku-ku, Yokohama
 
| | Yokohama-shi, Kanagawa-ku, Kohoku 神奈川県横浜市港北区 |
| Blue Line "Kishinekoen" walk 5 minutes ブルーライン「岸根公園」歩5分 |
| Per completed already, Your tour of the day is also possible! Good living environment per quiet residential area ・ Good day every south-facing dwelling unit ・ LDK17 Pledge, Face-to-face kitchen adopt bouncing of conversation ・ Floor plan of the easy-to-use 4LDK 完成済につき、当日のご見学も可能です!閑静な住宅街につき住環境良好・南向き住戸につき日当たり良好・LDK17帖、会話の弾む対面キッチン採用・使いやすい4LDKの間取り |
| Flat 35S corresponding housing ・ Charm house insurance ・ Termite prevention construction warranty ・ All room pair glass ・ Water filter, Bathroom heating dryer, Washlet such as in-room facilities enhancement フラット35S対応住宅・まもりすまい保険加入・シロアリ予防施工保証書付・全居室ペアガラス・浄水器、浴室暖房乾燥機、ウォシュレット等室内設備充実 |
Features pickup 特徴ピックアップ | | Corresponding to the flat-35S / Year Available / Facing south / System kitchen / Bathroom Dryer / A quiet residential area / LDK15 tatami mats or more / Japanese-style room / Face-to-face kitchen / 2-story / Double-glazing / Warm water washing toilet seat / Underfloor Storage / TV monitor interphone / Water filter / City gas フラット35Sに対応 /年内入居可 /南向き /システムキッチン /浴室乾燥機 /閑静な住宅地 /LDK15畳以上 /和室 /対面式キッチン /2階建 /複層ガラス /温水洗浄便座 /床下収納 /TVモニタ付インターホン /浄水器 /都市ガス | Price 価格 | | 43,158,000 yen 4315万8000円 | Floor plan 間取り | | 4LDK 4LDK | Units sold 販売戸数 | | 1 units 1戸 | Land area 土地面積 | | 125.52 sq m (37.96 tsubo) (Registration), Inclined portion: 25 sq m including 125.52m2(37.96坪)(登記)、傾斜部分:25m2含 | Building area 建物面積 | | 99.68 sq m (30.15 tsubo) (Registration) 99.68m2(30.15坪)(登記) | Driveway burden-road 私道負担・道路 | | Nothing 無 | Completion date 完成時期(築年月) | | September 2013 2013年9月 | Address 住所 | | Kanagawa Prefecture, Kohoku-ku, Yokohama, Shinohara-cho 神奈川県横浜市港北区篠原町 | Traffic 交通 | | Blue Line "Kishinekoen" walk 5 minutes Blue Line "Shin-Yokohama" walk 17 minutes Tokyu Toyoko Line "Myorenji" walk 19 minutes ブルーライン「岸根公園」歩5分 ブルーライン「新横浜」歩17分 東急東横線「妙蓮寺」歩19分
| Related links 関連リンク | | [Related Sites of this company] 【この会社の関連サイト】 | Person in charge 担当者より | | We are dedicating personnel system for each person in charge customers. [Your tour of the day is also possible! ] Inquiry of the Property Century 21 Global Home "residence of the Information Center" sales staff to please feel free to! 0800-603-7494 担当者お客様毎に専属担当者制です。【当日のご見学も可能です!】本物件のお問い合わせはセンチュリー21グローバルホーム「住まいの情報館」営業スタッフまでお気軽にどうぞ!0800-603-7494 | Contact お問い合せ先 | | TEL: 0800-603-7494 [Toll free] mobile phone ・ Also available from PHS Caller ID is not notified Please contact the "saw SUUMO (Sumo)" If it does not lead, If the real estate company TEL:0800-603-7494【通話料無料】携帯電話・PHSからもご利用いただけます 発信者番号は通知されません 「SUUMO(スーモ)を見た」と問い合わせください つながらない方、不動産会社の方は
| Building coverage, floor area ratio 建ぺい率・容積率 | | Fifty percent ・ 80% 50%・80% | Time residents 入居時期 | | Consultation 相談 | Land of the right form 土地の権利形態 | | Ownership 所有権 | Structure and method of construction 構造・工法 | | Wooden 2-story 木造2階建 | Use district 用途地域 | | One low-rise 1種低層 | Other limitations その他制限事項 | | Height district, Quasi-fire zones, Site area minimum Yes 高度地区、準防火地域、敷地面積最低限度有 | Overview and notices その他概要・特記事項 | | The person in charge: is dedicating personnel system for each customer. , Building confirmation number: No. 12KAK Ken確 06418 担当者:お客様毎に専属担当者制です。、建築確認番号:第12KAK建確06418号 | Company profile 会社概要 | | <Mediation> Kanagawa Governor (2) the first 026,326 No. Century 21 Global Home Co., Ltd. Yubinbango221-0825 Yokohama-shi, Kanagawa, Kanagawa-ku, Sorimachi 4-37-3 Nissin building Yokohama Sorimachi first floor ・ Second floor <仲介>神奈川県知事(2)第026326号センチュリー21グローバルホーム(株)〒221-0825 神奈川県横浜市神奈川区反町4-37-3 日伸ビル横浜反町1階・2階 |
Livingリビング  Indoor (October 4, 2013) Shooting
室内(2013年10月4日)撮影
Local appearance photo現地外観写真  Local (October 4, 2013) Shooting
現地(2013年10月4日)撮影
Livingリビング  Indoor (October 4, 2013) Shooting
室内(2013年10月4日)撮影
Kitchenキッチン  Indoor (October 4, 2013) Shooting
室内(2013年10月4日)撮影
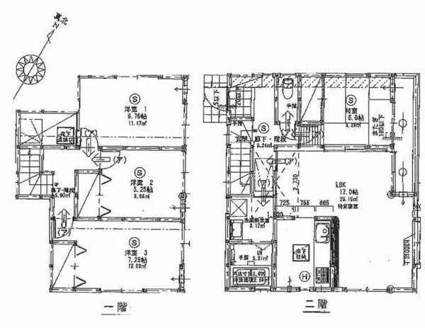
Floor plan間取り図  43,158,000 yen, 4LDK, Land area 125.52 sq m , Building area 99.68 sq m
4315万8000円、4LDK、土地面積125.52m2、建物面積99.68m2
Local appearance photo現地外観写真  Local (October 4, 2013) Shooting
現地(2013年10月4日)撮影
Livingリビング  Indoor (October 4, 2013) Shooting
室内(2013年10月4日)撮影
Bathroom浴室  Indoor (October 4, 2013) Shooting
室内(2013年10月4日)撮影
Non-living roomリビング以外の居室  Indoor (October 4, 2013) Shooting
室内(2013年10月4日)撮影
Entrance玄関  Indoor (October 4, 2013) Shooting
室内(2013年10月4日)撮影
Wash basin, toilet洗面台・洗面所  Indoor (October 4, 2013) Shooting
室内(2013年10月4日)撮影
Toiletトイレ  Indoor (October 4, 2013) Shooting
室内(2013年10月4日)撮影
Station駅  400m until Kishine-kōen Station
岸根公園駅まで400m
View photos from the dwelling unit住戸からの眺望写真  Indoor (October 4, 2013) Shooting
室内(2013年10月4日)撮影
Location
|