New Homes » Kanto » Kanagawa Prefecture » Kohoku-ku, Yokohama
 
| | Yokohama-shi, Kanagawa-ku, Kohoku 神奈川県横浜市港北区 |
| Green Line "Takada" walk 14 minutes グリーンライン「高田」歩14分 |
Features pickup 特徴ピックアップ | | 2 along the line more accessible / Super close / System kitchen / Siemens south road / A quiet residential area / Corner lot / Shaping land / garden / Face-to-face kitchen / Toilet 2 places / Bathroom 1 tsubo or more / 2-story / South balcony / Zenshitsuminami direction / Ventilation good / Dish washing dryer / Water filter / City gas / Located on a hill / Development subdivision in 2沿線以上利用可 /スーパーが近い /システムキッチン /南側道路面す /閑静な住宅地 /角地 /整形地 /庭 /対面式キッチン /トイレ2ヶ所 /浴室1坪以上 /2階建 /南面バルコニー /全室南向き /通風良好 /食器洗乾燥機 /浄水器 /都市ガス /高台に立地 /開発分譲地内 | Price 価格 | | 37,800,000 yen 3780万円 | Floor plan 間取り | | 3LDK ~ 4LDK 3LDK ~ 4LDK | Units sold 販売戸数 | | 6 units 6戸 | Total units 総戸数 | | 20 units 20戸 | Land area 土地面積 | | 100.5 sq m ~ 145.36 sq m (30.40 tsubo ~ 43.97 tsubo) (Registration) 100.5m2 ~ 145.36m2(30.40坪 ~ 43.97坪)(登記) | Building area 建物面積 | | 84.05 sq m ~ 95.22 sq m (25.42 tsubo ~ 28.80 tsubo) (Registration) 84.05m2 ~ 95.22m2(25.42坪 ~ 28.80坪)(登記) | Driveway burden-road 私道負担・道路 | | Road width: 4.5m, Asphaltic pavement 道路幅:4.5m、アスファルト舗装 | Completion date 完成時期(築年月) | | 4 months after the contract 契約後4ヶ月 | Address 住所 | | Yokohama-shi, Kanagawa-ku, Kohoku Shin'yoshida east 4 神奈川県横浜市港北区新吉田東4 | Traffic 交通 | | Green Line "Takada" walk 14 minutes Blue Line "neoptile" walk 22 minutes Tokyu Toyoko Line "Tsunashima" 15 minutes Nitta agricultural cooperatives before walking 5 minutes by bus グリーンライン「高田」歩14分 ブルーライン「新羽」歩22分 東急東横線「綱島」バス15分新田農協前歩5分
| Related links 関連リンク | | [Related Sites of this company] 【この会社の関連サイト】 | Person in charge 担当者より | | Rep Mizuno Naoto Age: 20 Daigyokai Experience: We are open at 5 years Tsunashima. When was the Yokohama city of Property, Please leave! It will guide you through the house to suit your choice. 担当者水野 直人年齢:20代業界経験:5年綱島にて営業しております。横浜市内の物件でしたら、おまかせください!ご希望に合う住宅をご案内します。 | Contact お問い合せ先 | | TEL: 0800-603-9830 [Toll free] mobile phone ・ Also available from PHS Caller ID is not notified Please contact the "saw SUUMO (Sumo)" If it does not lead, If the real estate company TEL:0800-603-9830【通話料無料】携帯電話・PHSからもご利用いただけます 発信者番号は通知されません 「SUUMO(スーモ)を見た」と問い合わせください つながらない方、不動産会社の方は
| Expenses 諸費用 | | Other expenses: Wet admission fee: 157,500 yen / Bulk その他諸費用:水道加入金:157500円/一括 | Building coverage, floor area ratio 建ぺい率・容積率 | | Kenpei rate: 60%, Volume ratio: 100% ・ 200% 建ペい率:60%、容積率:100%・200% | Time residents 入居時期 | | 4 months after the contract 契約後4ヶ月 | Land of the right form 土地の権利形態 | | Ownership 所有権 | Use district 用途地域 | | One low-rise, One dwelling 1種低層、1種住居 | Land category 地目 | | Residential land 宅地 | Overview and notices その他概要・特記事項 | | Contact: Mizuno Naoto, Building confirmation number: KAK Ken確 05009 担当者:水野 直人、建築確認番号:KAK建確05009 | Company profile 会社概要 | | <Mediation> Governor of Kanagawa Prefecture (1) No. 027350 (Ltd.) Fast home Yubinbango223-0053 Yokohama-shi, Kanagawa-ku, Kohoku Tsunashimanishi 1-2-9 <仲介>神奈川県知事(1)第027350号(株)ファーストホーム〒223-0053 神奈川県横浜市港北区綱島西1-2-9 |
Same specifications photos (appearance)同仕様写真(外観)  Example of construction
施工例
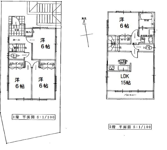
Floor plan間取り図  (18 Building), Price 37,800,000 yen, 4LDK, Land area 109.03 sq m , Building area 91.91 sq m
(18号棟)、価格3780万円、4LDK、土地面積109.03m2、建物面積91.91m2
Station駅  1100m to Takada Station
高田駅まで1100m
 The entire compartment Figure
全体区画図
Floor plan間取り図  (19 Building), Price 37,800,000 yen, 3LDK, Land area 106.57 sq m , Building area 75.56 sq m
(19号棟)、価格3780万円、3LDK、土地面積106.57m2、建物面積75.56m2
Station駅  1750m to Nippa Station
新羽駅まで1750m
Supermarketスーパー  460m to Royal Yotsuya Shin'yoshida shop
ローヤルよつや新吉田店まで460m
 1413m until the ion Yokohama Shin'yoshida shop
イオン横浜新吉田店まで1413m
Location
|