New Homes » Kanto » Kanagawa Prefecture » Kohoku-ku, Yokohama
 
| | Yokohama-shi, Kanagawa-ku, Kohoku 神奈川県横浜市港北区 |
| Tokyu Toyoko Line "Hakuraku" walk 11 minutes 東急東横線「白楽」歩11分 |
| Year Available, Parking two Allowed, LDK18 tatami mats or more, Facing south, System kitchen, Bathroom Dryer, All room storage, Siemens south roadese-style room, Washbasin with shower, Face-to-face kitchen, Toilet 2 places, 2-story, 年内入居可、駐車2台可、LDK18畳以上、南向き、システムキッチン、浴室乾燥機、全居室収納、南側道路面す、和室、シャワー付洗面台、対面式キッチン、トイレ2ヶ所、2階建、 |
| Year Available, Parking two Allowed, LDK18 tatami mats or more, Facing south, System kitchen, Bathroom Dryer, All room storage, Siemens south roadese-style room, Washbasin with shower, Face-to-face kitchen, Toilet 2 places, 2-story, Otobasu, The window in the bathroom, Storeroom, roof balcony 年内入居可、駐車2台可、LDK18畳以上、南向き、システムキッチン、浴室乾燥機、全居室収納、南側道路面す、和室、シャワー付洗面台、対面式キッチン、トイレ2ヶ所、2階建、オートバス、浴室に窓、納戸、ルーフバルコニー |
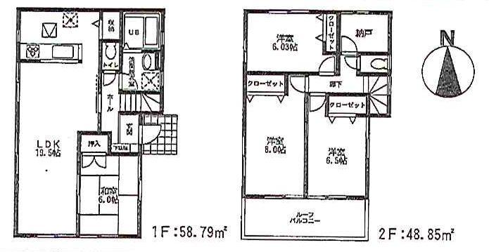
Features pickup 特徴ピックアップ | | Year Available / Parking two Allowed / LDK18 tatami mats or more / Facing south / System kitchen / Bathroom Dryer / All room storage / Siemens south road / Japanese-style room / Washbasin with shower / Face-to-face kitchen / Toilet 2 places / 2-story / Otobasu / The window in the bathroom / Storeroom / roof balcony 年内入居可 /駐車2台可 /LDK18畳以上 /南向き /システムキッチン /浴室乾燥機 /全居室収納 /南側道路面す /和室 /シャワー付洗面台 /対面式キッチン /トイレ2ヶ所 /2階建 /オートバス /浴室に窓 /納戸 /ルーフバルコニー | Price 価格 | | 62,500,000 yen 6250万円 | Floor plan 間取り | | 4LDK + S (storeroom) 4LDK+S(納戸) | Units sold 販売戸数 | | 1 units 1戸 | Total units 総戸数 | | 2 units 2戸 | Land area 土地面積 | | 140.67 sq m (measured) 140.67m2(実測) | Building area 建物面積 | | 108.88 sq m (measured) 108.88m2(実測) | Driveway burden-road 私道負担・道路 | | Nothing, South 4.5m width 無、南4.5m幅 | Completion date 完成時期(築年月) | | October 2013 2013年10月 | Address 住所 | | Yokohama-shi, Kanagawa-ku, Kohoku Shinoharadai cho 神奈川県横浜市港北区篠原台町 | Traffic 交通 | | Tokyu Toyoko Line "Hakuraku" walk 11 minutes Tokyu Toyoko Line "Myorenji" walk 12 minutes 東急東横線「白楽」歩11分 東急東横線「妙蓮寺」歩12分
| Related links 関連リンク | | [Related Sites of this company] 【この会社の関連サイト】 | Person in charge 担当者より | | [Regarding this property.] Site 40 square meters or more in the south road, Car space two units can be. 【この物件について】南道路で敷地40坪以上、カースペース二台可能です。 | Contact お問い合せ先 | | TEL: 0800-603-8210 [Toll free] mobile phone ・ Also available from PHS Caller ID is not notified Please contact the "saw SUUMO (Sumo)" If it does not lead, If the real estate company TEL:0800-603-8210【通話料無料】携帯電話・PHSからもご利用いただけます 発信者番号は通知されません 「SUUMO(スーモ)を見た」と問い合わせください つながらない方、不動産会社の方は
| Building coverage, floor area ratio 建ぺい率・容積率 | | Fifty percent ・ Hundred percent 50%・100% | Time residents 入居時期 | | Consultation 相談 | Land of the right form 土地の権利形態 | | Ownership 所有権 | Structure and method of construction 構造・工法 | | Wooden 2-story 木造2階建 | Use district 用途地域 | | One low-rise 1種低層 | Overview and notices その他概要・特記事項 | | Facilities: Public Water Supply, This sewage, City gas, Building confirmation number: first H25SBC- Make 00999Y No., Parking: car space 設備:公営水道、本下水、都市ガス、建築確認番号:第H25SBC-確00999Y号、駐車場:カースペース | Company profile 会社概要 | | <Mediation> Kanagawa Governor (2) the first 026,300 No. Yokohama style (Ltd.) NIKKEIyubinbango231-0047 Yokohama-shi, Kanagawa, Naka-ku, robe-cho 2-4-4 Yokohama RK building 8th floor <仲介>神奈川県知事(2)第026300号横浜スタイル(株)NIKKEI〒231-0047 神奈川県横浜市中区羽衣町2-4-4 横浜RKビル8階 |
Floor plan間取り図  62,500,000 yen, 4LDK + S (storeroom), Land area 140.67 sq m , Building area 108.88 sq m
6250万円、4LDK+S(納戸)、土地面積140.67m2、建物面積108.88m2
 Local appearance photo
現地外観写真
 Local appearance photo
現地外観写真
 Local appearance photo
現地外観写真
 Local photos, including front road
前面道路含む現地写真
 Parking lot
駐車場
Junior high school中学校  1269m to Yokohama Municipal Kanagawa Junior High School
横浜市立神奈川中学校まで1269m
Primary school小学校  890m to Yokohama Municipal Shirahata Elementary School
横浜市立白幡小学校まで890m
Location
|