New Homes » Kanto » Kanagawa Prefecture » Kohoku-ku, Yokohama
 
| | Yokohama-shi, Kanagawa-ku, Kohoku 神奈川県横浜市港北区 |
| Tokyu Toyoko Line "Tsunashima" 15 minutes Nitta agricultural cooperatives before walking 5 minutes by bus 東急東横線「綱島」バス15分新田農協前歩5分 |
| Building free plan! ! The nearest station is popular Tokyu Toyoko Line "Tsunashima" crime prevention to the station entrance door ・ Card key specification! ! Crime prevention composite glass specification is on the first floor of the window! Sale newly built properties with excellent crime prevention! ! 建物フリープラン!!最寄駅は人気の東急東横線「綱島」駅玄関ドアに防犯・カードキー仕様!!1階の窓には防犯複合ガラス仕様!防犯に優れた分譲新築物件!! |
Features pickup 特徴ピックアップ | | 2 along the line more accessible / Super close / Bathroom Dryer / All room storage / Toilet 2 places / Bathroom 1 tsubo or more / 2-story / Double-glazing / Warm water washing toilet seat / TV monitor interphone / All living room flooring / Dish washing dryer / Water filter / City gas 2沿線以上利用可 /スーパーが近い /浴室乾燥機 /全居室収納 /トイレ2ヶ所 /浴室1坪以上 /2階建 /複層ガラス /温水洗浄便座 /TVモニタ付インターホン /全居室フローリング /食器洗乾燥機 /浄水器 /都市ガス | Price 価格 | | 34,800,000 yen 3480万円 | Floor plan 間取り | | 4LDK 4LDK | Units sold 販売戸数 | | 1 units 1戸 | Land area 土地面積 | | 100.56 sq m (registration) 100.56m2(登記) | Building area 建物面積 | | 91.08 sq m (registration) 91.08m2(登記) | Driveway burden-road 私道負担・道路 | | Nothing 無 | Completion date 完成時期(築年月) | | December 2013 2013年12月 | Address 住所 | | Yokohama-shi, Kanagawa-ku, Kohoku Shin'yoshida east 4 神奈川県横浜市港北区新吉田東4 | Traffic 交通 | | Tokyu Toyoko Line "Tsunashima" 15 minutes Nitta agricultural cooperatives before walking 5 minutes by bus Green Line "Takada" walk 14 minutes Blue Line "neoptile" walk 23 minutes 東急東横線「綱島」バス15分新田農協前歩5分 グリーンライン「高田」歩14分 ブルーライン「新羽」歩23分
| Related links 関連リンク | | [Related Sites of this company] 【この会社の関連サイト】 | Person in charge 担当者より | | Rep Yasaka Yusuke Age: 30 Daigyokai Experience: 1 year customer peace of mind ・ So that will be advanced looking consent has been you live, Support with full force ・ I will propose! ! All in order of happiness and your smile, , , ! ! We look forward to your visit! ! 担当者八坂 裕介年齢:30代業界経験:1年お客様が安心・納得されたお住まい探しを進められますよう、全力でサポート・ご提案させていただきます!!全てはお客様の笑顔と幸せの為に、、、!!ご来店お待ちしております!! | Contact お問い合せ先 | | TEL: 0800-603-9908 [Toll free] mobile phone ・ Also available from PHS Caller ID is not notified Please contact the "saw SUUMO (Sumo)" If it does not lead, If the real estate company TEL:0800-603-9908【通話料無料】携帯電話・PHSからもご利用いただけます 発信者番号は通知されません 「SUUMO(スーモ)を見た」と問い合わせください つながらない方、不動産会社の方は
| Building coverage, floor area ratio 建ぺい率・容積率 | | 60% ・ 200% 60%・200% | Time residents 入居時期 | | Consultation 相談 | Land of the right form 土地の権利形態 | | Ownership 所有権 | Structure and method of construction 構造・工法 | | Wooden 2-story 木造2階建 | Use district 用途地域 | | One dwelling 1種住居 | Overview and notices その他概要・特記事項 | | Contact: Yasaka Yusuke, Facilities: Public Water Supply, This sewage, City gas, Building confirmation number: KAK Ken確 05009 担当者:八坂 裕介、設備:公営水道、本下水、都市ガス、建築確認番号:KAK建確05009 | Company profile 会社概要 | | <Mediation> Governor of Kanagawa Prefecture (1) No. 027423 (Ltd.) Gift Yubinbango222-0037 Yokohama-shi, Kanagawa-ku, Kohoku Okurayama 1-23-18 Habitation Okurayama first floor <仲介>神奈川県知事(1)第027423号(株)ギフト〒222-0037 神奈川県横浜市港北区大倉山1-23-18 アビタシオン大倉山1階 |
Local appearance photo現地外観写真  Local Photos
現地写真
Local photos, including front road前面道路含む現地写真  Frontal road
前面道路
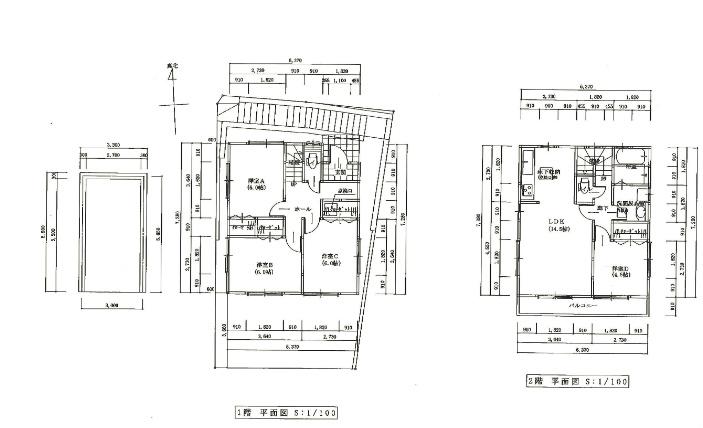
Floor plan間取り図  34,800,000 yen, 4LDK, Land area 100.56 sq m , Building area 91.08 sq m floor plan
3480万円、4LDK、土地面積100.56m2、建物面積91.08m2 間取図
Supermarketスーパー  1540m until the ion Yokohama Shin'yoshida shop
イオン横浜新吉田店まで1540m
 1240m until Inageya Yokohama Tsunashima shop
いなげや横浜綱島店まで1240m
Park公園  Futoo 2800m until the view of the hill park
太尾見晴らしの丘公園まで2800m
Primary school小学校  630m to Yokohama Municipal Shin'yoshida Elementary School
横浜市立新吉田小学校まで630m
Junior high school中学校  670m to Yokohama Municipal Nitta junior high school
横浜市立新田中学校まで670m
Location
|