New Homes » Kanto » Kanagawa Prefecture » Kohoku-ku, Yokohama
 
| | Yokohama-shi, Kanagawa-ku, Kohoku 神奈川県横浜市港北区 |
| JR Yokohama Line "small desk" walk 15 minutes JR横浜線「小机」歩15分 |
| ■ Bright and airy newly built condominiums in a spacious space and abundant sunshine in an orderly streets! ■ Two car space Bun'yu, Yang per There is a garden on the south side ・ Open feeling good! ■整然とした街並みでゆったりとした空間と豊富な日差しで明るく開放的な新築分譲住宅!■カースペース2台分有、南側には庭があり陽当り・開放感良好! |
| □ Nearby is spacious building interval in a quiet residential area, It is the location that combines the comfort and sense of openness! □ It is green and living environment sun was bright and spacious rich! □近隣は閑静な住宅地でゆったりとした建物間隔、居住性と開放感を併せ持つ立地です!□緑と日差しが豊富で明るく広々とした住環境です! |
Features pickup 特徴ピックアップ | | Parking two Allowed / System kitchen / Yang per good / All room storage / A quiet residential area / Around traffic fewer / garden / Washbasin with shower / Toilet 2 places / Bathroom 1 tsubo or more / 2-story / South balcony / Warm water washing toilet seat / Ventilation good / City gas / Development subdivision in 駐車2台可 /システムキッチン /陽当り良好 /全居室収納 /閑静な住宅地 /周辺交通量少なめ /庭 /シャワー付洗面台 /トイレ2ヶ所 /浴室1坪以上 /2階建 /南面バルコニー /温水洗浄便座 /通風良好 /都市ガス /開発分譲地内 | Property name 物件名 | | Kohoku-ku small desk-cho - newly built condominiums (all 12 buildings) 港北区小机町-新築分譲住宅(全12棟) | Price 価格 | | 39,800,000 yen ~ 42,800,000 yen 3980万円 ~ 4280万円 | Floor plan 間取り | | 4LDK 4LDK | Units sold 販売戸数 | | 3 units 3戸 | Total units 総戸数 | | 12 units 12戸 | Land area 土地面積 | | 125.5 sq m ~ 125.75 sq m (measured) 125.5m2 ~ 125.75m2(実測) | Building area 建物面積 | | 95.01 sq m ~ 95.22 sq m (measured) 95.01m2 ~ 95.22m2(実測) | Driveway burden-road 私道負担・道路 | | Road width: 4.5m ・ 9m, Asphaltic pavement, Other road equity 203. sq m × 1 / 11 Yes, Other garbage yard 1.75 sq m × 1 / 11 Yes 道路幅:4.5m・9m、アスファルト舗装、他に道路持分203.m2×1/11有、他にゴミ置場1.75m2×1/11有 | Completion date 完成時期(築年月) | | November 2013 2013年11月 | Address 住所 | | Yokohama-shi, Kanagawa-ku, Kohoku small desk-cho 神奈川県横浜市港北区小机町 | Traffic 交通 | | JR Yokohama Line "small desk" walk 15 minutes JR横浜線「小机」歩15分
| Related links 関連リンク | | [Related Sites of this company] 【この会社の関連サイト】 | Person in charge 担当者より | | Responsible Shataku Kenfuru fence By listening carefully to your favorite Daisuke customers, We will be happy to help hard with the intention Find your residence. 担当者宅建古垣 大輔お客様のご希望をよくお聞きして、自分の住まいを探すつもりで一生懸命お手伝いさせて頂きます。 | Contact お問い合せ先 | | TEL: 0800-603-1840 [Toll free] mobile phone ・ Also available from PHS Caller ID is not notified Please contact the "saw SUUMO (Sumo)" If it does not lead, If the real estate company TEL:0800-603-1840【通話料無料】携帯電話・PHSからもご利用いただけます 発信者番号は通知されません 「SUUMO(スーモ)を見た」と問い合わせください つながらない方、不動産会社の方は
| Building coverage, floor area ratio 建ぺい率・容積率 | | Kenpei rate: 50%, Volume ratio: 80% 建ペい率:50%、容積率:80% | Time residents 入居時期 | | December 2013 2013年12月 | Land of the right form 土地の権利形態 | | Ownership 所有権 | Use district 用途地域 | | One low-rise 1種低層 | Overview and notices その他概要・特記事項 | | Contact: old fence Daisuke 担当者:古垣 大輔 | Company profile 会社概要 | | <Mediation> Kanagawa Governor (6) Article 018811 No. Century 21 (stock) Star Life business 2 Division Yubinbango220-0005 Kanagawa Prefecture, Nishi-ku, Yokohama-shi Nanko 2-11-1 Yokohama Em ・ Es ・ Building second floor <仲介>神奈川県知事(6)第018811号センチュリー21(株)スターライフ営業二課〒220-0005 神奈川県横浜市西区南幸2-11-1 横浜エム・エス・ビル2階 |
Livingリビング  Indoor (11 May 2013) Shooting
室内(2013年11月)撮影
Local appearance photo現地外観写真 ![Local appearance photo. [L Building] Local (11 May 2013) Shooting](/images/kanagawa/yokohamashikohoku/56cd4c0019.jpg) [L Building] Local (11 May 2013) Shooting
【L号棟】現地(2013年11月)撮影
Livingリビング ![Living. [D Building] Indoor (11 May 2013) Shooting](/images/kanagawa/yokohamashikohoku/56cd4c0048.jpg) [D Building] Indoor (11 May 2013) Shooting
【D号棟】室内(2013年11月)撮影
![Living. [K Building] Indoor (11 May 2013) Shooting](/images/kanagawa/yokohamashikohoku/56cd4c0049.jpg) [K Building] Indoor (11 May 2013) Shooting
【K号棟】室内(2013年11月)撮影
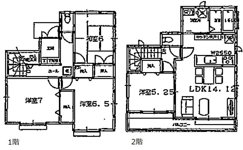
Floor plan間取り図  (I Building), Price 39,800,000 yen, 4LDK, Land area 125.5 sq m , Building area 95.01 sq m
(I号棟)、価格3980万円、4LDK、土地面積125.5m2、建物面積95.01m2
Local appearance photo現地外観写真 ![Local appearance photo. [I Building] Local (11 May 2013) Shooting](/images/kanagawa/yokohamashikohoku/56cd4c0028.jpg) [I Building] Local (11 May 2013) Shooting
【I号棟】現地(2013年11月)撮影
Livingリビング ![Living. [I Building] Indoor (11 May 2013) Shooting](/images/kanagawa/yokohamashikohoku/56cd4c0030.jpg) [I Building] Indoor (11 May 2013) Shooting
【I号棟】室内(2013年11月)撮影
Bathroom浴室 ![Bathroom. [I Building] Indoor (11 May 2013) Shooting](/images/kanagawa/yokohamashikohoku/56cd4c0046.jpg) [I Building] Indoor (11 May 2013) Shooting
【I号棟】室内(2013年11月)撮影
Kitchenキッチン ![Kitchen. [I Building] Indoor (11 May 2013) Shooting](/images/kanagawa/yokohamashikohoku/56cd4c0029.jpg) [I Building] Indoor (11 May 2013) Shooting
【I号棟】室内(2013年11月)撮影
Non-living roomリビング以外の居室 ![Non-living room. [J Building] Indoor (11 May 2013) Shooting](/images/kanagawa/yokohamashikohoku/56cd4c0027.jpg) [J Building] Indoor (11 May 2013) Shooting
【J号棟】室内(2013年11月)撮影
Wash basin, toilet洗面台・洗面所 ![Wash basin, toilet. [D Building] Indoor (11 May 2013) Shooting](/images/kanagawa/yokohamashikohoku/56cd4c0058.jpg) [D Building] Indoor (11 May 2013) Shooting
【D号棟】室内(2013年11月)撮影
Toiletトイレ ![Toilet. [I Building] Indoor (11 May 2013) Shooting](/images/kanagawa/yokohamashikohoku/56cd4c0033.jpg) [I Building] Indoor (11 May 2013) Shooting
【I号棟】室内(2013年11月)撮影
Supermarketスーパー  Until Marutomo small desk shop 500m
マルトモ小机店まで500m
Floor plan間取り図  (K Building), Price 42,800,000 yen, 4LDK, Land area 125.71 sq m , Building area 95.22 sq m
(K号棟)、価格4280万円、4LDK、土地面積125.71m2、建物面積95.22m2
Local appearance photo現地外観写真 ![Local appearance photo. [K Building] Local (11 May 2013) Shooting](/images/kanagawa/yokohamashikohoku/56cd4c0050.jpg) [K Building] Local (11 May 2013) Shooting
【K号棟】現地(2013年11月)撮影
Livingリビング ![Living. [I Building] Indoor (11 May 2013) Shooting](/images/kanagawa/yokohamashikohoku/56cd4c0031.jpg) [I Building] Indoor (11 May 2013) Shooting
【I号棟】室内(2013年11月)撮影
Kitchenキッチン ![Kitchen. [K Building] Indoor (11 May 2013) Shooting](/images/kanagawa/yokohamashikohoku/56cd4c0052.jpg) [K Building] Indoor (11 May 2013) Shooting
【K号棟】室内(2013年11月)撮影
Non-living roomリビング以外の居室 ![Non-living room. [I Building] Indoor (11 May 2013) Shooting](/images/kanagawa/yokohamashikohoku/56cd4c0032.jpg) [I Building] Indoor (11 May 2013) Shooting
【I号棟】室内(2013年11月)撮影
Primary school小学校  Yokohama Municipal small desk 800m up to elementary school
横浜市立小机小学校まで800m
Floor plan間取り図  (L Building), Price 40,800,000 yen, 4LDK, Land area 125.72 sq m , Building area 95.22 sq m
(L号棟)、価格4080万円、4LDK、土地面積125.72m2、建物面積95.22m2
Local appearance photo現地外観写真 ![Local appearance photo. [D Building] Local (11 May 2013) Shooting](/images/kanagawa/yokohamashikohoku/56cd4c0053.jpg) [D Building] Local (11 May 2013) Shooting
【D号棟】現地(2013年11月)撮影
Livingリビング ![Living. [K Building] Indoor (11 May 2013) Shooting](/images/kanagawa/yokohamashikohoku/56cd4c0051.jpg) [K Building] Indoor (11 May 2013) Shooting
【K号棟】室内(2013年11月)撮影
Junior high school中学校  Yokohama Municipal Shirosato until junior high school 400m
横浜市立城郷中学校まで400m
Park公園  Small desk-cho, 20m to the third park
小机町第三公園まで20m
Location
|