New Homes » Kanto » Kanagawa Prefecture » Kohoku-ku, Yokohama
 
| | Yokohama-shi, Kanagawa-ku, Kohoku 神奈川県横浜市港北区 |
| Tokyu Toyoko Line "Myorenji" walk 6 minutes 東急東横線「妙蓮寺」歩6分 |
| ◆ A quiet residential area, Dish washing dryer, Bathroom Dryer, LDK15 tatami mats or more. ◆ Contact, TEL: 0800-602-5521 Our website "Sue Min" Please also visit. ◆閑静な住宅地、食器洗乾燥機、浴室乾燥機、LDK15畳以上。◆お問い合わせ先、TEL:0800-602-5521 当社ホームページ「すーみん」もご覧ください。 |
Features pickup 特徴ピックアップ | | System kitchen / Bathroom Dryer / All room storage / A quiet residential area / LDK15 tatami mats or more / Around traffic fewer / Shaping land / Washbasin with shower / Face-to-face kitchen / Toilet 2 places / Bathroom 1 tsubo or more / 2-story / Warm water washing toilet seat / Underfloor Storage / The window in the bathroom / TV monitor interphone / All living room flooring / Good view / Dish washing dryer / Water filter / Living stairs / City gas システムキッチン /浴室乾燥機 /全居室収納 /閑静な住宅地 /LDK15畳以上 /周辺交通量少なめ /整形地 /シャワー付洗面台 /対面式キッチン /トイレ2ヶ所 /浴室1坪以上 /2階建 /温水洗浄便座 /床下収納 /浴室に窓 /TVモニタ付インターホン /全居室フローリング /眺望良好 /食器洗乾燥機 /浄水器 /リビング階段 /都市ガス | Price 価格 | | 48,800,000 yen 4880万円 | Floor plan 間取り | | 4LDK 4LDK | Units sold 販売戸数 | | 1 units 1戸 | Total units 総戸数 | | 1 units 1戸 | Land area 土地面積 | | 80.29 sq m (registration) 80.29m2(登記) | Building area 建物面積 | | 85.92 sq m (registration) 85.92m2(登記) | Completion date 完成時期(築年月) | | 2013 mid-December 2013年12月中旬 | Address 住所 | | Yokohama-shi, Kanagawa-ku, Kohoku Kikuna 2 神奈川県横浜市港北区菊名2 | Traffic 交通 | | Tokyu Toyoko Line "Myorenji" walk 6 minutes Tokyu Toyoko Line "Kikuna" walk 15 minutes 東急東横線「妙蓮寺」歩6分 東急東横線「菊名」歩15分
| Related links 関連リンク | | [Related Sites of this company] 【この会社の関連サイト】 | Person in charge 担当者より | | Person in charge of home supposedly Island Masayuki Age: 30s has been kept sales of customer-oriented, which takes advantage of mobility. Please feel free to contact us. 担当者宅建前島 雅之年齢:30代機動力をいかしたお客様本位の営業を心掛けてます。お気軽にご相談下さい。 | Contact お問い合せ先 | | TEL: 0800-602-5521 [Toll free] mobile phone ・ Also available from PHS Caller ID is not notified Please contact the "saw SUUMO (Sumo)" If it does not lead, If the real estate company TEL:0800-602-5521【通話料無料】携帯電話・PHSからもご利用いただけます 発信者番号は通知されません 「SUUMO(スーモ)を見た」と問い合わせください つながらない方、不動産会社の方は
| Most price range 最多価格帯 | | 48 million yen (1 units) 4800万円台(1戸) | Building coverage, floor area ratio 建ぺい率・容積率 | | Kenpei rate: 60%, Volume ratio: 150% 建ペい率:60%、容積率:150% | Time residents 入居時期 | | 2 months after the contract 契約後2ヶ月 | Land of the right form 土地の権利形態 | | Ownership 所有権 | Use district 用途地域 | | One middle and high 1種中高 | Land category 地目 | | Residential land 宅地 | Overview and notices その他概要・特記事項 | | Contact: Maejima Masayuki, Building confirmation number: first 13KAK Ken確 03,198 other 担当者:前島 雅之、建築確認番号:第13KAK建確03198他 | Company profile 会社概要 | | <Mediation> Governor of Kanagawa Prefecture (1) the first 027,250 No. Century 21 Mei Fast Co., Ltd. Yubinbango246-0022 Yokohama-shi, Kanagawa-ku, Seya Mitsuzakai 2-8 Yagi building second floor <仲介>神奈川県知事(1)第027250号センチュリー21メイファースト(株)〒246-0022 神奈川県横浜市瀬谷区三ツ境2-8 八木ビル2階 |
Local photos, including front road前面道路含む現地写真  local
現地
 local
現地
 local
現地
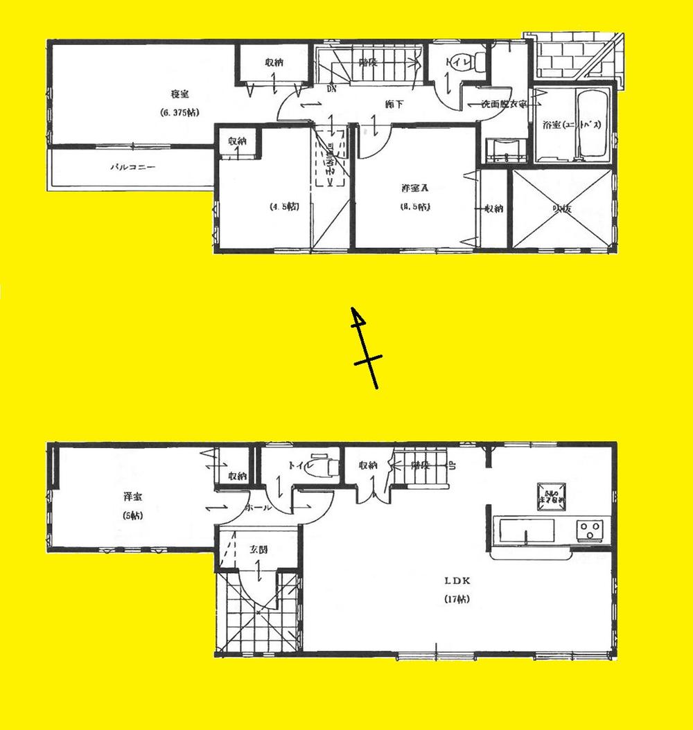
Floor plan間取り図  Price 48,800,000 yen, 4LDK, Land area 80.29 sq m , Building area 85.92 sq m
価格4880万円、4LDK、土地面積80.29m2、建物面積85.92m2
Local appearance photo現地外観写真  local
現地
Local photos, including front road前面道路含む現地写真  local
現地
Same specifications photo (bathroom)同仕様写真(浴室)  Same specifications
同仕様
 Kitchen
キッチン
 Wash basin, toilet
洗面台・洗面所
Local photos, including front road前面道路含む現地写真  local
現地
Same specifications photos (Other introspection)同仕様写真(その他内観)  Same specifications
同仕様
Supermarketスーパー  To Ito-Yokado 240m
イトーヨーカドーまで240m
 Same specifications photos (Other introspection)
同仕様写真(その他内観)
 Bathroom
浴室
Location
|