New Homes » Kanto » Kanagawa Prefecture » Kohoku-ku, Yokohama
 
| | Yokohama-shi, Kanagawa-ku, Kohoku 神奈川県横浜市港北区 |
| JR Yokohama Line "small desk" walk 10 minutes JR横浜線「小机」歩10分 |
| ◆ JR Yokohama Line "small desk" station a 10-minute walk! Good per sun for the south road! Convenient to shopping at the mall close. Each room with storage. dishwasher ・ System kitchen with Kiyoshi device ・ Such as fully equipped with bathroom TV. ◆JR横浜線「小机」駅徒歩10分!南道路のため陽当たり良好!商店街至近でお買い物に便利。各居室収納付。食器洗い機・浄器付システムキッチン・浴室TV付等設備充実。 |
| ◆ Property Point !! ・ Although currently it is incomplete, Since there is a property that has been completed of the other site you will in a room look! You can guide! ・ 20 million yen of newly built single-family Kozukue Station 10-minute walk! ◆ Small desk elementary school, It is recommended for those looking for a newly built single-family in the region of Shirosato junior high school. ◆ Looking for a newly built single-family in the vicinity Kozukue Station, First of all, please contact us. Property More Information ・ Current local photos and, You can also send together another listing in the vicinity of Kozukue Station. Facing south, System kitchen, Bathroom Dryer, Yang per good, All room storage, Siemens south road, LDK15 tatami mats or more, Corner lot, Washbasin with shower, Face-to-face kitchen, Toilet 2 places, Bathroom 1 tsubo or more, South balcony, Multi-layer glass ... ◆物件Point!!・現在未完成ですが、他現場の完成している物件がありますので室内ご覧になれます!ご案内可能です!・小机駅徒歩10分の2000万円台の新築一戸建て!◆小机小学校、城郷中学校の地域で新築一戸建てをお探しの方にオススメです。◆小机駅付近で新築一戸建てをお探しの方、まずお問い合わせ下さい。物件の詳細資料・現在の現地写真と、小机駅付近の別の物件情報もまとめてお送りすることができます。南向き、システムキッチン、浴室乾燥機、陽当り良好、全居室収納、南側道路面す、LDK15畳以上、角地、シャワー付洗面台、対面式キッチン、トイレ2ヶ所、浴室1坪以上、南面バルコニー、複層ガラス... |
Features pickup 特徴ピックアップ | | Year Available / Facing south / System kitchen / Bathroom Dryer / Yang per good / All room storage / Siemens south road / LDK15 tatami mats or more / Corner lot / Washbasin with shower / Face-to-face kitchen / Toilet 2 places / Bathroom 1 tsubo or more / South balcony / Double-glazing / Warm water washing toilet seat / TV with bathroom / The window in the bathroom / TV monitor interphone / All living room flooring / Dish washing dryer / Water filter / Three-story or more 年内入居可 /南向き /システムキッチン /浴室乾燥機 /陽当り良好 /全居室収納 /南側道路面す /LDK15畳以上 /角地 /シャワー付洗面台 /対面式キッチン /トイレ2ヶ所 /浴室1坪以上 /南面バルコニー /複層ガラス /温水洗浄便座 /TV付浴室 /浴室に窓 /TVモニタ付インターホン /全居室フローリング /食器洗乾燥機 /浄水器 /3階建以上 | Event information イベント情報 | | Local guide Board (Please be sure to ask in advance) schedule / Every Saturday, Sunday and public holidays time / 9:00 ~ 21:00 ※ Local guide the Board does not matter special time. For example, a weekday night 20 pm ~ , 21 pm ~ Also we will correspond in such. (Except Wednesday) Please feel free to tell us. -=-=-=-=-=-=-=-=-=-=-=-=-=-=-=-=-=-=-=--=-=-=-=-=-=-=-=-=-=-=-=-=-=-=-=-=-=-=--=-=-=-=-=-=-=-=-=-=-=-=-=-=-=-=-=-=-=-=-=-=-=-=-=-=-=-=-=-=-=-=-=-=-=-=-=- ■ ■ ■ Mortgage Consultation Notice ■ ■ ■ Tell ・ The Corporation, We have carried out at any time mortgage Consultation. You can estimate the properties that you can buy from the annual income, Loan estimates the property to be worried about, Any cost that take time to actually buy real estate? , Specific financial planning simulation Please leave. Such as anxiety and questions in the case of real estate purchase, In words that our professional staff is easy to understand even the general public, Carefully eliminated ・ We support. Also, Since this can be a guide when looking for property on the net, Please feel free to contact us first. →→→ toll-free [0800-808-9889] ←←← access map http: / / www.teru-c.co.jp / company / map.html ※ Wednesday will be a regular holiday. In the case of Wednesday, Please contact us from the bottom of the orange document request button. -=-=-=-=-=-=-=-=-=-=-=-=-=-=-=-=-=-=-=--=-=-=-=-=-=-=-=-=-=-=-=-=-=-=-=-=-=-=--=-=-=-=-=-=-=-=-=-=-=-=-=-=-=-=-=-=-=-=-=-=-=-=-=-=-=-=-=-=-=-=-=-=-=-=-=- 現地案内会(事前に必ずお問い合わせください)日程/毎週土日祝時間/9:00 ~ 21:00※現地案内会は特別時間は問いません。例えば平日夜20時 ~ 、21時 ~ などでも対応いたします。(水曜日を除く)お気軽にお申し付けください。-=-=-=-=-=-=-=-=-=-=-=-=-=-=-=-=-=-=-=--=-=-=-=-=-=-=-=-=-=-=-=-=-=-=-=-=-=-=--=-=-=-=-=-=-=-=-=-=-=-=-=-=-=-=-=-=-=-=-=-=-=-=-=-=-=-=-=-=-=-=-=-=-=-=-=-■■■住宅ローン相談会のお知らせ■■■テル・コーポレーションでは、随時住宅ローン相談会を実施しております。年収から買える物件を試算したり、気になる物件のローン試算、実際不動産を購入する際どんな費用がかかるの?なども含め、具体的な資金計画シュミレーションもお任せください。不動産ご購入の際の不安や疑問点などは、弊社の専門のスタッフが一般の方々でもわかりやすい言葉で、丁寧に解消・サポートいたします。また、ネットで物件を探す際の目安にもなりますので、まずお気軽にお問い合わせください。 →→→フリーダイヤル 【0800-808-9889】←←← アクセスマップ http://www.teru-c.co.jp/company/map.html ※水曜日は定休日となります。水曜日の場合は、下部のオレンジ色資料請求ボタンよりお問い合わせください。-=-=-=-=-=-=-=-=-=-=-=-=-=-=-=-=-=-=-=--=-=-=-=-=-=-=-=-=-=-=-=-=-=-=-=-=-=-=--=-=-=-=-=-=-=-=-=-=-=-=-=-=-=-=-=-=-=-=-=-=-=-=-=-=-=-=-=-=-=-=-=-=-=-=-=- | Price 価格 | | 28.8 million yen 2880万円 | Floor plan 間取り | | 3LDK 3LDK | Units sold 販売戸数 | | 1 units 1戸 | Total units 総戸数 | | 1 units 1戸 | Land area 土地面積 | | 63.69 sq m (19.26 tsubo) (measured) 63.69m2(19.26坪)(実測) | Building area 建物面積 | | 97.91 sq m (29.61 tsubo) (measured) 97.91m2(29.61坪)(実測) | Driveway burden-road 私道負担・道路 | | Nothing, South 15m width, Northwest 8m width 無、南15m幅、北西8m幅 | Completion date 完成時期(築年月) | | November 2013 2013年11月 | Address 住所 | | Yokohama-shi, Kanagawa-ku, Kohoku small desk-cho 神奈川県横浜市港北区小机町 | Traffic 交通 | | JR Yokohama Line "small desk" walk 10 minutes Blue Line "Shin-Yokohama" walk 28 minutes Blue Line "Kishinekoen" walk 28 minutes JR横浜線「小机」歩10分 ブルーライン「新横浜」歩28分 ブルーライン「岸根公園」歩28分
| Related links 関連リンク | | [Related Sites of this company] 【この会社の関連サイト】 | Person in charge 担当者より | | Personnel Masayuki Arai industry experience: 3 years Yokohama real estate company Tel ・ Corporation is Arai. Since I myself am from Yokohama, Because although that the property is, of course, will answer also in detail such as the characteristics of each area, Please feel free to contact us! 担当者荒井 誠之業界経験:3年横浜の不動産会社テル・コーポレーションの荒井です。私自身が横浜出身ですので、物件の事はもちろんですが各エリアの特徴なども詳しくお答えしますので、お気軽にご相談下さい! | Contact お問い合せ先 | | TEL: 0800-808-9889 [Toll free] mobile phone ・ Also available from PHS Caller ID is not notified Please contact the "saw SUUMO (Sumo)" If it does not lead, If the real estate company TEL:0800-808-9889【通話料無料】携帯電話・PHSからもご利用いただけます 発信者番号は通知されません 「SUUMO(スーモ)を見た」と問い合わせください つながらない方、不動産会社の方は
| Building coverage, floor area ratio 建ぺい率・容積率 | | 60% ・ 200% 60%・200% | Time residents 入居時期 | | Consultation 相談 | Land of the right form 土地の権利形態 | | Ownership 所有権 | Structure and method of construction 構造・工法 | | Wooden three-story 木造3階建 | Use district 用途地域 | | Two dwellings 2種住居 | Overview and notices その他概要・特記事項 | | Contact: Masayuki Arai, Facilities: Public Water Supply, This sewage, Building confirmation number: first H25SBC- Make 00629Y No., Parking: car space 担当者:荒井 誠之、設備:公営水道、本下水、建築確認番号:第H25SBC-確00629Y号、駐車場:カースペース | Company profile 会社概要 | | <Mediation> Kanagawa Governor (2) No. 025129 (Ltd.) Tel ・ Corporation Yubinbango220-0011 Kanagawa Prefecture, Nishi-ku, Yokohama-shi Takashima 2-6-32 <仲介>神奈川県知事(2)第025129号(株)テル・コーポレーション〒220-0011 神奈川県横浜市西区高島2-6-32 |
Otherその他  Yokohama ・ Tel Save on Kawasaki of real estate ・ Please leave Corporation. We support the look you live in a rich amount of information
横浜・川崎の不動産のことならテル・コーポレーションにお任せ下さい。豊富な情報量でお住まい探しをサポート致します
Local appearance photo現地外観写真  2013 / 10 / 19 shooting Local is a photo
2013/10/19撮影 現地写真です
Same specifications photos (living)同仕様写真(リビング)  The company specification example Living photo
同社仕様例 リビング写真
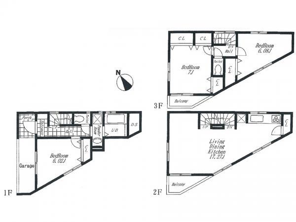
Floor plan間取り図  28.8 million yen, 3LDK, Land area 63.69 sq m , It is a building area of 97.91 sq m floor plan. Popular living stairs ・ 17.27 is the Pledge of LDK
2880万円、3LDK、土地面積63.69m2、建物面積97.91m2 間取り図です。人気のリビング階段・17.27帖のLDKです
Same specifications photo (bathroom)同仕様写真(浴室)  The company specification example Bathroom photo
同社仕様例 浴室写真
Same specifications photo (kitchen)同仕様写真(キッチン)  The company specification example Kitchen photo
同社仕様例 キッチン写真
Local photos, including front road前面道路含む現地写真  2013 / 10 / 19 shooting Local is a photo
2013/10/19撮影 現地写真です
Primary school小学校  It is 1220m small desk elementary school within walking distance to Yokohama Municipal small desk Elementary School
横浜市立小机小学校まで1220m 小机小学校徒歩圏内です
Same specifications photos (Other introspection)同仕様写真(その他内観)  The company specification example Washroom photo
同社仕様例 洗面所写真
Compartment figure区画図  28.8 million yen, 3LDK, Land area 63.69 sq m , Building area 97.91 sq m compartment view
2880万円、3LDK、土地面積63.69m2、建物面積97.91m2 区画図
Other localその他現地  2013 / 10 / 19 shooting Local is a photo
2013/10/19撮影 現地写真です
Junior high school中学校  784m Shirosato junior high school is close to Yokohama Municipal Shirosato Junior High School!
横浜市立城郷中学校まで784m 城郷中学校は近いです!
Same specifications photos (Other introspection)同仕様写真(その他内観)  The company specification example Toilet photo
同社仕様例 トイレ写真
Other Environmental Photoその他環境写真  New construction is a detached 20 million yen in the JR Yokohama Line "small desk," a 10-minute walk from the 974m Kozukue Station to the station
JR横浜線「小机」駅まで974m 小机駅まで徒歩10分で2000万円台の新築一戸建てです
Kindergarten ・ Nursery幼稚園・保育園  Small desk is a picture of 619m small desk kindergarten to kindergarten. It is close to the local
小机幼稚園まで619m 小机幼稚園の写真です。現地から近いです
Hospital病院  It will be some Yoshino clinic photos in 513m neighborhood to Yoshino clinic.
吉野医院まで513m 近所にある吉野医院の写真になります。
Location
|