New Homes » Kanto » Kanagawa Prefecture » Kohoku-ku, Yokohama
 
| | Yokohama-shi, Kanagawa-ku, Kohoku 神奈川県横浜市港北区 |
| Tokyu Toyoko Line "Myorenji" walk 5 minutes 東急東横線「妙蓮寺」歩5分 |
| Light and wind, Housing that can enjoy a variety of attractive, full of sense of openness ・ Good living environment per quiet residential area ・ Popular Toyoko Line railroad ・ The completed per your tour Allowed, Please feel free to contact us. 光と風、開放感にあふれた多彩な魅力を享受できる住まい・閑静な住宅街につき住環境良好・人気の東急東横線沿線・完成済みにつきご見学可、お気軽にお問い合わせください。 |
| Station 5-minute walk of the good location ・ Commute, 2-wire 3-Station Available convenient to go to school ・ Livable 2-story ・ Hot water type with under-floor heating ・ All room storage Yes ・ 18 Pledge more than LDK room ・ Popular face-to-face kitchen adoption ・ Flat 35S corresponding housing 駅徒歩5分の好立地・通勤、通学に便利な2線3駅利用可・暮らしやすい2階建・温水式床暖房付・全居室収納有・LDKゆとりの18帖超・人気の対面キッチン採用・フラット35S対応住宅 |
Features pickup 特徴ピックアップ | | Corresponding to the flat-35S / Immediate Available / 2 along the line more accessible / LDK18 tatami mats or more / Facing south / System kitchen / Yang per good / A quiet residential area / Japanese-style room / Washbasin with shower / Face-to-face kitchen / 2-story / 2 or more sides balcony / South balcony / Underfloor Storage / The window in the bathroom / Dish washing dryer / Water filter / City gas / Floor heating フラット35Sに対応 /即入居可 /2沿線以上利用可 /LDK18畳以上 /南向き /システムキッチン /陽当り良好 /閑静な住宅地 /和室 /シャワー付洗面台 /対面式キッチン /2階建 /2面以上バルコニー /南面バルコニー /床下収納 /浴室に窓 /食器洗乾燥機 /浄水器 /都市ガス /床暖房 | Price 価格 | | 66,800,000 yen ~ 69,800,000 yen 6680万円 ~ 6980万円 | Floor plan 間取り | | 4LDK 4LDK | Units sold 販売戸数 | | 2 units 2戸 | Total units 総戸数 | | 3 units 3戸 | Land area 土地面積 | | 122.85 sq m ~ 123.16 sq m (37.16 tsubo ~ 37.25 tsubo) (measured) 122.85m2 ~ 123.16m2(37.16坪 ~ 37.25坪)(実測) | Building area 建物面積 | | 106.09 sq m ~ 108.3 sq m (32.09 tsubo ~ 32.76 tsubo) (measured) 106.09m2 ~ 108.3m2(32.09坪 ~ 32.76坪)(実測) | Completion date 完成時期(築年月) | | November 2013 2013年11月 | Address 住所 | | Yokohama-shi, Kanagawa-ku, Kohoku Nakatehara 2-40-22 神奈川県横浜市港北区仲手原2-40-22 | Traffic 交通 | | Tokyu Toyoko Line "Myorenji" walk 5 minutes Tokyu Toyoko Line "Hakuraku" walk 18 minutes Blue Line "Kishinekoen" walk 16 minutes 東急東横線「妙蓮寺」歩5分 東急東横線「白楽」歩18分 ブルーライン「岸根公園」歩16分
| Person in charge 担当者より | | We are dedicating personnel system for each person in charge customers. [Your tour of the day is also possible! ] Inquiry of the Property Century 21 Global Home "residence of the Information Center" sales staff to please feel free to! 0800-603-7494 担当者お客様毎に専属担当者制です。【当日のご見学も可能です!】本物件のお問い合わせはセンチュリー21グローバルホーム「住まいの情報館」営業スタッフまでお気軽にどうぞ!0800-603-7494 | Contact お問い合せ先 | | TEL: 0800-603-7494 [Toll free] mobile phone ・ Also available from PHS Caller ID is not notified Please contact the "saw SUUMO (Sumo)" If it does not lead, If the real estate company TEL:0800-603-7494【通話料無料】携帯電話・PHSからもご利用いただけます 発信者番号は通知されません 「SUUMO(スーモ)を見た」と問い合わせください つながらない方、不動産会社の方は
| Building coverage, floor area ratio 建ぺい率・容積率 | | Kenpei rate: 50%, Volume ratio: 100% 建ペい率:50%、容積率:100% | Time residents 入居時期 | | Immediate available 即入居可 | Land of the right form 土地の権利形態 | | Ownership 所有権 | Use district 用途地域 | | One low-rise 1種低層 | Land category 地目 | | Residential land 宅地 | Other limitations その他制限事項 | | Quasi-fire zones 準防火地域 | Overview and notices その他概要・特記事項 | | The person in charge: is dedicating personnel system for each customer. , Building confirmation number: No. H25SBC00615Y other 担当者:お客様毎に専属担当者制です。、建築確認番号:第H25SBC00615Y号他 | Company profile 会社概要 | | <Mediation> Kanagawa Governor (2) the first 026,326 No. Century 21 Global Home Co., Ltd. Yubinbango221-0825 Yokohama-shi, Kanagawa, Kanagawa-ku, Sorimachi 4-37-3 Nissin building Yokohama Sorimachi first floor ・ Second floor <仲介>神奈川県知事(2)第026326号センチュリー21グローバルホーム(株)〒221-0825 神奈川県横浜市神奈川区反町4-37-3 日伸ビル横浜反町1階・2階 |
Livingリビング  Building 2 Indoor (November 28, 2013) Shooting
2号棟 室内(2013年11月28日)撮影
Local appearance photo現地外観写真  1 Building Local (November 28, 2013) Shooting
1号棟 現地(2013年11月28日)撮影
Livingリビング  1 Building Indoor (November 28, 2013) Shooting
1号棟 室内(2013年11月28日)撮影
Kitchenキッチン  1 Building Indoor (November 28, 2013) Shooting
1号棟 室内(2013年11月28日)撮影
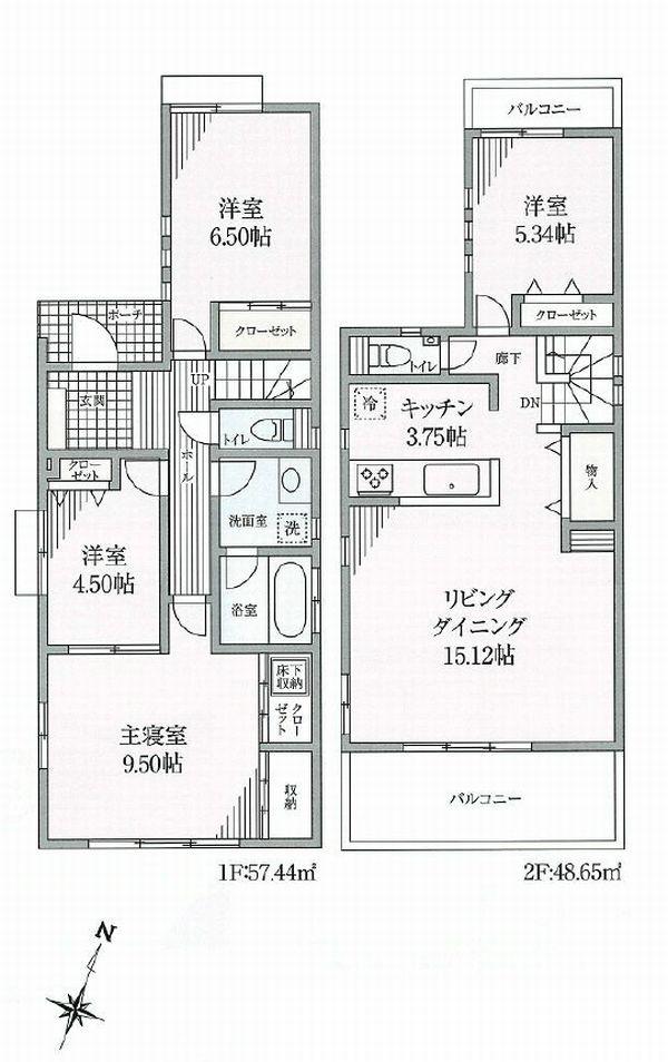
Floor plan間取り図  (1 Building), Price 69,800,000 yen, 4LDK, Land area 122.85 sq m , Building area 108.3 sq m
(1号棟)、価格6980万円、4LDK、土地面積122.85m2、建物面積108.3m2
Local appearance photo現地外観写真  Building 2 Local (November 28, 2013) Shooting
2号棟 現地(2013年11月28日)撮影
Livingリビング  1 Building Indoor (November 28, 2013) Shooting
1号棟 室内(2013年11月28日)撮影
Bathroom浴室  1 Building Indoor (November 28, 2013) Shooting
1号棟 室内(2013年11月28日)撮影
Non-living roomリビング以外の居室  1 Building Indoor (November 28, 2013) Shooting
1号棟 室内(2013年11月28日)撮影
Wash basin, toilet洗面台・洗面所  1 Building Indoor (November 28, 2013) Shooting
1号棟 室内(2013年11月28日)撮影
Receipt収納  1 Building Indoor (November 28, 2013) Shooting
1号棟 室内(2013年11月28日)撮影
Toiletトイレ  1 Building Indoor (November 28, 2013) Shooting
1号棟 室内(2013年11月28日)撮影
Balconyバルコニー  1 Building Local (November 28, 2013) Shooting
1号棟 現地(2013年11月28日)撮影
Station駅  Tokyu Toyoko Line "Myorenji" 400m to the station
東急東横線「妙蓮寺」駅まで400m
View photos from the dwelling unit住戸からの眺望写真  1 Building Local (November 28, 2013) Shooting
1号棟 現地(2013年11月28日)撮影
 The entire compartment Figure
全体区画図
Floor plan間取り図  (Building 2), Price 66,800,000 yen, 4LDK, Land area 123.16 sq m , Building area 106.09 sq m
(2号棟)、価格6680万円、4LDK、土地面積123.16m2、建物面積106.09m2
Livingリビング  1 Building Indoor (November 28, 2013) Shooting
1号棟 室内(2013年11月28日)撮影
Non-living roomリビング以外の居室  1 Building Indoor (November 28, 2013) Shooting
1号棟 室内(2013年11月28日)撮影
Receipt収納  1 Building Indoor (November 28, 2013) Shooting
1号棟 室内(2013年11月28日)撮影
Balconyバルコニー  1 Building Local (November 28, 2013) Shooting
1号棟 現地(2013年11月28日)撮影
Non-living roomリビング以外の居室  1 Building Indoor (November 28, 2013) Shooting
1号棟 室内(2013年11月28日)撮影
Location
|