New Homes » Kanto » Kanagawa Prefecture » Kohoku-ku, Yokohama
 
| | Yokohama-shi, Kanagawa-ku, Kohoku 神奈川県横浜市港北区 |
| Green Line "Takada" walk 14 minutes グリーンライン「高田」歩14分 |
| All 20 buildings of the large subdivision! 2 lines Available, Shopping convenient good location, Green line ・ Trackside Blue Line property is to local architect ocean real estate! 全20棟の大型分譲地!2路線利用可、買い物便利な好立地、グリーンライン・ブルーライン沿線の物件は地元のアーキテクト大洋不動産へ! |
| ■ Large-scale development subdivision in ■ It will protect the important car underground garage ■ South balcony ■ Entrance door card key support ■ The kitchen is dishwasher, With water purifier ■ With bathroom ventilation dryer ■ Vanity is three-sided mirror type ■ Toilet 2 places ■ Flat 35S Available ■大型開発分譲地内■地下車庫が大切な車を守ります■南面バルコニー■玄関ドアはカードキー対応■キッチンは食洗器、浄水器付き■浴室換気乾燥機付き■洗面化粧台は3面鏡タイプ■トイレ2カ所■フラット35S利用可 |
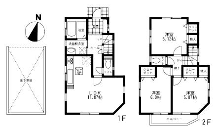
Features pickup 特徴ピックアップ | | Corresponding to the flat-35S / 2 along the line more accessible / See the mountain / System kitchen / Bathroom Dryer / Idyll / Toilet 2 places / Bathroom 1 tsubo or more / 2-story / South balcony / Otobasu / Warm water washing toilet seat / The window in the bathroom / All living room flooring / Good view / Located on a hill / Development subdivision in フラット35Sに対応 /2沿線以上利用可 /山が見える /システムキッチン /浴室乾燥機 /田園風景 /トイレ2ヶ所 /浴室1坪以上 /2階建 /南面バルコニー /オートバス /温水洗浄便座 /浴室に窓 /全居室フローリング /眺望良好 /高台に立地 /開発分譲地内 | Price 価格 | | 37,800,000 yen 3780万円 | Floor plan 間取り | | 3LDK 3LDK | Units sold 販売戸数 | | 1 units 1戸 | Total units 総戸数 | | 21 units 21戸 | Land area 土地面積 | | 106.57 sq m (registration), Inclined portion: 27 sq m including 106.57m2(登記)、傾斜部分:27m2含 | Building area 建物面積 | | 75.56 sq m , Of underground garage 16.95 sq m 75.56m2、うち地下車庫16.95m2 | Driveway burden-road 私道負担・道路 | | Share equity 460.39 sq m × (1 / 21), Northeast 5.5m width (contact the road width 9.7m) 共有持分460.39m2×(1/21)、北東5.5m幅(接道幅9.7m) | Completion date 完成時期(築年月) | | December 2013 2013年12月 | Address 住所 | | Yokohama-shi, Kanagawa-ku, Kohoku Shin'yoshida east 4 神奈川県横浜市港北区新吉田東4 | Traffic 交通 | | Green Line "Takada" walk 14 minutes Tokyu Toyoko Line "Tsunashima" 15 minutes Nitta agricultural cooperatives before walking 5 minutes by bus グリーンライン「高田」歩14分 東急東横線「綱島」バス15分新田農協前歩5分
| Related links 関連リンク | | [Related Sites of this company] 【この会社の関連サイト】 | Person in charge 担当者より | | The person in charge Sasaki Hiroshi 担当者佐々木 裕 | Contact お問い合せ先 | | Century 21 architect ocean real estate (Ltd.) TEL: 0800-809-8502 [Toll free] mobile phone ・ Also available from PHS Caller ID is not notified Please contact the "saw SUUMO (Sumo)" If it does not lead, If the real estate company センチュリー21アーキテクト大洋不動産(株)TEL:0800-809-8502【通話料無料】携帯電話・PHSからもご利用いただけます 発信者番号は通知されません 「SUUMO(スーモ)を見た」と問い合わせください つながらない方、不動産会社の方は
| Building coverage, floor area ratio 建ぺい率・容積率 | | 60% ・ Hundred percent 60%・100% | Time residents 入居時期 | | January 2014 2014年1月 | Land of the right form 土地の権利形態 | | Ownership 所有権 | Structure and method of construction 構造・工法 | | Wooden 2-story 木造2階建 | Use district 用途地域 | | One low-rise 1種低層 | Other limitations その他制限事項 | | Residential land development construction regulation area, Height district, Quasi-fire zones, Height ceiling Yes, Site area minimum Yes, Irregular land, Contact road and the step Yes 宅地造成工事規制区域、高度地区、準防火地域、高さ最高限度有、敷地面積最低限度有、不整形地、接道と段差有 | Overview and notices その他概要・特記事項 | | Contact: Sasaki Hiroshi, Facilities: Public Water Supply, This sewage, City gas, Building confirmation number: 00253, Parking: underground garage 担当者:佐々木 裕、設備:公営水道、本下水、都市ガス、建築確認番号:00253、駐車場:地下車庫 | Company profile 会社概要 | | <Mediation> Governor of Kanagawa Prefecture (3) The 022,813 No. Century 21 architect Taiyo Real Estate Co., Ltd. Yubinbango224-0032 Yokohama-shi, Kanagawa-ku, Tsuzuki Chigasakichuo 17-12 <仲介>神奈川県知事(3)第022813号センチュリー21アーキテクト大洋不動産(株)〒224-0032 神奈川県横浜市都筑区茅ケ崎中央17-12 |
 Local photos, including front road
前面道路含む現地写真
Floor plan間取り図  37,800,000 yen, 3LDK, Land area 106.57 sq m , Building area 75.56 sq m
3780万円、3LDK、土地面積106.57m2、建物面積75.56m2
Sale already cityscape photo分譲済街並み写真  Sale already the city average
分譲済街並
Primary school小学校  Shin'yoshida until elementary school 550m
新吉田小学校まで550m
Other localその他現地  Development subdivision road in front of
開発分譲地前の道路
Junior high school中学校  750m until Nitta junior high school
新田中学校まで750m
Location
|