New Homes » Kanto » Kanagawa Prefecture » Kohoku-ku, Yokohama
 
| | Yokohama-shi, Kanagawa-ku, Kohoku 神奈川県横浜市港北区 |
| Green Line "Higashiyamata" walk 10 minutes グリーンライン「東山田」歩10分 |
| Corner lot, Zenshitsuminami direction, Dish washing dryer, 2 or more sides balcony, Bathroom Dryer, Immediate Available, Fiscal year Available, System kitchen, All room storage, A quiet residential area, Around traffic fewer, Shaping land, Shower 角地、全室南向き、食器洗乾燥機、2面以上バルコニー、浴室乾燥機、即入居可、年度内入居可、システムキッチン、全居室収納、閑静な住宅地、周辺交通量少なめ、整形地、シャワー付 |
| Located on corner lot Two-story building, Entrance part human sensor Adopted some electric shutter Entrance card key Dish washing dryer Bathroom Dryer Bathroom TV Rich greens amenities, including room pair glass You can visit at any time per building already completed Please feel free to contact us 角地に立地 2階建ての建物、玄関一部人感センサー 一部電動シャッターを採用 玄関カードキー 食器洗乾燥機 浴室乾燥機 浴室テレビ 居室ペアガラスなど充実菜設備 建物完成済みに付きいつでもご見学できます お気軽にお問い合わせ下さい |
Features pickup 特徴ピックアップ | | Immediate Available / Fiscal year Available / System kitchen / Bathroom Dryer / All room storage / A quiet residential area / Around traffic fewer / Corner lot / Shaping land / Washbasin with shower / 2-story / 2 or more sides balcony / Zenshitsuminami direction / Warm water washing toilet seat / TV with bathroom / Underfloor Storage / The window in the bathroom / TV monitor interphone / All living room flooring / Dish washing dryer / Water filter 即入居可 /年度内入居可 /システムキッチン /浴室乾燥機 /全居室収納 /閑静な住宅地 /周辺交通量少なめ /角地 /整形地 /シャワー付洗面台 /2階建 /2面以上バルコニー /全室南向き /温水洗浄便座 /TV付浴室 /床下収納 /浴室に窓 /TVモニタ付インターホン /全居室フローリング /食器洗乾燥機 /浄水器 | Price 価格 | | 27,960,000 yen 2796万円 | Floor plan 間取り | | 2LDK + S (storeroom) 2LDK+S(納戸) | Units sold 販売戸数 | | 1 units 1戸 | Land area 土地面積 | | 66.15 sq m (registration) 66.15m2(登記) | Building area 建物面積 | | 52.86 sq m (registration) 52.86m2(登記) | Driveway burden-road 私道負担・道路 | | 11 sq m , West 4m width, North 5m width 11m2、西4m幅、北5m幅 | Completion date 完成時期(築年月) | | November 2013 2013年11月 | Address 住所 | | West Takada, Kanagawa Prefecture, Kohoku-ku, Yokohama 5 神奈川県横浜市港北区高田西5 | Traffic 交通 | | Green Line "Higashiyamata" walk 10 minutes Green Line "Takada" walk 13 minutes Green Line "Kita Yamata" walk 25 minutes グリーンライン「東山田」歩10分 グリーンライン「高田」歩13分 グリーンライン「北山田」歩25分
| Related links 関連リンク | | [Related Sites of this company] 【この会社の関連サイト】 | Contact お問い合せ先 | | TEL: 0800-805-3847 [Toll free] mobile phone ・ Also available from PHS Caller ID is not notified Please contact the "saw SUUMO (Sumo)" If it does not lead, If the real estate company TEL:0800-805-3847【通話料無料】携帯電話・PHSからもご利用いただけます 発信者番号は通知されません 「SUUMO(スーモ)を見た」と問い合わせください つながらない方、不動産会社の方は
| Building coverage, floor area ratio 建ぺい率・容積率 | | Fifty percent ・ 80% 50%・80% | Time residents 入居時期 | | Immediate available 即入居可 | Land of the right form 土地の権利形態 | | Ownership 所有権 | Structure and method of construction 構造・工法 | | Wooden 2-story 木造2階建 | Use district 用途地域 | | One low-rise 1種低層 | Overview and notices その他概要・特記事項 | | Facilities: Public Water Supply, This sewage, City gas, Parking: Garage 設備:公営水道、本下水、都市ガス、駐車場:車庫 | Company profile 会社概要 | | <Mediation> Minister of Land, Infrastructure and Transport (2) No. 007179 (Ltd.) Benhausu source Sumiyoshi branch Yubinbango211-0025 Kanagawa Prefecture, Nakahara-ku, Kawasaki Kizuki 2-8-2 <仲介>国土交通大臣(2)第007179号(株)ベンハウス元住吉支店〒211-0025 神奈川県川崎市中原区木月2-8-2 |
Local appearance photo現地外観写真  Local (12 May 2013) Shooting
現地(2013年12月)撮影
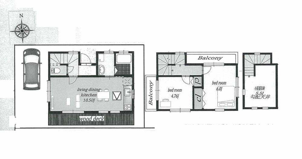
Floor plan間取り図  27,960,000 yen, 2LDK + S (storeroom), Land area 66.15 sq m , Building area 52.86 sq m
2796万円、2LDK+S(納戸)、土地面積66.15m2、建物面積52.86m2
Livingリビング  Indoor (12 May 2013) Shooting
室内(2013年12月)撮影
Bathroom浴室  Indoor (12 May 2013) Shooting
室内(2013年12月)撮影
Kitchenキッチン  Indoor (12 May 2013) Shooting
室内(2013年12月)撮影
Non-living roomリビング以外の居室  Indoor (12 May 2013) Shooting
室内(2013年12月)撮影
Wash basin, toilet洗面台・洗面所  Indoor (12 May 2013) Shooting
室内(2013年12月)撮影
Receipt収納  Indoor (12 May 2013) Shooting
室内(2013年12月)撮影
Toiletトイレ  Indoor (12 May 2013) Shooting
室内(2013年12月)撮影
View photos from the dwelling unit住戸からの眺望写真  View from the site (December 2013) Shooting
現地からの眺望(2013年12月)撮影
Location
|