New Homes » Kanto » Kanagawa Prefecture » Yokohama City Konan-ku
 
| | Yokohama-shi, Kanagawa-ku, Konan 神奈川県横浜市港南区 |
| Blue Line "Shimonagaya" walk 9 minutes ブルーライン「下永谷」歩9分 |
Features pickup 特徴ピックアップ | | Parking two Allowed / Super close / System kitchen / Bathroom Dryer / All room storage / LDK15 tatami mats or more / Washbasin with shower / Toilet 2 places / Bathroom 1 tsubo or more / 2-story / Southeast direction / Warm water washing toilet seat / loft / Underfloor Storage / TV monitor interphone / All living room flooring / Dish washing dryer / Water filter / City gas 駐車2台可 /スーパーが近い /システムキッチン /浴室乾燥機 /全居室収納 /LDK15畳以上 /シャワー付洗面台 /トイレ2ヶ所 /浴室1坪以上 /2階建 /東南向き /温水洗浄便座 /ロフト /床下収納 /TVモニタ付インターホン /全居室フローリング /食器洗乾燥機 /浄水器 /都市ガス | Price 価格 | | 47,800,000 yen 4780万円 | Floor plan 間取り | | 4LDK 4LDK | Units sold 販売戸数 | | 1 units 1戸 | Land area 土地面積 | | 128.97 sq m (registration) 128.97m2(登記) | Building area 建物面積 | | 98.54 sq m (registration) 98.54m2(登記) | Driveway burden-road 私道負担・道路 | | Nothing 無 | Completion date 完成時期(築年月) | | September 2013 2013年9月 | Address 住所 | | Yokohama-shi, Kanagawa-ku, Konan Higiriyama 1 神奈川県横浜市港南区日限山1 | Traffic 交通 | | Blue Line "Shimonagaya" walk 9 minutes Blue Line "Kaminagaya" walk 13 minutes ブルーライン「下永谷」歩9分 ブルーライン「上永谷」歩13分
| Person in charge 担当者より | | [Regarding this property.] Southeast garden 4LDK. Good is per yang for the front road about 8 meters. 【この物件について】南東庭付き4LDK。前面道路約8メートルのため陽当り良好です。 | Contact お問い合せ先 | | TEL: 0800-808-9750 [Toll free] mobile phone ・ Also available from PHS Caller ID is not notified Please contact the "saw SUUMO (Sumo)" If it does not lead, If the real estate company TEL:0800-808-9750【通話料無料】携帯電話・PHSからもご利用いただけます 発信者番号は通知されません 「SUUMO(スーモ)を見た」と問い合わせください つながらない方、不動産会社の方は
| Building coverage, floor area ratio 建ぺい率・容積率 | | 40% ・ 80% 40%・80% | Time residents 入居時期 | | Consultation 相談 | Land of the right form 土地の権利形態 | | Ownership 所有権 | Structure and method of construction 構造・工法 | | Wooden 2-story 木造2階建 | Use district 用途地域 | | One low-rise 1種低層 | Overview and notices その他概要・特記事項 | | Facilities: Public Water Supply, This sewage, City gas, Building confirmation number: first 24SBC- Make 03150Y No. 設備:公営水道、本下水、都市ガス、建築確認番号:第24SBC-確03150Y号 | Company profile 会社概要 | | <Mediation> Governor of Kanagawa Prefecture (10) Article 010799 No. Usui Home Co., Ltd. Kamiooka shop Yubinbango233-0002 Yokohama-shi, Kanagawa-ku, Konan Kamiookanishi 1-10-11 <仲介>神奈川県知事(10)第010799号ウスイホーム(株)上大岡店〒233-0002 神奈川県横浜市港南区上大岡西1-10-11 |
 Local appearance photo
現地外観写真
Other localその他現地  Compartment figure
区画図
 Local photos, including front road
前面道路含む現地写真
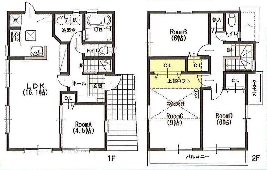
Floor plan間取り図  47,800,000 yen, 4LDK, Land area 128.97 sq m , Building area 98.54 sq m
4780万円、4LDK、土地面積128.97m2、建物面積98.54m2
 Living
リビング
 Bathroom
浴室
 Kitchen
キッチン
 Non-living room
リビング以外の居室
 Wash basin, toilet
洗面台・洗面所
 Receipt
収納
 Garden
庭
 Balcony
バルコニー
 Living
リビング
Location
|