|
|
Yokohama-shi, Kanagawa-ku, green
神奈川県横浜市緑区
|
|
JR Yokohama Line "Zhongshan" walk 14 minutes
JR横浜線「中山」歩14分
|
|
● Flat 35S corresponding ● charm dwelling insurance corresponding ● termite prevention construction warranty
●フラット35S対応●まもりすまい保険対応●シロアリ予防施工保証付
|
|
«Specifications ・ Equipment » ■ Outer wall: siding 14mm ■ All room pair glass ■ With front door storage mirror ■ I type 2550 kitchen Water purifier integrated faucet ■ With bathroom heating ventilation dryer ■ Basin single lever shower faucet ■ Vanity 1F ・ 2F ■ Toilets: Washlet correspondence (one location only) ■ Intercom: with color monitor
≪仕様・設備≫■外壁:サイディング14mm■全居室ペアガラス■玄関収納鏡付■I型2550キッチン 浄水器一体型水栓■浴室暖房換気乾燥機付■洗面シングルレバーシャワー水栓■洗面化粧台1F・2F■トイレ:ウォシュレット対応(1ヶ所のみ)■インターホン:カラーモニター付
|
Features pickup 特徴ピックアップ | | Corresponding to the flat-35S / Bathroom Dryer / All room storage / LDK15 tatami mats or more / Japanese-style room / Face-to-face kitchen / Toilet 2 places / 2-story / Double-glazing / Warm water washing toilet seat / TV monitor interphone / Water filter / City gas / Attic storage フラット35Sに対応 /浴室乾燥機 /全居室収納 /LDK15畳以上 /和室 /対面式キッチン /トイレ2ヶ所 /2階建 /複層ガラス /温水洗浄便座 /TVモニタ付インターホン /浄水器 /都市ガス /屋根裏収納 |
Price 価格 | | 38,158,000 yen ・ 39,158,000 yen 3815万8000円・3915万8000円 |
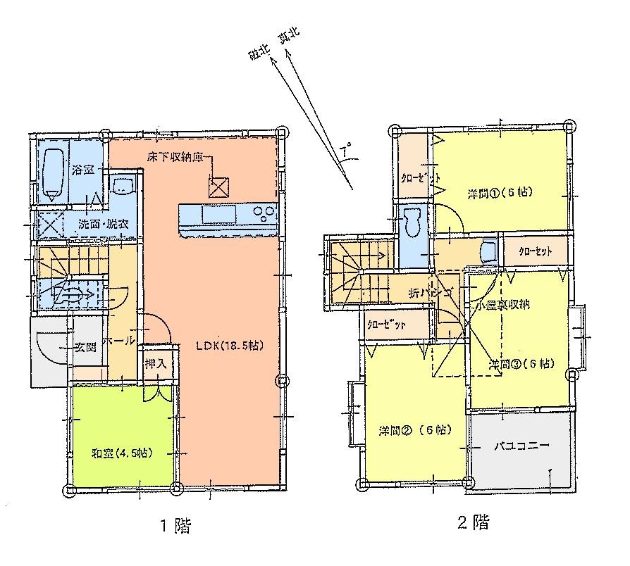
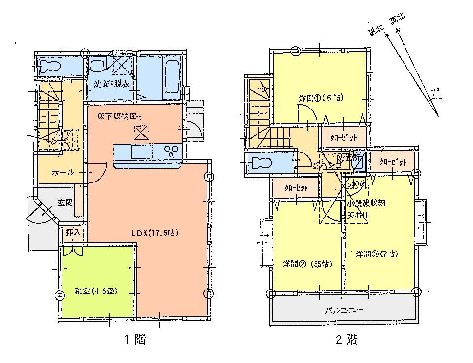
Floor plan 間取り | | 4LDK 4LDK |
Units sold 販売戸数 | | 2 units 2戸 |
Land area 土地面積 | | 125.21 sq m (37.87 tsubo) (Registration) 125.21m2(37.87坪)(登記) |
Building area 建物面積 | | 97.7 sq m ・ 99.36 sq m (29.55 tsubo ・ 30.05 tsubo) (Registration) 97.7m2・99.36m2(29.55坪・30.05坪)(登記) |
Driveway burden-road 私道負担・道路 | | Driveway Southwest side about 4m 私道 南西側約4m |
Completion date 完成時期(築年月) | | January 2014 will 2014年1月予定 |
Address 住所 | | Yokohama-shi, Kanagawa-ku, green Terayama-cho 神奈川県横浜市緑区寺山町 |
Traffic 交通 | | JR Yokohama Line "Zhongshan" walk 14 minutes Green Line "Zhongshan" walk 14 minutes Green Line "Kawawa town" walk 43 minutes JR横浜線「中山」歩14分 グリーンライン「中山」歩14分 グリーンライン「川和町」歩43分
|
Related links 関連リンク | | [Related Sites of this company] 【この会社の関連サイト】 |
Person in charge 担当者より | | Person in charge of real-estate and building Kusakabe My home life largest shopping Junyume. It is the largest of the joy that can help the. "Thank you receive from customers! Voice "is our above all treasures. I would like to cherish such a meeting. 担当者宅建日下部 潤夢のマイホームは人生最大の買い物。そのお手伝いができることは最大の喜びです。お客さまからいただく「ありがとう!」の声は私たちの何よりの宝物です。そんな出会いを大切にしたいと考えております。 |
Contact お問い合せ先 | | TEL: 0800-603-2880 [Toll free] mobile phone ・ Also available from PHS Caller ID is not notified Please contact the "saw SUUMO (Sumo)" If it does not lead, If the real estate company TEL:0800-603-2880【通話料無料】携帯電話・PHSからもご利用いただけます 発信者番号は通知されません 「SUUMO(スーモ)を見た」と問い合わせください つながらない方、不動産会社の方は
|
Building coverage, floor area ratio 建ぺい率・容積率 | | Kenpei rate: 50%, Volume ratio: 80% 建ペい率:50%、容積率:80% |
Time residents 入居時期 | | Consultation 相談 |
Land of the right form 土地の権利形態 | | Ownership 所有権 |
Structure and method of construction 構造・工法 | | 2-story wooden 木造2階建て |
Use district 用途地域 | | Urbanization control area 市街化調整区域 |
Overview and notices その他概要・特記事項 | | Contact: Kusakabe Jun, Building Permits reason: City Planning Law Enforcement Ordinance Article 36 corresponds to 1, Item No. 3 b, Building confirmation number: 9 phase (2) Building: the first 13KAK Ken確 01211 9 period (3) Building: the first 13KAK Ken確 01212 担当者:日下部 潤、建築許可理由:都市計画法施行令36条1項3号ロに該当、建築確認番号:9期(2)号棟:第13KAK建確01211 9期(3)号棟:第13KAK建確01212 |
Company profile 会社概要 | | <Mediation> Governor of Kanagawa Prefecture (3) The 023,713 No. Century 21 (Ltd.) Get House Yubinbango223-0052 Yokohama-shi, Kanagawa-ku, Kohoku Tsunashimahigashi 1-6-3 TS Yoshihara building second floor <仲介>神奈川県知事(3)第023713号センチュリー21(株)ゲットハウス〒223-0052 神奈川県横浜市港北区綱島東1-6-3 TS吉原ビル2階 |