New Homes » Kanto » Kanagawa Prefecture » Yokohama Midori-ku
 
| | Yokohama-shi, Kanagawa-ku, green 神奈川県横浜市緑区 |
| JR Yokohama Line "Zhongshan" walk 2 minutes JR横浜線「中山」歩2分 |
| JR Yokohama Line "Zhongshan" station a 2-minute walk, Life convenient living environment, such as shopping and commuting near Terminal Station! All building parking space one ensure! Clean streets of development subdivision, Entrance fingerprint authentication key addition to enhance equipment specifications of JR横浜線『中山』駅徒歩2分、ターミナル駅近くで買物や通勤など生活至便な住環境!全棟駐車スペース1台確保!開発分譲地のきれいな街並み、玄関指紋認証キーほか充実の設備仕様 |
| Super close, It is close to the city, System kitchen, Bathroom Dryer, Yang per good, All room storage, A quiet residential areaese-style room, Washbasin with shower, Face-to-face kitchen, Toilet 2 places, 2-story, 2 or more sides balcony, Double-glazing, Warm water washing toilet seat, Underfloor Storage, The window in the bathroom, TV monitor interphone, Leafy residential area, Urban neighborhood, Ventilation good, All living room flooring, Southwestward, Dish washing dryer, Water filter, Three-story or more, Living stairs, Storeroom, Attic storage, Development subdivision in, terrace, Readjustment land within スーパーが近い、市街地が近い、システムキッチン、浴室乾燥機、陽当り良好、全居室収納、閑静な住宅地、和室、シャワー付洗面台、対面式キッチン、トイレ2ヶ所、2階建、2面以上バルコニー、複層ガラス、温水洗浄便座、床下収納、浴室に窓、TVモニタ付インターホン、緑豊かな住宅地、都市近郊、通風良好、全居室フローリング、南西向き、食器洗乾燥機、浄水器、3階建以上、リビング階段、納戸、屋根裏収納、開発分譲地内、テラス、区画整理地内 |
Features pickup 特徴ピックアップ | | Super close / It is close to the city / System kitchen / Bathroom Dryer / Yang per good / All room storage / A quiet residential area / Japanese-style room / Washbasin with shower / Face-to-face kitchen / Toilet 2 places / 2-story / 2 or more sides balcony / Double-glazing / Warm water washing toilet seat / Underfloor Storage / The window in the bathroom / TV monitor interphone / Leafy residential area / Urban neighborhood / Ventilation good / All living room flooring / Southwestward / Dish washing dryer / Water filter / Three-story or more / Living stairs / Storeroom / Attic storage / Development subdivision in / terrace / Readjustment land within スーパーが近い /市街地が近い /システムキッチン /浴室乾燥機 /陽当り良好 /全居室収納 /閑静な住宅地 /和室 /シャワー付洗面台 /対面式キッチン /トイレ2ヶ所 /2階建 /2面以上バルコニー /複層ガラス /温水洗浄便座 /床下収納 /浴室に窓 /TVモニタ付インターホン /緑豊かな住宅地 /都市近郊 /通風良好 /全居室フローリング /南西向き /食器洗乾燥機 /浄水器 /3階建以上 /リビング階段 /納戸 /屋根裏収納 /開発分譲地内 /テラス /区画整理地内 | Price 価格 | | 29,800,000 yen ~ 44,800,000 yen 2980万円 ~ 4480万円 | Floor plan 間取り | | 2LDK + 2S (storeroom) ~ 4LDK 2LDK+2S(納戸) ~ 4LDK | Units sold 販売戸数 | | 19 units 19戸 | Land area 土地面積 | | 46.47 sq m ~ 123.5 sq m (registration) 46.47m2 ~ 123.5m2(登記) | Building area 建物面積 | | 58.33 sq m ~ 117.07 sq m (registration) 58.33m2 ~ 117.07m2(登記) | Driveway burden-road 私道負担・道路 | | Road width: 4m ~ 5.5m, Development road, Evacuation route, Garbage storage interests will ownership on top of the interest rate setting 道路幅:4m ~ 5.5m、開発道路、避難経路、ゴミ置き場持分は持分割合設定の上所有いただきます | Completion date 完成時期(築年月) | | June 2014 in late schedule 2014年6月下旬予定 | Address 住所 | | Yokohama-shi, Kanagawa-ku, green Daimler-cho living Kaeshita 32-18 神奈川県横浜市緑区台村町字住還下32-18他 | Traffic 交通 | | JR Yokohama Line "Zhongshan" walk 2 minutes Green Line "Kawawa town" walk 34 minutes JR Yokohama Line "Tokaichiba" walk 30 minutes JR横浜線「中山」歩2分 グリーンライン「川和町」歩34分 JR横浜線「十日市場」歩30分
| Related links 関連リンク | | [Related Sites of this company] 【この会社の関連サイト】 | Person in charge 担当者より | | Rep Iwasaki Naoto Age: 20 Daigyokai experience: we will be supported by the full force of the looking for house for one year customer! 担当者岩崎 直人年齢:20代業界経験:1年お客様のためにお住まい探しを全力でサポートさせて頂きます! | Contact お問い合せ先 | | TEL: 0800-603-8928 [Toll free] mobile phone ・ Also available from PHS Caller ID is not notified Please contact the "saw SUUMO (Sumo)" If it does not lead, If the real estate company TEL:0800-603-8928【通話料無料】携帯電話・PHSからもご利用いただけます 発信者番号は通知されません 「SUUMO(スーモ)を見た」と問い合わせください つながらない方、不動産会社の方は
| Most price range 最多価格帯 | | 30 million yen 37 million yen (5 units) 3000万円台3,700万円台(5戸) | Building coverage, floor area ratio 建ぺい率・容積率 | | Kenpei rate: 80%, Volume ratio: 300% 建ペい率:80%、容積率:300% | Land of the right form 土地の権利形態 | | Ownership 所有権 | Structure and method of construction 構造・工法 | | Wooden 2-story, Wooden three-story 木造2階建、木造3階建 | Use district 用途地域 | | Residential 近隣商業 | Land category 地目 | | Hybrid land 雑種地 | Overview and notices その他概要・特記事項 | | Contact: Iwasaki Naoto, Building confirmation number: No. H24 confirmation architecture KBI06492 No. Other 担当者:岩崎 直人、建築確認番号:第H24確認建築KBI06492号ほか | Company profile 会社概要 | | <Mediation> Kanagawa Governor (2) the first 026,950 No. Century 21 Corporation Yokohama estate Yubinbango222-0033 Yokohama-shi, Kanagawa-ku, Yokohama, Kohoku 3-21-12 <仲介>神奈川県知事(2)第026950号センチュリー21(株)ヨコハマ地所〒222-0033 神奈川県横浜市港北区新横浜3-21-12 |
Local appearance photo現地外観写真  Local (12 May 2013) Shooting
現地(2013年12月)撮影
 Local (12 May 2013) Shooting
現地(2013年12月)撮影
 Local (12 May 2013) Shooting
現地(2013年12月)撮影
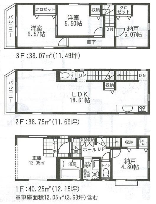
Floor plan間取り図  (30 Building), Price 37,800,000 yen, 2LDK+2S, Land area 61.75 sq m , Building area 117.07 sq m
(30号棟)、価格3780万円、2LDK+2S、土地面積61.75m2、建物面積117.07m2
 Local photos, including front road
前面道路含む現地写真
Supermarketスーパー  Zhongshan Tokyu up to 400m
中山とうきゅうまで400m
 The entire compartment Figure
全体区画図
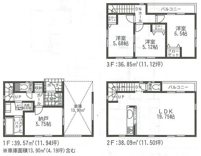
Floor plan間取り図  (29 Building), Price 35,800,000 yen, 3LDK+S, Land area 55 sq m , Building area 114.51 sq m
(29号棟)、価格3580万円、3LDK+S、土地面積55m2、建物面積114.51m2
 Local photos, including front road
前面道路含む現地写真
Supermarketスーパー  Until Piago Zhongshan shop 31m
ピアゴ中山店まで31m
Floor plan間取り図  (28 Building), Price 35,800,000 yen, 4LDK, Land area 55 sq m , Building area 114.09 sq m
(28号棟)、価格3580万円、4LDK、土地面積55m2、建物面積114.09m2
Kindergarten ・ Nursery幼稚園・保育園  950m to Zhongshan kindergarten
中山幼稚園まで950m
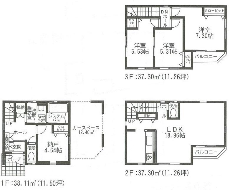
Floor plan間取り図  (27 Building), Price 35,800,000 yen, 3LDK+S, Land area 55 sq m , Building area 114.33 sq m
(27号棟)、価格3580万円、3LDK+S、土地面積55m2、建物面積114.33m2
Junior high school中学校  1400m to Yokohama City Tatsunaka Mountain Junior High School
横浜市立中山中学校まで1400m
Floor plan間取り図  (26 Building), Price 36,800,000 yen, 4LDK, Land area 62.14 sq m , Building area 114.52 sq m
(26号棟)、価格3680万円、4LDK、土地面積62.14m2、建物面積114.52m2
Primary school小学校  900m to Yokohama Municipal Morinodai Elementary School
横浜市立森の台小学校まで900m
Floor plan間取り図  (25 Building), Price 39,800,000 yen, 3LDK+S, Land area 56 sq m , Building area 112.71 sq m
(25号棟)、価格3980万円、3LDK+S、土地面積56m2、建物面積112.71m2
Kindergarten ・ Nursery幼稚園・保育園  750m until the green Terayama nursery
みどり寺山保育園まで750m
Floor plan間取り図  (22 Building), Price 37,800,000 yen, 4LDK, Land area 52.94 sq m , Building area 114.62 sq m
(22号棟)、価格3780万円、4LDK、土地面積52.94m2、建物面積114.62m2
Park公園  1100m to the four seasons of the forest park
四季の森公園まで1100m
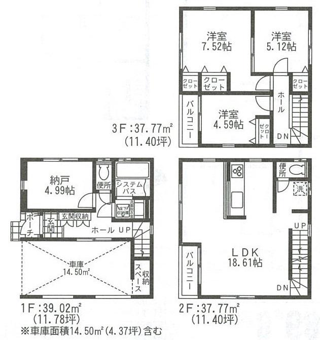
Floor plan間取り図  (21 Building), Price 37,800,000 yen, 3LDK+S, Land area 52.13 sq m , Building area 114.56 sq m
(21号棟)、価格3780万円、3LDK+S、土地面積52.13m2、建物面積114.56m2
Location
|