New Homes » Kanto » Kanagawa Prefecture » Yokohama Midori-ku
 
| | Yokohama-shi, Kanagawa-ku, green 神奈川県横浜市緑区 |
| JR Yokohama Line "Zhongshan" walk 6 minutes JR横浜線「中山」歩6分 |
| Detached of a certain sense of open corner lot. Facing widely in southeast, Good floor plan of per yang. Convenient location to go through the supermarkets from the station. Enhancement is also housing facilities such as dishwasher and floor heating. 開放感ある角地の戸建。南東に広く面する、陽あたりの良い間取り。駅からスーパーなどを通って行ける便利な立地。食洗器や床暖房などの住宅設備も充実。 |
| ■ Surrounding, Car street is less quiet environment for the road that can not be passed through to the earlier. □ Good buildings per yang facing widely in southeast, LDK face-to-face kitchen and living room stairs. Pantry and a rooftop, etc., Is a floor plan of attention. ■周辺は、先へ通り抜けできない道のため車通りが少ない静かな環境です。□南東に広く面した陽あたりの良い建物は、対面キッチンとリビング階段のLDK。パントリーや屋上など、こだわりの間取りです。 |
Features pickup 特徴ピックアップ | | Pre-ground survey / 2 along the line more accessible / Fiscal year Available / Super close / System kitchen / Bathroom Dryer / Yang per good / All room storage / Siemens south road / A quiet residential area / LDK15 tatami mats or more / Around traffic fewer / Corner lot / Shaping land / Washbasin with shower / Face-to-face kitchen / Toilet 2 places / Bathroom 1 tsubo or more / 2-story / 2 or more sides balcony / South balcony / Double-glazing / Underfloor Storage / The window in the bathroom / TV monitor interphone / High-function toilet / Leafy residential area / Ventilation good / All living room flooring / Southwestward / Dish washing dryer / Water filter / Living stairs / City gas / Flat terrain / Floor heating / Development subdivision in / rooftop 地盤調査済 /2沿線以上利用可 /年度内入居可 /スーパーが近い /システムキッチン /浴室乾燥機 /陽当り良好 /全居室収納 /南側道路面す /閑静な住宅地 /LDK15畳以上 /周辺交通量少なめ /角地 /整形地 /シャワー付洗面台 /対面式キッチン /トイレ2ヶ所 /浴室1坪以上 /2階建 /2面以上バルコニー /南面バルコニー /複層ガラス /床下収納 /浴室に窓 /TVモニタ付インターホン /高機能トイレ /緑豊かな住宅地 /通風良好 /全居室フローリング /南西向き /食器洗乾燥機 /浄水器 /リビング階段 /都市ガス /平坦地 /床暖房 /開発分譲地内 /屋上 | Event information イベント情報 | | Local sales Association (please make a reservation beforehand) schedule / Every Saturday, Sunday and public holidays time / 10:00 ~ 17:00 現地販売会(事前に必ず予約してください)日程/毎週土日祝時間/10:00 ~ 17:00 | Property name 物件名 | | Azalea Hills Zhongshan アゼリアヒルズ中山 | Price 価格 | | 51,800,000 yen 5180万円 | Floor plan 間取り | | 3LDK + S (storeroom) 3LDK+S(納戸) | Units sold 販売戸数 | | 2 units 2戸 | Total units 総戸数 | | 2 units 2戸 | Land area 土地面積 | | 100.85 sq m ・ 105.13 sq m 100.85m2・105.13m2 | Building area 建物面積 | | 99.97 sq m ・ 100.59 sq m 99.97m2・100.59m2 | Driveway burden-road 私道負担・道路 | | Road width: 4.5m, Concrete pavement 道路幅:4.5m、コンクリート舗装 | Completion date 完成時期(築年月) | | March 2014 early schedule 2014年3月上旬予定 | Address 住所 | | Yokohama-shi, Kanagawa-ku, green Daimler-cho 神奈川県横浜市緑区台村町 | Traffic 交通 | | JR Yokohama Line "Zhongshan" walk 6 minutes Green Line "Kawawa town" walk 33 minutes JR Yokohama Line "Tokaichiba" walk 31 minutes JR横浜線「中山」歩6分 グリーンライン「川和町」歩33分 JR横浜線「十日市場」歩31分
| Related links 関連リンク | | [Related Sites of this company] 【この会社の関連サイト】 | Person in charge 担当者より | | There are a lot that do not know everyone in relation to the structure and the laws of the person in charge Taguchi St. building. After I graduated from the Department of Architecture, I will propose recommendations properties from the standpoint of utilizing the experience because I have been working for eight years to first-class architect design office. 担当者田口 聖建物の構造や法律に関して皆様が知らないことがたくさんあります。私は建築学科を卒業後、一級建築士設計事務所に8年間勤めていましたので経験を生かした立場からおすすめ物件をご提案させていただきます。 | Contact お問い合せ先 | | TEL: 0800-603-1129 [Toll free] mobile phone ・ Also available from PHS Caller ID is not notified Please contact the "saw SUUMO (Sumo)" If it does not lead, If the real estate company TEL:0800-603-1129【通話料無料】携帯電話・PHSからもご利用いただけます 発信者番号は通知されません 「SUUMO(スーモ)を見た」と問い合わせください つながらない方、不動産会社の方は
| Most price range 最多価格帯 | | 51 million yen (2 units) 5100万円台(2戸) | Building coverage, floor area ratio 建ぺい率・容積率 | | Kenpei rate: 50%, Volume ratio: 100% 建ペい率:50%、容積率:100% | Time residents 入居時期 | | March 2014 mid-scheduled 2014年3月中旬予定 | Land of the right form 土地の権利形態 | | Ownership 所有権 | Structure and method of construction 構造・工法 | | Wooden 2-story 木造2階建 | Use district 用途地域 | | One low-rise 1種低層 | Land category 地目 | | Residential land 宅地 | Other limitations その他制限事項 | | Quasi-fire zones 準防火地域 | Overview and notices その他概要・特記事項 | | Contact: Taguchi St., Building confirmation number: the H25 building certification No. KBI04979 ・ other 担当者:田口 聖、建築確認番号:第H25確認建築KBI04979号・他 | Company profile 会社概要 | | <Seller> Governor of Kanagawa Prefecture (1) No. 027052 (the company), Kanagawa Prefecture Building Lots and Buildings Transaction Business Association (Corporation) metropolitan area real estate Fair Trade Council member (Ltd.) Azalea Home Yubinbango214-0037 Kawasaki City, Kanagawa Prefecture Tama-ku, Nishiikuta 2-13-13 <売主>神奈川県知事(1)第027052号(社)神奈川県宅地建物取引業協会会員 (公社)首都圏不動産公正取引協議会加盟(株)アゼリアホーム〒214-0037 神奈川県川崎市多摩区西生田2-13-13 |
Rendering (appearance)完成予想図(外観)  (6 Building) Rendering
(6号棟)完成予想図
 (6 Building) Rendering
(6号棟)完成予想図
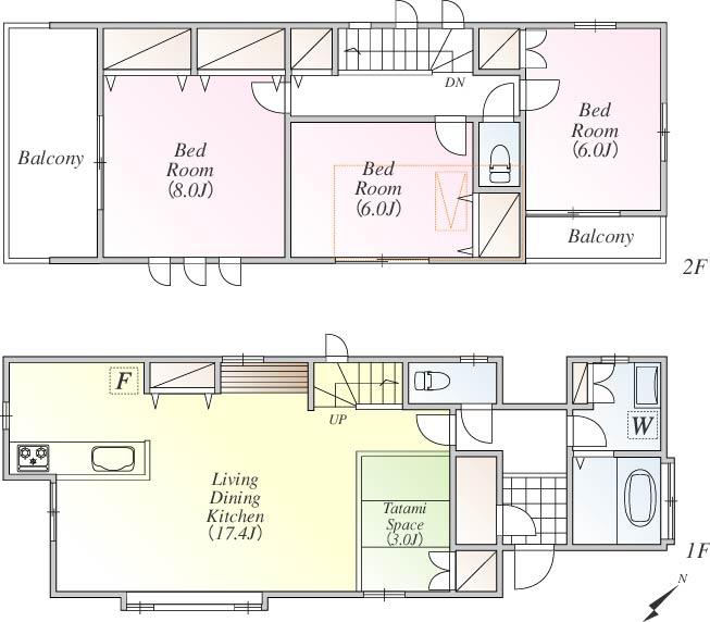
Floor plan間取り図  (6 Building), Price 51,800,000 yen, 3LDK+S, Land area 100.85 sq m , Building area 100.59 sq m
(6号棟)、価格5180万円、3LDK+S、土地面積100.85m2、建物面積100.59m2
 (1 Building), Price 51,800,000 yen, 3LDK+S, Land area 105.13 sq m , Building area 99.97 sq m
(1号棟)、価格5180万円、3LDK+S、土地面積105.13m2、建物面積99.97m2
Government office役所  507m to Yokohama-shi green ward office
横浜市緑区役所まで507m
Station駅  480m to Zhongshan Station
中山駅まで480m
Supermarketスーパー  Until Piago Zhongshan shop 366m
ピアゴ中山店まで366m
Park公園  1500m to the four seasons of the forest park
四季の森公園まで1500m
Other Environmental Photoその他環境写真  Until Zoorasia 3900m
ズーラシアまで3900m
Local photos, including front road前面道路含む現地写真  Local (September 2013) Shooting
現地(2013年9月)撮影
Location
|