New Homes » Kanto » Kanagawa Prefecture » Yokohama Midori-ku
 
| | Yokohama-shi, Kanagawa-ku, green 神奈川県横浜市緑区 |
| Denentoshi Tokyu "Nagatsuta" walk 5 minutes 東急田園都市線「長津田」歩5分 |
| ■ "Nagatsuta" a 5-minute walk from the station, Commercial facilities are also abundant life convenience good! ■ Spacious space in the site about 39 square meters, Storage is also rich in livability good of 4LDK! ■『長津田』駅より徒歩5分、商業施設も豊富で生活利便性良好!■敷地約39坪でゆったりとした空間、収納も豊富で居住性良好の4LDK! |
| □ For one step higher than the site a feeling of opening ・ This view bright good indoor. ! □ Face-to-face kitchen Pledge LDK14! □敷地より一段高い為開放感・眺望良好で明るい室内です。!□LDK14帖で対面キッチン! |
Features pickup 特徴ピックアップ | | System kitchen / Yang per good / All room storage / A quiet residential area / Around traffic fewer / Japanese-style room / Washbasin with shower / Face-to-face kitchen / Toilet 2 places / Bathroom 1 tsubo or more / 2-story / South balcony / Warm water washing toilet seat / Nantei / Ventilation good / City gas / Development subdivision in システムキッチン /陽当り良好 /全居室収納 /閑静な住宅地 /周辺交通量少なめ /和室 /シャワー付洗面台 /対面式キッチン /トイレ2ヶ所 /浴室1坪以上 /2階建 /南面バルコニー /温水洗浄便座 /南庭 /通風良好 /都市ガス /開発分譲地内 | Price 価格 | | 49,800,000 yen ・ 50,300,000 yen 4980万円・5030万円 | Floor plan 間取り | | 4LDK 4LDK | Units sold 販売戸数 | | 2 units 2戸 | Total units 総戸数 | | 5 units 5戸 | Land area 土地面積 | | 130.38 sq m (measured) 130.38m2(実測) | Building area 建物面積 | | 96.87 sq m ・ 98.12 sq m (measured) 96.87m2・98.12m2(実測) | Driveway burden-road 私道負担・道路 | | Road width: 4.5m, Asphaltic pavement 道路幅:4.5m、アスファルト舗装 | Completion date 完成時期(築年月) | | January 2014 will 2014年1月予定 | Address 住所 | | Yokohama-shi, Kanagawa-ku, green Nagatsuta 2 神奈川県横浜市緑区長津田2 | Traffic 交通 | | Denentoshi Tokyu "Nagatsuta" walk 5 minutes JR Yokohama Line "Nagatsuta" walk 5 minutes 東急田園都市線「長津田」歩5分 JR横浜線「長津田」歩5分
| Related links 関連リンク | | [Related Sites of this company] 【この会社の関連サイト】 | Person in charge 担当者より | | Person in charge of forest Bright 20's smile: Kengo age, We will be your help. 担当者林 謙吾年齢:20代笑顔で明るく、お客様のお手伝いをさせていただきます。 | Contact お問い合せ先 | | TEL: 0800-603-1840 [Toll free] mobile phone ・ Also available from PHS Caller ID is not notified Please contact the "saw SUUMO (Sumo)" If it does not lead, If the real estate company TEL:0800-603-1840【通話料無料】携帯電話・PHSからもご利用いただけます 発信者番号は通知されません 「SUUMO(スーモ)を見た」と問い合わせください つながらない方、不動産会社の方は
| Building coverage, floor area ratio 建ぺい率・容積率 | | Kenpei rate: 50%, Volume ratio: 100% 建ペい率:50%、容積率:100% | Time residents 入居時期 | | January 2014 2014年1月 | Land of the right form 土地の権利形態 | | Ownership 所有権 | Use district 用途地域 | | One low-rise 1種低層 | Land category 地目 | | Residential land 宅地 | Overview and notices その他概要・特記事項 | | Contact: Lin Kengo, Building confirmation number: 03415-1 No. other 担当者:林 謙吾、建築確認番号:03415-1号他 | Company profile 会社概要 | | <Mediation> Kanagawa Governor (6) Article 018811 No. Century 21 (stock) Star Life business 2 Division Yubinbango220-0005 Kanagawa Prefecture, Nishi-ku, Yokohama-shi Nanko 2-11-1 Yokohama Em ・ Es ・ Building second floor <仲介>神奈川県知事(6)第018811号センチュリー21(株)スターライフ営業二課〒220-0005 神奈川県横浜市西区南幸2-11-1 横浜エム・エス・ビル2階 |
Local appearance photo現地外観写真  Local (12 May 2013) Shooting
現地(2013年12月)撮影
 Local (12 May 2013) Shooting
現地(2013年12月)撮影
 Local (12 May 2013) Shooting
現地(2013年12月)撮影
Floor plan間取り図  (1-1 Building), Price 50,300,000 yen, 4LDK, Land area 130.38 sq m , Building area 98.12 sq m
(1-1号棟)、価格5030万円、4LDK、土地面積130.38m2、建物面積98.12m2
Local appearance photo現地外観写真  Local (12 May 2013) Shooting
現地(2013年12月)撮影
Garden庭  Local (12 May 2013) Shooting
現地(2013年12月)撮影
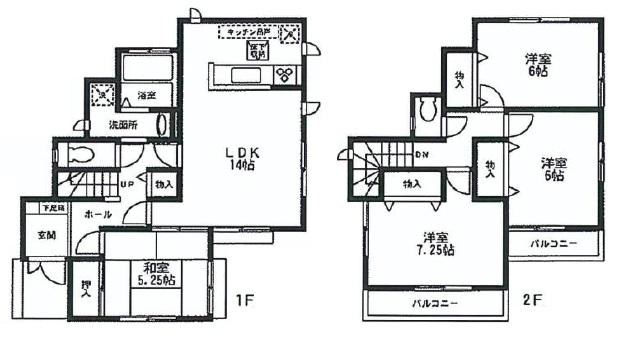
Floor plan間取り図  (1-3 Building), Price 49,800,000 yen, 4LDK, Land area 130.38 sq m , Building area 96.87 sq m
(1-3号棟)、価格4980万円、4LDK、土地面積130.38m2、建物面積96.87m2
Local appearance photo現地外観写真  Local (12 May 2013) Shooting
現地(2013年12月)撮影
Location
|