2014January
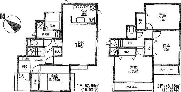
49,800,000 yen, 4LDK, 96.87 sq m
New Homes » Kanto » Kanagawa Prefecture » Yokohama Midori-ku

| | Yokohama-shi, Kanagawa-ku, green 神奈川県横浜市緑区 |
| Denentoshi Tokyu "Nagatsuta" walk 6 minutes 東急田園都市線「長津田」歩6分 |
Price 価格 | | 49,800,000 yen 4980万円 | Floor plan 間取り | | 4LDK 4LDK | Units sold 販売戸数 | | 1 units 1戸 | Land area 土地面積 | | 130.38 sq m (measured) 130.38m2(実測) | Building area 建物面積 | | 96.87 sq m (measured) 96.87m2(実測) | Driveway burden-road 私道負担・道路 | | Nothing, Southwest 4.5m width 無、南西4.5m幅 | Completion date 完成時期(築年月) | | January 2014 2014年1月 | Address 住所 | | Yokohama-shi, Kanagawa-ku, green Nagatsuta 2 神奈川県横浜市緑区長津田2 | Traffic 交通 | | Denentoshi Tokyu "Nagatsuta" walk 6 minutes 東急田園都市線「長津田」歩6分
| Related links 関連リンク | | [Related Sites of this company] 【この会社の関連サイト】 | Contact お問い合せ先 | | TEL: 0800-603-2855 [Toll free] mobile phone ・ Also available from PHS Caller ID is not notified Please contact the "saw SUUMO (Sumo)" If it does not lead, If the real estate company TEL:0800-603-2855【通話料無料】携帯電話・PHSからもご利用いただけます 発信者番号は通知されません 「SUUMO(スーモ)を見た」と問い合わせください つながらない方、不動産会社の方は
| Building coverage, floor area ratio 建ぺい率・容積率 | | Fifty percent ・ Hundred percent 50%・100% | Time residents 入居時期 | | Consultation 相談 | Land of the right form 土地の権利形態 | | Ownership 所有権 | Structure and method of construction 構造・工法 | | Wooden 2-story 木造2階建 | Use district 用途地域 | | One low-rise 1種低層 | Overview and notices その他概要・特記事項 | | Building confirmation number: No. HPA-12-03415-1, Parking: underground garage 建築確認番号:第HPA-12-03415-1号、駐車場:地下車庫 | Company profile 会社概要 | | <Mediation> Minister of Land, Infrastructure and Transport (2) No. 006840 (Ltd.) City net Yokohama headquarters brokerage sales department Yubinbango220-0003 Kanagawa Prefecture, Nishi-ku, Yokohama-shi Kusu, Mie 14-5 <仲介>国土交通大臣(2)第006840号(株)シティネット横浜本社仲介営業部〒220-0003 神奈川県横浜市西区楠町14-5 |
Floor plan間取り図  49,800,000 yen, 4LDK, Land area 130.38 sq m , Building area 96.87 sq m
4980万円、4LDK、土地面積130.38m2、建物面積96.87m2
Location
|