New Homes » Kanto » Kanagawa Prefecture » Yokohama, Naka-ku
 
| | Yokohama City, Kanagawa Prefecture, Naka-ku, 神奈川県横浜市中区 |
| JR Negishi Line "Yamate" walk 2 minutes JR根岸線「山手」歩2分 |
| [Yamate] 2-story newly built single-family is we completed a 2-minute walk station! Guests preview at any time. 【山手】駅徒歩2分に2階建て新築戸建が完成いたしました!いつでもご内覧頂けます。 |
| ■ Distance of the station of women peace of mind! JR "Yamate" station flat 2 minutes. ■ Furniture of your choice also comfortably placed. Living spacious 18 Pledge! ■ You can also check the state of the child. Counter kitchen of peace of mind! ■ Storage is abundant nice floor plan. (Entrance ・ Corridor ・ toilet ・ Each Western-style one place) ■ Relaxing bath time at the TV with the bathroom! ■女性も安心の駅の距離!JR「山手」駅平坦2分。■お好みの家具もゆったり配置。リビング広々18帖!■お子様の様子も確認できます。安心のカウンターキッチン!■収納豊富な素敵な間取りです。(玄関・廊下・トイレ・各洋室1か所)■TV付の浴室でゆったりバスタイム! |
Features pickup 特徴ピックアップ | | Corresponding to the flat-35S / Year Available / LDK18 tatami mats or more / It is close to the city / System kitchen / Bathroom Dryer / All room storage / Flat to the station / A quiet residential area / Face-to-face kitchen / Toilet 2 places / Bathroom 1 tsubo or more / 2-story / South balcony / The window in the bathroom / Leafy residential area / All living room flooring / Dish washing dryer / All room 6 tatami mats or more / Water filter / Living stairs / City gas / Flat terrain / Floor heating フラット35Sに対応 /年内入居可 /LDK18畳以上 /市街地が近い /システムキッチン /浴室乾燥機 /全居室収納 /駅まで平坦 /閑静な住宅地 /対面式キッチン /トイレ2ヶ所 /浴室1坪以上 /2階建 /南面バルコニー /浴室に窓 /緑豊かな住宅地 /全居室フローリング /食器洗乾燥機 /全居室6畳以上 /浄水器 /リビング階段 /都市ガス /平坦地 /床暖房 | Event information イベント情報 | | Local guide Board (please make a reservation beforehand) schedule / Now open 現地案内会(事前に必ず予約してください)日程/公開中 | Property name 物件名 | | [Yamate] Station 2-minute walk! 2-story newly built single-family. Please enjoy the near the convenience of the station. 【山手】駅徒歩2分!2階建て新築戸建。駅近の利便性をご堪能ください。 | Price 価格 | | 54,800,000 yen 5480万円 | Floor plan 間取り | | 4LDK 4LDK | Units sold 販売戸数 | | 1 units 1戸 | Total units 総戸数 | | 1 units 1戸 | Land area 土地面積 | | 93.96 sq m (28.42 tsubo) (measured) 93.96m2(28.42坪)(実測) | Building area 建物面積 | | 133.48 sq m (40.37 tsubo) (measured), Of underground garage 34.12 sq m 133.48m2(40.37坪)(実測)、うち地下車庫34.12m2 | Driveway burden-road 私道負担・道路 | | Nothing, North 5.5m width 無、北5.5m幅 | Completion date 完成時期(築年月) | | November 2013 2013年11月 | Address 住所 | | Kanagawa Prefecture medium Yokohama District Yaguchidai 神奈川県横浜市中区矢口台 | Traffic 交通 | | JR Negishi Line "Yamate" walk 2 minutes JR Negishi Line "Negishi" walk 25 minutes Minato Mirai Line "Motomachi ・ Chinatown "walk 25 minutes JR根岸線「山手」歩2分 JR根岸線「根岸」歩25分 みなとみらい線「元町・中華街」歩25分
| Related links 関連リンク | | [Related Sites of this company] 【この会社の関連サイト】 | Person in charge 担当者より | | Person in charge of real-estate and building 鍛代 Yoshinori Age: 30 Daigyokai experience: The daddy of 10 years and three pups. We offer a friendly home for children and mother! Shonan area, Kamiooka area, Experienced Yokohama east exit branch sales of Kohoku NT area is 4 store eyes. Yokohama ・ Shonan ・ Kawasaki entire area of the property Please leave me! 担当者宅建鍛代 義則年齢:30代業界経験:10年3児のパパです。お子様とお母様に優しい家をご提案いたします!湘南エリア、上大岡エリア、港北NTエリアの営業を経験し横浜東口支店は4店舗目になります。横浜・湘南・川崎全域の物件は私にお任せ下さい! | Contact お問い合せ先 | | TEL: 0800-603-1701 [Toll free] mobile phone ・ Also available from PHS Caller ID is not notified Please contact the "saw SUUMO (Sumo)" If it does not lead, If the real estate company TEL:0800-603-1701【通話料無料】携帯電話・PHSからもご利用いただけます 発信者番号は通知されません 「SUUMO(スーモ)を見た」と問い合わせください つながらない方、不動産会社の方は
| Building coverage, floor area ratio 建ぺい率・容積率 | | 60% ・ 200% 60%・200% | Time residents 入居時期 | | Consultation 相談 | Land of the right form 土地の権利形態 | | Ownership 所有権 | Structure and method of construction 構造・工法 | | Wooden 2-story 木造2階建 | Use district 用途地域 | | One middle and high 1種中高 | Overview and notices その他概要・特記事項 | | Contact: 鍛代 Yoshinori, Facilities: Public Water Supply, This sewage, City gas, Parking: underground garage 担当者:鍛代 義則、設備:公営水道、本下水、都市ガス、駐車場:地下車庫 | Company profile 会社概要 | | <Mediation> Minister of Land, Infrastructure and Transport (3) The 006,130 No. good properties list list (Ltd.) Yokohama east exit branch Yubinbango220-0011 Yokohama City, Kanagawa Prefecture, Nishi-ku Takashima 2-14-10 <仲介>国土交通大臣(3)第006130号いい物件リスト リスト(株)横浜東口支店〒220-0011 神奈川県横浜市西区高島2-14-10 |
Local appearance photo現地外観写真  Building imposing completed! At any time offers preview. Contact 045-444-1000
建物堂々完成!いつでもご内見頂けます。お問い合わせは045-444-1000
Livingリビング  Living room comfortably can place the furniture is located 18 Pledge! Commitment to openness and the lighting is!
ゆったり家具を配置できるリビングは18帖ございます!開放感と採光にこだわりが!
Kitchenキッチン  Easy also wife of housework, Dishwasher with a kitchen. Your state of children is also counter the kitchen you can see!
奥様の家事も楽々、食器洗浄器付きのキッチン。お子様のご様子も確認できるカウンターキッチンです!
Local photos, including front road前面道路含む現地写真  It is with the underground garage to protect the precious car from wind and rain!
雨風から大切なお車を守る地下車庫付きです!
Kitchenキッチン  Face-to-face kitchen can feel your family close! You can dishes while watching the children play in the living room!
ご家族を近くに感じられる対面キッチン!リビングで遊ぶお子様を見守りながらお料理が出来ます!
Bathroom浴室  Relaxing bath time at the TV with the bathroom! It is always comfortable with the bathroom dryer.
TV付の浴室でゆったりバスタイム!浴室乾燥機付きでいつも快適です。
Local appearance photo現地外観写真  It is a neat simple exterior design!
すっきりシンプルな外観デザインです!
Entrance玄関  Also neat clutter tend entrance! Plenty entrance with storage.
散らかりがちな玄関もすっきり!たっぷり収納付の玄関です。
Receipt収納  Refreshing even toilet paper stock up! Is a toilet with a large storage.
買い置きのトイレットペーパーもすっきり!大型収納付のトイレです。
Wash basin, toilet洗面台・洗面所  Plenty vanity triple mirror type provided with a housing.
たっぷり収納を設けた三面鏡タイプの洗面化粧台です。
Supermarketスーパー  Convenient living environment of 200m shopping facilities enhancement to the top Yamate shop! Convenient super top to every day of shopping.
トップ山手店まで200m お買い物施設が充実の便利な住環境!毎日のお買い物に便利なスーパートップ。
Toiletトイレ  Toilet is with a bidet. Barrier-free type with a handrail. Stock up on toilet paper clean even with storage!
ウォッシュレット付のトイレです。手すり付のバリアフリータイプ。買置きのトイレットペーパーも収納付ですっきり!
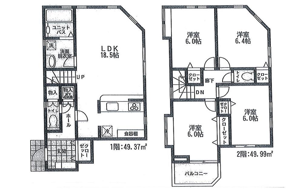
Floor plan間取り図  54,800,000 yen, 4LDK, Land area 93.96 sq m , Building area 133.48 sq m each room 6 quires more! Adopted the easy-to-use good 4LDK plan. Spacious living room is located 18 Pledge!
5480万円、4LDK、土地面積93.96m2、建物面積133.48m2 各居室6帖以上!使い勝手の良い4LDKプランを採用。広々リビングは18帖ございます!
Location
|