New Homes » Kanto » Kanagawa Prefecture » Nishi-ku, Yokohama-shi
 
| | Kanagawa Prefecture, Nishi-ku, Yokohama-shi 神奈川県横浜市西区 |
| Keikyu main line "Koganecho" walk 15 minutes 京急本線「黄金町」歩15分 |
| 2 station 3 lines or more available in prime location. Flat 35S corresponding housing. And a variety of equipment, It has become the specification content of enhancement. 2駅3路線以上利用可能の好立地。フラット35S対応住宅。多彩な設備と、充実の仕様内容となっております。 |
| Over recommended point-to ● 2 station 3 lines or more available ● good per sun ● car space two ・ In the case of our alliance mortgage available, The entire period up to -1.7 preferential treatment ・ The application, Conditions, there is a review ・ Weekdays, Saturday and Sunday, will guide you regardless of holiday ・ It can come to pick you up in the car ーおすすめポイントー●2駅3路線以上利用可能●陽当たり良好●カースペース2台・弊社の提携住宅ローン利用の場合、全期間最大-1.7優遇・適用には、条件,審査がございます・平日,土日,祝日問わずご案内致します・車でお迎えに伺います |
Features pickup 特徴ピックアップ | | Corresponding to the flat-35S / Seismic fit / Year Available / Parking two Allowed / 2 along the line more accessible / LDK20 tatami mats or more / Super close / Facing south / System kitchen / Bathroom Dryer / Yang per good / All room storage / Corner lot / Washbasin with shower / Face-to-face kitchen / Security enhancement / Barrier-free / Toilet 2 places / Natural materials / 2-story / South balcony / Otobasu / Warm water washing toilet seat / Underfloor Storage / TV monitor interphone / High-function toilet / Ventilation good / All living room flooring / Walk-in closet / City gas / Storeroom / Maintained sidewalk フラット35Sに対応 /耐震適合 /年内入居可 /駐車2台可 /2沿線以上利用可 /LDK20畳以上 /スーパーが近い /南向き /システムキッチン /浴室乾燥機 /陽当り良好 /全居室収納 /角地 /シャワー付洗面台 /対面式キッチン /セキュリティ充実 /バリアフリー /トイレ2ヶ所 /自然素材 /2階建 /南面バルコニー /オートバス /温水洗浄便座 /床下収納 /TVモニタ付インターホン /高機能トイレ /通風良好 /全居室フローリング /ウォークインクロゼット /都市ガス /納戸 /整備された歩道 | Price 価格 | | 42,500,000 yen ~ 43,800,000 yen 4250万円 ~ 4380万円 | Floor plan 間取り | | 3LDK + S (storeroom) 3LDK+S(納戸) | Units sold 販売戸数 | | 3 units 3戸 | Total units 総戸数 | | 3 units 3戸 | Land area 土地面積 | | 109.02 sq m ~ 127.76 sq m 109.02m2 ~ 127.76m2 | Building area 建物面積 | | 106.81 sq m ~ 107.44 sq m 106.81m2 ~ 107.44m2 | Completion date 完成時期(築年月) | | 2013 in early October 2013年10月上旬 | Address 住所 | | Kanagawa Prefecture, Nishi-ku, Yokohama-shi Sakainotani 37-1 神奈川県横浜市西区境之谷37-1 | Traffic 交通 | | Keikyu main line "Koganecho" walk 15 minutes Sagami Railway Main Line "Nishiyokohama" walk 20 minutes JR Keihin Tohoku Line "Yokohama" 15 minutes Ayumi Kuboyama 4 minutes by bus 京急本線「黄金町」歩15分 相鉄本線「西横浜」歩20分 JR京浜東北線「横浜」バス15分久保山歩4分
| Related links 関連リンク | | [Related Sites of this company] 【この会社の関連サイト】 | Person in charge 担当者より | | Rep Kimura 担当者木村 | Contact お問い合せ先 | | TEL: 0800-603-7122 [Toll free] mobile phone ・ Also available from PHS Caller ID is not notified Please contact the "saw SUUMO (Sumo)" If it does not lead, If the real estate company TEL:0800-603-7122【通話料無料】携帯電話・PHSからもご利用いただけます 発信者番号は通知されません 「SUUMO(スーモ)を見た」と問い合わせください つながらない方、不動産会社の方は
| Time residents 入居時期 | | Consultation 相談 | Land of the right form 土地の権利形態 | | Ownership 所有権 | Use district 用途地域 | | Two mid-high 2種中高 | Overview and notices その他概要・特記事項 | | Contact: Kimura, Building confirmation number: 107680 担当者:木村、建築確認番号:107680 | Company profile 会社概要 | | <Mediation> Minister of Land, Infrastructure and Transport (2) the first 007,684 No. + HOUSE Yokohama Office (Ltd.) propoxycarbonyl life Yubinbango230-0062 Kanagawa Prefecture Tsurumi-ku, Yokohama City Toyooka-cho, 8-24 first floor <仲介>国土交通大臣(2)第007684号+HOUSE横浜Office(株)プロポライフ〒230-0062 神奈川県横浜市鶴見区豊岡町8-24 1階 |
 Same specifications photos (living)
同仕様写真(リビング)
 Same specifications photo (bathroom)
同仕様写真(浴室)
 Same specifications photo (kitchen)
同仕様写真(キッチン)
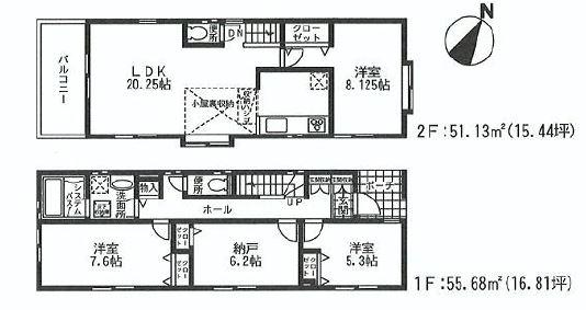
Floor plan間取り図  (1 Building), Price 43,500,000 yen, 3LDK+S, Land area 127.76 sq m , Building area 106.81 sq m
(1号棟)、価格4350万円、3LDK+S、土地面積127.76m2、建物面積106.81m2
 Same specifications photos (appearance)
同仕様写真(外観)
 Other
その他
 (Building 2), Price 43,800,000 yen, 3LDK+S, Land area 120.59 sq m , Building area 106.81 sq m
(2号棟)、価格4380万円、3LDK+S、土地面積120.59m2、建物面積106.81m2
Location
|