2013December
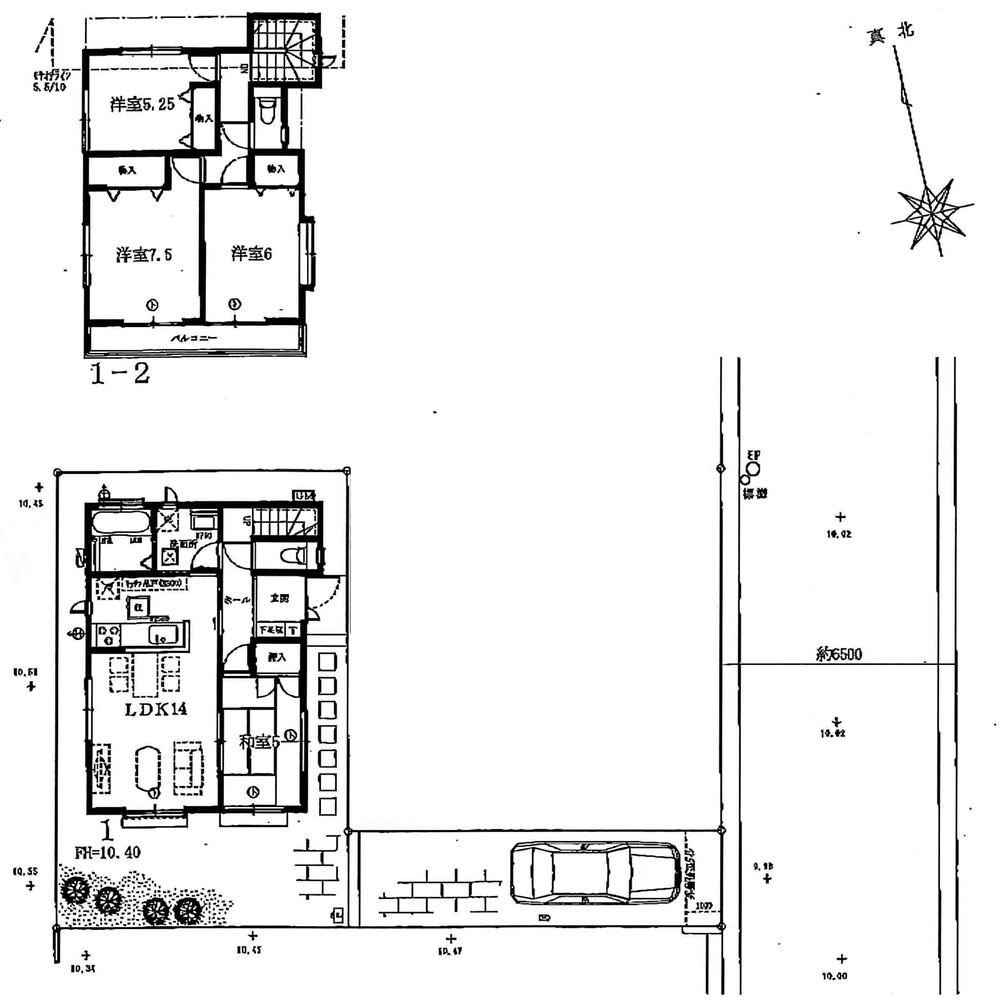
35,800,000 yen, 4LDK, 93.57 sq m
New Homes » Kanto » Kanagawa Prefecture » Yokohama Seya-ku

| | Yokohama-shi, Kanagawa-ku, Seya 神奈川県横浜市瀬谷区 |
| Sagami Railway Main Line "Seya" walk 11 minutes 相鉄本線「瀬谷」歩11分 |
Features pickup 特徴ピックアップ | | Measures to conserve energy / Corresponding to the flat-35S / Pre-ground survey / Energy-saving water heaters / Facing south / System kitchen / Bathroom Dryer / A quiet residential area / Or more before road 6m / Washbasin with shower / Face-to-face kitchen / Wide balcony / 3 face lighting / Barrier-free / Toilet 2 places / Bathroom 1 tsubo or more / 2-story / South balcony / Double-glazing / Otobasu / Warm water washing toilet seat / Underfloor Storage / The window in the bathroom / TV monitor interphone / Ventilation good / Water filter / Flat terrain 省エネルギー対策 /フラット35Sに対応 /地盤調査済 /省エネ給湯器 /南向き /システムキッチン /浴室乾燥機 /閑静な住宅地 /前道6m以上 /シャワー付洗面台 /対面式キッチン /ワイドバルコニー /3面採光 /バリアフリー /トイレ2ヶ所 /浴室1坪以上 /2階建 /南面バルコニー /複層ガラス /オートバス /温水洗浄便座 /床下収納 /浴室に窓 /TVモニタ付インターホン /通風良好 /浄水器 /平坦地 | Price 価格 | | 35,800,000 yen 3580万円 | Floor plan 間取り | | 4LDK 4LDK | Units sold 販売戸数 | | 1 units 1戸 | Land area 土地面積 | | 125.01 sq m (37.81 tsubo) (measured) 125.01m2(37.81坪)(実測) | Building area 建物面積 | | 93.57 sq m (28.30 tsubo) (measured) 93.57m2(28.30坪)(実測) | Driveway burden-road 私道負担・道路 | | Nothing, East 6.5m width 無、東6.5m幅 | Completion date 完成時期(築年月) | | December 2013 2013年12月 | Address 住所 | | Yokohama-shi, Kanagawa-ku, Seya Seya 6 神奈川県横浜市瀬谷区瀬谷6 | Traffic 交通 | | Sagami Railway Main Line "Seya" walk 11 minutes 相鉄本線「瀬谷」歩11分
| Contact お問い合せ先 | | TEL: 0800-603-8119 [Toll free] mobile phone ・ Also available from PHS Caller ID is not notified Please contact the "saw SUUMO (Sumo)" If it does not lead, If the real estate company TEL:0800-603-8119【通話料無料】携帯電話・PHSからもご利用いただけます 発信者番号は通知されません 「SUUMO(スーモ)を見た」と問い合わせください つながらない方、不動産会社の方は
| Building coverage, floor area ratio 建ぺい率・容積率 | | 40% ・ 80% 40%・80% | Time residents 入居時期 | | Three months after the contract 契約後3ヶ月 | Land of the right form 土地の権利形態 | | Ownership 所有権 | Structure and method of construction 構造・工法 | | Wooden 2-story (framing method) 木造2階建(軸組工法) | Use district 用途地域 | | One low-rise 1種低層 | Overview and notices その他概要・特記事項 | | Facilities: Public Water Supply, This sewage, City gas, Building confirmation number: HPA-13-05311 No., Parking: Garage 設備:公営水道、本下水、都市ガス、建築確認番号:HPA-13-05311号、駐車場:車庫 | Company profile 会社概要 | | <Mediation> Governor of Tokyo (2) No. 086940 (Ltd.) garden city housing group Yubinbango206-0823 Tokyo Inagi Hirao 3-4-4 second floor <仲介>東京都知事(2)第086940号(株)田園都市住宅グループ〒206-0823 東京都稲城市平尾3-4-4 2階 |
Floor plan間取り図  35,800,000 yen, 4LDK, Land area 125.01 sq m , Building area 93.57 sq m
3580万円、4LDK、土地面積125.01m2、建物面積93.57m2
Location
|