New Homes » Kanto » Kanagawa Prefecture » Totsuka-ku, Yokohama-shi
 
| | Kanagawa Prefecture, Totsuka-ku, Yokohama-shi 神奈川県横浜市戸塚区 |
| JR Yokosuka Line "Totsuka" walk 20 minutes JR横須賀線「戸塚」歩20分 |
| ■ Walk from Totsuka Station West 4 minutes ■ Totsuka ・ Izumi-ku residence looking for specialty stores ■ Mitsuba housing ■ Down payment $ 0. annual income Ten thousand yen 100% financing possible in more than. Expenses loan please consult. ■戸塚駅西口から歩いて4分■戸塚・泉区住い探し専門店■ミツバハウジング■頭金0円。年収 万円 以上で100%ローン可。諸費用ローン相談ください。 |
| Flat terrain, 2 along the line more accessible, Zenshitsuminami direction, 2 or more sides balcony, Yang per good, A quiet residential area, Facing south, Bathroom Dryer, Flat to the station, Barrier-free, Toilet 2 places, Bathroom 1 tsubo or more, South balcony, Double-glazing, Warm water washing toilet seat, The window in the bathroom, Ventilation good, All living room flooring, Three-story or more 平坦地、2沿線以上利用可、全室南向き、2面以上バルコニー、陽当り良好、閑静な住宅地、南向き、浴室乾燥機、駅まで平坦、バリアフリー、トイレ2ヶ所、浴室1坪以上、南面バルコニー、複層ガラス、温水洗浄便座、浴室に窓、通風良好、全居室フローリング、3階建以上 |
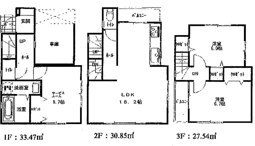
Features pickup 特徴ピックアップ | | Immediate Available / 2 along the line more accessible / Super close / Facing south / Bathroom Dryer / Yang per good / Flat to the station / A quiet residential area / LDK15 tatami mats or more / Barrier-free / Toilet 2 places / Bathroom 1 tsubo or more / 2 or more sides balcony / South balcony / Double-glazing / Zenshitsuminami direction / Warm water washing toilet seat / The window in the bathroom / Ventilation good / All living room flooring / Three-story or more / City gas / Flat terrain 即入居可 /2沿線以上利用可 /スーパーが近い /南向き /浴室乾燥機 /陽当り良好 /駅まで平坦 /閑静な住宅地 /LDK15畳以上 /バリアフリー /トイレ2ヶ所 /浴室1坪以上 /2面以上バルコニー /南面バルコニー /複層ガラス /全室南向き /温水洗浄便座 /浴室に窓 /通風良好 /全居室フローリング /3階建以上 /都市ガス /平坦地 | Price 価格 | | 27,800,000 yen 2780万円 | Floor plan 間取り | | 4LDK 4LDK | Units sold 販売戸数 | | 1 units 1戸 | Total units 総戸数 | | 5 units 5戸 | Land area 土地面積 | | 53.08 sq m (measured) 53.08m2(実測) | Building area 建物面積 | | 91.86 sq m (measured), Among the first floor garage 9.24 sq m 91.86m2(実測)、うち1階車庫9.24m2 | Driveway burden-road 私道負担・道路 | | Nothing, North 4m width 無、北4m幅 | Completion date 完成時期(築年月) | | April 2013 2013年4月 | Address 住所 | | Kanagawa Prefecture, Totsuka-ku, Yokohama-shi Maioka cho 神奈川県横浜市戸塚区舞岡町 | Traffic 交通 | | JR Yokosuka Line "Totsuka" walk 20 minutes Blue Line "Maioka" walk 19 minutes Blue Line "landing" walk 42 minutes JR横須賀線「戸塚」歩20分 ブルーライン「舞岡」歩19分 ブルーライン「踊場」歩42分
| Related links 関連リンク | | [Related Sites of this company] 【この会社の関連サイト】 | Person in charge 担当者より | | Rep Hasegawa Chu History Age: 30 Daigyokai Experience: 14 years Totsuka ・ Buying and selling of Izumi-ku area ・ That rental Please leave! ! 担当者長谷川 宙史年齢:30代業界経験:14年戸塚区・泉区エリアの売買・賃貸の事はお任せ下さい!! | Contact お問い合せ先 | | TEL: 0800-600-1853 [Toll free] mobile phone ・ Also available from PHS Caller ID is not notified Please contact the "saw SUUMO (Sumo)" If it does not lead, If the real estate company TEL:0800-600-1853【通話料無料】携帯電話・PHSからもご利用いただけます 発信者番号は通知されません 「SUUMO(スーモ)を見た」と問い合わせください つながらない方、不動産会社の方は
| Building coverage, floor area ratio 建ぺい率・容積率 | | 60% ・ 160% 60%・160% | Time residents 入居時期 | | Immediate available 即入居可 | Land of the right form 土地の権利形態 | | Ownership 所有権 | Structure and method of construction 構造・工法 | | Wooden three-story 木造3階建 | Use district 用途地域 | | One dwelling 1種住居 | Overview and notices その他概要・特記事項 | | Contact: Hasegawa Chu History, Facilities: Public Water Supply, This sewage, City gas, Building confirmation number: 04566, Parking: Car Port 担当者:長谷川 宙史、設備:公営水道、本下水、都市ガス、建築確認番号:04566、駐車場:カーポート | Company profile 会社概要 | | <Mediation> Kanagawa Governor (2) the first 026,917 No. Mitsuba housing (Ltd.) Yubinbango244-0003 Kanagawa Prefecture, Totsuka-ku, Yokohama-shi Totsuka-cho, 120 <仲介>神奈川県知事(2)第026917号ミツバハウジング(株)〒244-0003 神奈川県横浜市戸塚区戸塚町120 |
Local appearance photo現地外観写真  Local (June 2013) Shooting
現地(2013年6月)撮影
Local photos, including front road前面道路含む現地写真  Local (June 2013) Shooting
現地(2013年6月)撮影
Floor plan間取り図  27,800,000 yen, 4LDK, Land area 53.08 sq m , Building area 91.86 sq m
2780万円、4LDK、土地面積53.08m2、建物面積91.86m2
Livingリビング  Local (June 2013) Shooting
現地(2013年6月)撮影
Bathroom浴室  Local (June 2013) Shooting
現地(2013年6月)撮影
Kitchenキッチン  Local (June 2013) Shooting
現地(2013年6月)撮影
Wash basin, toilet洗面台・洗面所  Local (June 2013) Shooting
現地(2013年6月)撮影
Toiletトイレ  Local (June 2013) Shooting
現地(2013年6月)撮影
Parking lot駐車場  Local (07 May 2013) Shooting
現地(2013年07月)撮影
Presentプレゼント  Let's find the house with a cup of delicious coffee in a calm-store feel the warmth of the wood. We Totsuka-ku, Yokohama-shi ・ We are allowed to introduce the real estate information specializes in Izumi-ku,. Staff who knows the local will be happy to find together the house of your ideal.
木のぬくもりを感じさせる落ち着いた店内で美味しいコーヒーを飲みながら住まい探しをしましょう。弊社は横浜市戸塚区・泉区を専門に不動産情報をご紹介させて頂いております。地元を知り尽くしたスタッフがお客様の理想の住まいを一緒に探させて頂きます。
You will receive this brochureこんなパンフレットが届きます  This brochure will receive! JOIN NOW document request!
こちらのパンフレットが届きます!今すぐ資料請求しよう!
Location
|