New Homes » Kanto » Kanagawa Prefecture » Totsuka-ku, Yokohama-shi
 
| | Kanagawa Prefecture, Totsuka-ku, Yokohama-shi 神奈川県横浜市戸塚区 |
| JR Yokosuka Line "Totsuka" walk 7 minutes JR横須賀線「戸塚」歩7分 |
| It is a large subdivision of all 11 buildings of Totsuka Station 7 minutes walk from the lively in redevelopment. But is a station 7-minute walk and good access, Living environment is a quiet residential area. The LDK floor heating, Cupboard storage standard equipment in the kitchen 再開発で活気ある戸塚駅徒歩7分の全11棟の大型分譲地です。駅徒歩7分と好アクセスですが、住環境は閑静な住宅街です。LDKには床暖房、キッチンにはカップボード収納標準装備 |
| ※ 2013 December 25 ~ Heisei will carry out the rest until January 2, 2014. New Year will be open from 3 days. On the reservation, Preview is also available. Per yang, Atmosphere of the interior, Specifications, please check with your own eyes, including. Since the other company's do not have to introduce yet, We will be handling our only. Because there is a financial institution of the alliance, It does not matter from the consultation of the mortgage. Please feel free to contact us. ※平成25年12月25日 ~ 平成26年1月2日までお休みさせて頂きます。新年は3日より営業致します。ご予約の上、内覧も可能です。陽当たり、内装の雰囲気、仕様も含めご自分の目でご確認ください。他社さんにはまだご紹介しておりませんので、弊社のみの取り扱いになります。提携の金融機関がございますので、住宅ローンのご相談からでもかまいません。お気軽にご相談ください。 |
Features pickup 特徴ピックアップ | | Pre-ground survey / Immediate Available / 2 along the line more accessible / LDK18 tatami mats or more / It is close to the city / Facing south / System kitchen / Bathroom Dryer / Yang per good / All room storage / A quiet residential area / Shaping land / Washbasin with shower / Face-to-face kitchen / Toilet 2 places / Bathroom 1 tsubo or more / South balcony / Double-glazing / Warm water washing toilet seat / Underfloor Storage / The window in the bathroom / TV monitor interphone / Urban neighborhood / Ventilation good / All living room flooring / Southwestward / Water filter / Three-story or more / City gas / Flat terrain / Floor heating / Development subdivision in 地盤調査済 /即入居可 /2沿線以上利用可 /LDK18畳以上 /市街地が近い /南向き /システムキッチン /浴室乾燥機 /陽当り良好 /全居室収納 /閑静な住宅地 /整形地 /シャワー付洗面台 /対面式キッチン /トイレ2ヶ所 /浴室1坪以上 /南面バルコニー /複層ガラス /温水洗浄便座 /床下収納 /浴室に窓 /TVモニタ付インターホン /都市近郊 /通風良好 /全居室フローリング /南西向き /浄水器 /3階建以上 /都市ガス /平坦地 /床暖房 /開発分譲地内 | Event information イベント情報 | | Local guide Board (Please be sure to ask in advance) schedule / Every Saturday, Sunday and public holidays ※ 2013 December 25 ~ Heisei will carry out the rest until January 2, 2014. New Year will be open from 3 days. 現地案内会(事前に必ずお問い合わせください)日程/毎週土日祝※平成25年12月25日 ~ 平成26年1月2日までお休みさせて頂きます。新年は3日より営業致します。 | Property name 物件名 | | Art House select Totsuka newly built single-family アートハウスセレクト戸塚新築戸建 | Price 価格 | | 38,500,000 yen ~ 41,300,000 yen 3850万円 ~ 4130万円 | Floor plan 間取り | | 4LDK 4LDK | Units sold 販売戸数 | | 3 units 3戸 | Total units 総戸数 | | 4 units 4戸 | Land area 土地面積 | | 66 sq m ~ 75.9 sq m (registration) 66m2 ~ 75.9m2(登記) | Building area 建物面積 | | 99.77 sq m ~ 113.86 sq m (registration) 99.77m2 ~ 113.86m2(登記) | Completion date 完成時期(築年月) | | 2013 late December 2013年12月下旬 | Address 住所 | | Kanagawa Prefecture, Totsuka-ku, Yokohama-shi Yabe-cho, 690 神奈川県横浜市戸塚区矢部町690 | Traffic 交通 | | JR Yokosuka Line "Totsuka" walk 7 minutes Sagami Railway Izumino Line "Yayoidai" 15 minutes Totsuka Station East walk 7 minutes by bus JR Tokaido Line "Ofuna" bus 16 minutes Totsuka Station East walk 7 minutes JR横須賀線「戸塚」歩7分 相鉄いずみ野線「弥生台」バス15分戸塚駅東口歩7分 JR東海道本線「大船」バス16分戸塚駅東口歩7分
| Related links 関連リンク | | [Related Sites of this company] 【この会社の関連サイト】 | Person in charge 担当者より | | Rep Ishikura Yuta Age: 30s 担当者石倉 裕太年齢:30代 | Contact お問い合せ先 | | TEL: 0800-603-6868 [Toll free] mobile phone ・ Also available from PHS Caller ID is not notified Please contact the "saw SUUMO (Sumo)" If it does not lead, If the real estate company TEL:0800-603-6868【通話料無料】携帯電話・PHSからもご利用いただけます 発信者番号は通知されません 「SUUMO(スーモ)を見た」と問い合わせください つながらない方、不動産会社の方は
| Sale schedule 販売スケジュール | | ※ 2013 December 25 ~ Heisei will carry out the rest until January 2, 2014. New Year will be open from 3 days. It is in pre-release! ! Interior finish by Building, Preview available! Please feel free to visit! ※平成25年12月25日 ~ 平成26年1月2日までお休みさせて頂きます。新年は3日より営業致します。先行発売中です!!号棟によっては内装が仕上がり、内見可能です!お気軽にご覧ください! | Building coverage, floor area ratio 建ぺい率・容積率 | | Kenpei rate: 60% ・ 150% 建ペい率:60%・150% | Time residents 入居時期 | | Mid-January 2014 2014年1月中旬予定 | Land of the right form 土地の権利形態 | | Ownership 所有権 | Structure and method of construction 構造・工法 | | Wooden three-story 木造3階建 | Use district 用途地域 | | Two mid-high 2種中高 | Land category 地目 | | Residential land 宅地 | Overview and notices その他概要・特記事項 | | Contact: Ishikura Yuta, Building confirmation number: first H25SBC over Make 01262Y No. 担当者:石倉 裕太、建築確認番号:第H25SBCー確01262Y号 | Company profile 会社概要 | | <Mediation> Kanagawa Governor (2) the first 026,020 No. Art House Co., Ltd. Sales Division 1 Division Yubinbango222-0037 Yokohama-shi, Kanagawa-ku, Kohoku Okurayama 3-3-39 Art building first floor <仲介>神奈川県知事(2)第026020号アートハウス(株)営業部1課〒222-0037 神奈川県横浜市港北区大倉山3-3-39 アートビル1階 |
Kitchenキッチン  Popular face-to-face kitchen lighting is removable spotlight
人気の対面キッチン照明は取り外し可能のスポットライト
Local appearance photo現地外観写真  White and gray tones and, It is simple and modern design
白とグレーを基調とした、シンプルかつモダンなデザインです
Livingリビング  Living stairs large window of the balcony brings a sense of release and the lighting in the living room
リビング階段バルコニーの大きな窓はリビングに解放感と採光をもたらします
Floor plan間取り図  (Building 2), Price 41,300,000 yen, 4LDK, Land area 68.03 sq m , Building area 113.15 sq m
(2号棟)、価格4130万円、4LDK、土地面積68.03m2、建物面積113.15m2
Livingリビング  Chic brown tone to one side of the living room with accent! ! Produce a sense of luxury and depth! !
リビングの一面をアクセントでシックなブラウン調に!!高級感と奥行を演出!!
Bathroom浴室  Such bathroom hotels in landscape of mirrors and accent wall
横長の鏡とアクセント壁でホテルの様な浴室
Non-living roomリビング以外の居室  Likely to become a secret base of children Western-style
お子様の秘密基地になりそうな洋室
Entrance玄関  Entrance shoe box is simple and smart! A large capacity of up to ceiling!
玄関シューズボックスはスマートでシンプル!天井までの大容量で!
Receipt収納  Mirror adjustment cupboard hanging and cupboard have a feeling of luxury! !
カップボードと吊戸棚は高級感のある鏡面調!!
Other Equipmentその他設備  Kitchen is housed in the slide stocker plenty
キッチンはスライドストッカーで収納たっぷり
Station駅  Until Totu Cana Mall 560m
トツカーナモールまで560m
Floor plan間取り図  (3 Building), Price 38,500,000 yen, 4LDK, Land area 72.6 sq m , Building area 101.43 sq m
(3号棟)、価格3850万円、4LDK、土地面積72.6m2、建物面積101.43m2
Non-living roomリビング以外の居室  Large storage and large windows in the main bedroom!
主寝室には大きな窓と大きな収納!
Entrance玄関  Attire drifting entrance door of simple modern
シンプルモダンの装い漂う玄関扉
Station駅  Until Sakurasu 640m
サクラスまで640m
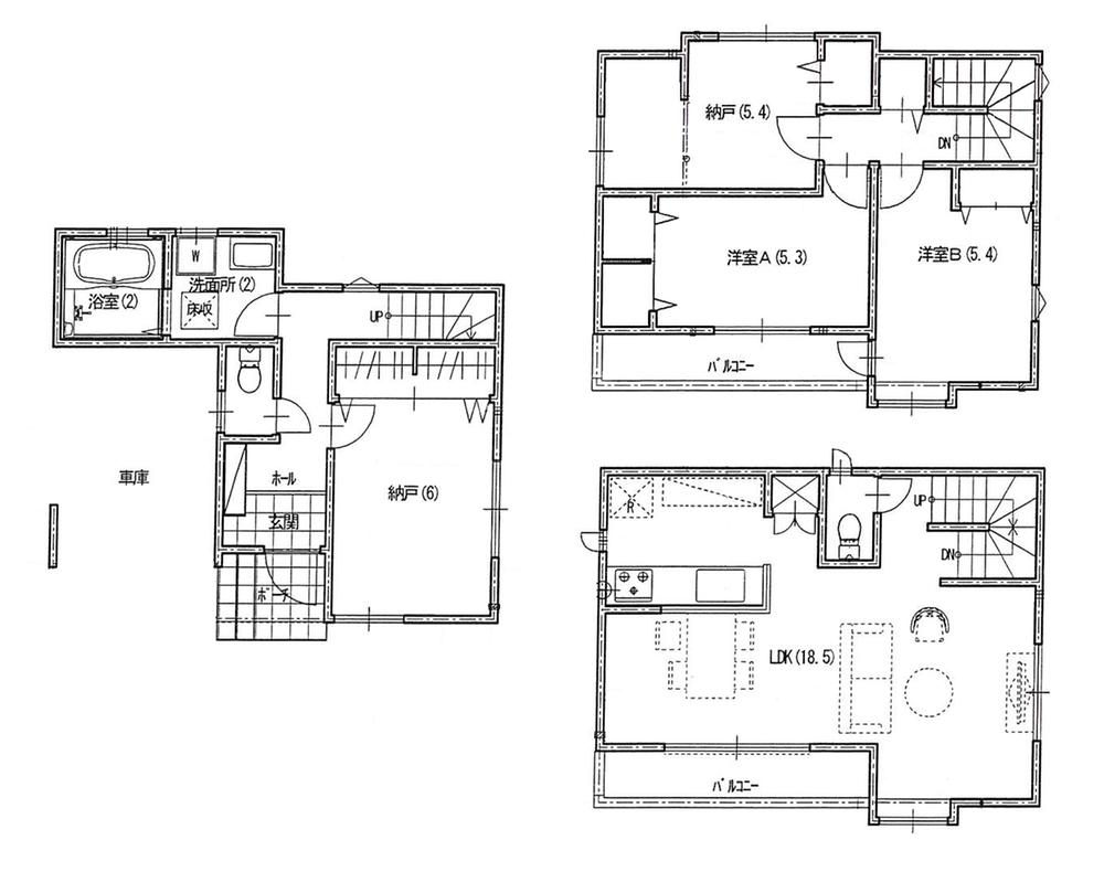
Floor plan間取り図  (4 Building), Price 39,300,000 yen, 4LDK, Land area 75.9 sq m , Building area 99.77 sq m
(4号棟)、価格3930万円、4LDK、土地面積75.9m2、建物面積99.77m2
Location
|