|
|
Kanagawa Prefecture, Totsuka-ku, Yokohama-shi
神奈川県横浜市戸塚区
|
|
Blue Line "Maioka" walk 18 minutes
ブルーライン「舞岡」歩18分
|
|
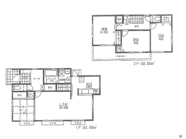
JR "Totsuka" subway BL "Maioka" within walking distance. It is clear the site of about 47 square meters. A face-to-face kitchen LDK 20 Pledge. Western-style 6 quires more, Easy-to-use floor plans with storage.
JR「戸塚」地下鉄BL「舞岡」徒歩圏内。約47坪のゆとりの敷地です。対面式キッチンのあるLDKは20帖。洋室6帖以上、収納付きで使いやすい間取りです。
|
|
System kitchen Bathroom Dryer Japanese-style room Shampoo dresser with 24-hour ventilation system Monitor with intercom Double-glazing Underfloor Storage
システムキッチン 浴室乾燥機 和室 シャンプドレッサー付き 24時間換気システム モニタ付きインターフォン 複層ガラス 床下収納
|
Features pickup 特徴ピックアップ | | 2 along the line more accessible / LDK20 tatami mats or more / System kitchen / Bathroom Dryer / Yang per good / All room storage / A quiet residential area / Japanese-style room / Washbasin with shower / Wide balcony / Toilet 2 places / Bathroom 1 tsubo or more / 2-story / South balcony / Double-glazing / Zenshitsuminami direction / Otobasu / Warm water washing toilet seat / Underfloor Storage / The window in the bathroom / TV monitor interphone / Leafy residential area / Flat terrain / terrace 2沿線以上利用可 /LDK20畳以上 /システムキッチン /浴室乾燥機 /陽当り良好 /全居室収納 /閑静な住宅地 /和室 /シャワー付洗面台 /ワイドバルコニー /トイレ2ヶ所 /浴室1坪以上 /2階建 /南面バルコニー /複層ガラス /全室南向き /オートバス /温水洗浄便座 /床下収納 /浴室に窓 /TVモニタ付インターホン /緑豊かな住宅地 /平坦地 /テラス |
Event information イベント情報 | | ・ With respect to this property, So we have prepared a large number of photos from various angles, If you contact us we will send you by e-mail. ・ And we will respond individually to the financial planner is consultation of the funds on housing purchase. Please contact us than do not hesitate to right link website consultation is also possible because of the e-mail. ・こちらの物件に関して、様々な角度からの写真を多数用意しておりますので、お問合せいただければメールにてお送りします。・ファイナンシャルプランナーが住宅購入に関する資金のご相談に個別に対応させて頂きます。メールでのご相談も可能ですのでお気軽に右記リンクホームページよりお問い合わせください。 |
Price 価格 | | 41,850,000 yen 4185万円 |
Floor plan 間取り | | 4LDK 4LDK |
Units sold 販売戸数 | | 1 units 1戸 |
Land area 土地面積 | | 157.67 sq m (measured) 157.67m2(実測) |
Building area 建物面積 | | 104.54 sq m (measured) 104.54m2(実測) |
Driveway burden-road 私道負担・道路 | | Share interests 6.3 sq m × (1 / 2), West 3.5m width 共有持分6.3m2×(1/2)、西3.5m幅 |
Completion date 完成時期(築年月) | | March 2014 2014年3月 |
Address 住所 | | Kanagawa Prefecture, Totsuka-ku, Yokohama-shi Yoshida-cho 神奈川県横浜市戸塚区吉田町 |
Traffic 交通 | | Blue Line "Maioka" walk 18 minutes JR Yokosuka Line "Totsuka" walk 19 minutes Shonan Shinjuku Line Koumi "Totsuka" walk 19 minutes ブルーライン「舞岡」歩18分 JR横須賀線「戸塚」歩19分 湘南新宿ライン高海「戸塚」歩19分
|
Related links 関連リンク | | [Related Sites of this company] 【この会社の関連サイト】 |
Person in charge 担当者より | | Rep FP Honda HiroshiTeru started this job, We the voice of warm "thank you" from our customers, This job is we have to realize that it is calling. I you, but the only passion is merit, We will propose to very hard! ! 担当者FP本田 裕輝この仕事を始めて、お客様からの温かい「ありがとう」の声を頂き、この職が天職だと実感しております。情熱だけが取り柄の私ですが、一所懸命にご提案させて頂きます!! |
Contact お問い合せ先 | | TEL: 0120-694790 [Toll free] Please contact the "saw SUUMO (Sumo)" TEL:0120-694790【通話料無料】「SUUMO(スーモ)を見た」と問い合わせください |
Building coverage, floor area ratio 建ぺい率・容積率 | | Fifty percent ・ 80% 50%・80% |
Time residents 入居時期 | | April 2014 schedule 2014年4月予定 |
Land of the right form 土地の権利形態 | | Ownership 所有権 |
Structure and method of construction 構造・工法 | | Wooden 2-story 木造2階建 |
Use district 用途地域 | | Urbanization control area 市街化調整区域 |
Other limitations その他制限事項 | | Residential land development construction regulation area, Shade limit Yes, Irregular land 宅地造成工事規制区域、日影制限有、不整形地 |
Overview and notices その他概要・特記事項 | | Contact: Honda HiroshiTeru, Facilities: Public Water Supply, This sewage, Building Permits reason: control area per building permit requirements, Building confirmation number: SBC- Make 02362Y No., Parking: car space 担当者:本田 裕輝、設備:公営水道、本下水、建築許可理由:調整区域につき建築許可要、建築確認番号:SBC-確02362Y号、駐車場:カースペース |
Company profile 会社概要 | | <Mediation> Kanagawa Governor (2) No. 026229 (the company), Kanagawa Prefecture Building Lots and Buildings Transaction Business Association (Corporation) metropolitan area real estate Fair Trade Council member FP housing counseling network (Ltd.) home town of Yokohama, Kanagawa Prefecture Yubinbango244-0801 Totsuka-ku, Yokohama-shi Shinano-machi 517-1 Park house south of the city 1F <仲介>神奈川県知事(2)第026229号(社)神奈川県宅地建物取引業協会会員 (公社)首都圏不動産公正取引協議会加盟FP住宅相談ネットワーク(株)ホームタウンよこはま〒244-0801 神奈川県横浜市戸塚区品濃町517-1 パークハウス南の街1F |