New Homes » Kanto » Kanagawa Prefecture » Tsurumi-ku, Yokohama City
 
| | Kanagawa Prefecture Tsurumi-ku, Yokohama City 神奈川県横浜市鶴見区 |
| Keikyu main line "Namamugi" walk 10 minutes 京急本線「生麦」歩10分 |
Features pickup 特徴ピックアップ | | Facing south / System kitchen / Yang per good / All room storage / Siemens south road / A quiet residential area / LDK15 tatami mats or more / Toilet 2 places / 2-story / Zenshitsuminami direction / Leafy residential area 南向き /システムキッチン /陽当り良好 /全居室収納 /南側道路面す /閑静な住宅地 /LDK15畳以上 /トイレ2ヶ所 /2階建 /全室南向き /緑豊かな住宅地 | Price 価格 | | 42,800,000 yen 4280万円 | Floor plan 間取り | | 4LDK 4LDK | Units sold 販売戸数 | | 1 units 1戸 | Land area 土地面積 | | 132.44 sq m (measured) 132.44m2(実測) | Building area 建物面積 | | 114.56 sq m (measured), Of Basement 19.96 sq m 114.56m2(実測)、うち地下室19.96m2 | Driveway burden-road 私道負担・道路 | | Nothing, South 4m width (contact the road width 4.6m) 無、南4m幅(接道幅4.6m) | Completion date 完成時期(築年月) | | January 2014 2014年1月 | Address 住所 | | Kanagawa Prefecture Tsurumi-ku, Yokohama City Kishitani 3 神奈川県横浜市鶴見区岸谷3 | Traffic 交通 | | Keikyu main line "Namamugi" walk 10 minutes Keikyu main line "Kagetsuen before" walk 13 minutes Keikyu main line "Keikyushinkoyasu" walk 26 minutes 京急本線「生麦」歩10分 京急本線「花月園前」歩13分 京急本線「京急新子安」歩26分
| Contact お問い合せ先 | | TEL: 0800-603-8131 [Toll free] mobile phone ・ Also available from PHS Caller ID is not notified Please contact the "saw SUUMO (Sumo)" If it does not lead, If the real estate company TEL:0800-603-8131【通話料無料】携帯電話・PHSからもご利用いただけます 発信者番号は通知されません 「SUUMO(スーモ)を見た」と問い合わせください つながらない方、不動産会社の方は
| Building coverage, floor area ratio 建ぺい率・容積率 | | 60% ・ 200% 60%・200% | Time residents 入居時期 | | January 2014 2014年1月 | Land of the right form 土地の権利形態 | | Ownership 所有権 | Structure and method of construction 構造・工法 | | Wooden 2-story 木造2階建 | Overview and notices その他概要・特記事項 | | Facilities: Public Water Supply, This sewage, City gas, Building confirmation number: 22397, Parking: Garage 設備:公営水道、本下水、都市ガス、建築確認番号:22397、駐車場:車庫 | Company profile 会社概要 | | <Mediation> Kanagawa Governor (2) No. 026055 (Ltd.) Bay Grand Yubinbango220-0011 Kanagawa Prefecture, Nishi-ku, Yokohama-shi Takashima 2-3-22 <仲介>神奈川県知事(2)第026055号(株)ベイグランド〒220-0011 神奈川県横浜市西区高島2-3-22 |
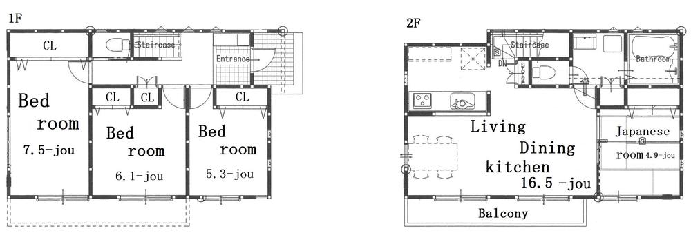
Floor plan間取り図  42,800,000 yen, 4LDK, Land area 132.44 sq m , Building area 114.56 sq m
4280万円、4LDK、土地面積132.44m2、建物面積114.56m2
Same specifications photos (appearance)同仕様写真(外観)  (Building 2) same specification
(2号棟)同仕様
Same specifications photos (living)同仕様写真(リビング)  (Building 2) same specification
(2号棟)同仕様
 (Building 2) same specification
(2号棟)同仕様
Same specifications photo (bathroom)同仕様写真(浴室)  (Two buildings) same specification
(2棟)同仕様
Location
|