New Homes » Kanto » Kanagawa Prefecture » Tsurumi-ku, Yokohama City
 
| | Kanagawa Prefecture Tsurumi-ku, Yokohama City 神奈川県横浜市鶴見区 |
| JR Keihin Tohoku Line "Tsurumi" walk 17 minutes JR京浜東北線「鶴見」歩17分 |
| Parking space two Allowed! Bright south-facing lighting LDK is, Conversation of the family is momentum in the face-to-face kitchen. 2-story 4LDK house with solar power system. 駐車スペース2台可!南向き採光の明るいLDKは、対面式キッチンで家族の会話が弾みます。太陽光発電システム付きの2階建て4LDK住宅。 |
| Parking two Allowed, 2 along the line more accessible, Corresponding to the flat-35S, 2-story, Solar power system, Year Available, LDK17 tatami mats or more, System kitchen, Face-to-face kitchen, All room storage, Toilet 2 places, South balcony, All rooms are two-sided lighting (B Building) 駐車2台可、2沿線以上利用可、フラット35Sに対応、2階建、太陽光発電システム、年内入居可、LDK17畳以上、システムキッチン、対面式キッチン、全居室収納、トイレ2ヶ所、南面バルコニー、全室2面採光(B号棟) |
Features pickup 特徴ピックアップ | | Corresponding to the flat-35S / Solar power system / Year Available / Parking two Allowed / 2 along the line more accessible / LDK18 tatami mats or more / System kitchen / All room storage / Face-to-face kitchen / Toilet 2 places / 2-story / South balcony / All rooms are two-sided lighting フラット35Sに対応 /太陽光発電システム /年内入居可 /駐車2台可 /2沿線以上利用可 /LDK18畳以上 /システムキッチン /全居室収納 /対面式キッチン /トイレ2ヶ所 /2階建 /南面バルコニー /全室2面採光 | Price 価格 | | 51,800,000 yen 5180万円 | Floor plan 間取り | | 4LDK 4LDK | Units sold 販売戸数 | | 1 units 1戸 | Total units 総戸数 | | 2 units 2戸 | Land area 土地面積 | | 124.14 sq m (measured) 124.14m2(実測) | Building area 建物面積 | | 98.95 sq m (measured) 98.95m2(実測) | Driveway burden-road 私道負担・道路 | | Road width: 4m 道路幅:4m | Completion date 完成時期(築年月) | | September 2013 2013年9月 | Address 住所 | | Kanagawa Prefecture Tsurumi-ku, Yokohama City Suwazaka 神奈川県横浜市鶴見区諏訪坂 | Traffic 交通 | | JR Keihin Tohoku Line "Tsurumi" walk 17 minutes Keikyū Main Line "Keikyu Tsurumi" walk 20 minutes Keikyu main line "Kagetsuen before" walk 27 minutes JR京浜東北線「鶴見」歩17分 京急本線「京急鶴見」歩20分 京急本線「花月園前」歩27分
| Related links 関連リンク | | [Related Sites of this company] 【この会社の関連サイト】 | Person in charge 担当者より | | Personnel Akita Daisuke Age: 30 Daigyokai Experience: 12 years with great anxiety, Great hope, With a little bit of courage, What ... please consult. According to your stride, Everywhere we will seriously is your relationship to. * Not for each property attaches responsible for each customer 担当者秋田大輔年齢:30代業界経験:12年大きな不安と、大きな希望、少しの勇気を持って、何なりとご相談下さい。お客様の歩幅に合わせて、どこまでも真剣にお付き合いさせて頂きます。 *物件毎ではなくお客様毎に担当がつきます | Contact お問い合せ先 | | TEL: 0800-603-1506 [Toll free] mobile phone ・ Also available from PHS Caller ID is not notified Please contact the "saw SUUMO (Sumo)" If it does not lead, If the real estate company TEL:0800-603-1506【通話料無料】携帯電話・PHSからもご利用いただけます 発信者番号は通知されません 「SUUMO(スーモ)を見た」と問い合わせください つながらない方、不動産会社の方は
| Building coverage, floor area ratio 建ぺい率・容積率 | | Kenpei rate: 50%, Volume ratio: 100% 建ペい率:50%、容積率:100% | Time residents 入居時期 | | Consultation 相談 | Land of the right form 土地の権利形態 | | Ownership 所有権 | Structure and method of construction 構造・工法 | | Wooden 2-story 木造2階建 | Use district 用途地域 | | One low-rise 1種低層 | Land category 地目 | | Residential land 宅地 | Other limitations その他制限事項 | | Height district 高度地区 | Overview and notices その他概要・特記事項 | | Contact: Daisuke Akita, Building confirmation number: the H24 building certification No. KBI08296 (A Building), The H24 building certification No. KBI08297 (A Building) 担当者:秋田大輔、建築確認番号:第H24確認建築KBI08296号(A号棟)、第H24確認建築KBI08297号(A号棟) | Company profile 会社概要 | | <Mediation> Minister of Land, Infrastructure and Transport (2) No. 007124 (Corporation) All Japan Real Estate Association (Corporation) metropolitan area real estate Fair Trade Council member (Ltd.) living life Kawasaki branch Yubinbango210-0012 Kawasaki City, Kanagawa Prefecture, Kawasaki-ku, Miyamae-cho, 2-3 living life Kawasaki building <仲介>国土交通大臣(2)第007124号(公社)全日本不動産協会会員 (公社)首都圏不動産公正取引協議会加盟(株)リビングライフ川崎支店〒210-0012 神奈川県川崎市川崎区宮前町2-3 リビングライフ川崎ビル |
Local appearance photo現地外観写真  Local appearance (A Building: 2013 November shooting)
現地外観(A号棟:平成25年11月撮影)
Livingリビング  Living (A Building: 2013 November shooting)
リビング(A号棟:平成25年11月撮影)
Kitchenキッチン  Face-to-face kitchen (A Building: 2013 November shooting)
対面式キッチン(A号棟:平成25年11月撮影)
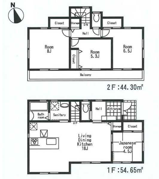
Floor plan間取り図  (A Building), Price 51,800,000 yen, 4LDK, Land area 124.14 sq m , Building area 98.95 sq m
(A号棟)、価格5180万円、4LDK、土地面積124.14m2、建物面積98.95m2
Local appearance photo現地外観写真  Local appearance (B Building: 2013 November shooting)
現地外観(B号棟:平成25年11月撮影)
Livingリビング  Living (B Building: 2013 November shooting)
リビング(B号棟:平成25年11月撮影)
Bathroom浴室  Bathroom (A Building: 2013 November shooting)
バスルーム(A号棟:平成25年11月撮影)
Kitchenキッチン  Face-to-face kitchen (B Building: 2013 November shooting)
対面式キッチン(B号棟:平成25年11月撮影)
Non-living roomリビング以外の居室  Bedroom (A Building: 2013 November shooting)
寝室(A号棟:平成25年11月撮影)
Primary school小学校  850m to Yokohama Municipal Toyooka Elementary School
横浜市立豊岡小学校まで850m
Bathroom浴室  Bathroom (B Building: 2013 November shooting)
バスルーム(B号棟:平成25年11月撮影)
Non-living roomリビング以外の居室  Bedroom (B Building: 2013 November shooting)
寝室(B号棟:平成25年11月撮影)
Junior high school中学校  1900m to Yokohama Municipal Tsurumi Junior High School
横浜市立鶴見中学校まで1900m
Kindergarten ・ Nursery幼稚園・保育園  600m until the young leaves kindergarten
若葉幼稚園まで600m
 Sueyoshi smiling until the nursery 350m
末吉にこにこ保育園まで350m
Hospital病院  Tokuda to the hospital 500m
徳田病院まで500m
Supermarketスーパー  Until Life Tsurumi shop 650m
ライフ鶴見店まで650m
Park公園  Until Mitsuikekoen 1100m
三ツ池公園まで1100m
Location
|