New Homes » Kanto » Kanagawa Prefecture » Tsurumi-ku, Yokohama City
 
| | Kanagawa Prefecture Tsurumi-ku, Yokohama City 神奈川県横浜市鶴見区 |
| JR Tsurumi line "Asano" walk 9 minutes JR鶴見線「浅野」歩9分 |
| ■ All rooms are bright design that carries the sunlight and 爽風 ■ Spacious "Irifune park" and a pool "Shiota park" neighborhood ■ Flat 35S (interest rate Plan B compatible) ■ Defect liability insurance "JIO my home insurance." ■陽光と爽風を運ぶ全室明るい設計■広々とした「入船公園」やプールのある「潮田公園」近隣■フラット35S(金利Bプラン対応)■瑕疵担保責任保険「JIOわが家の保険」 |
| «Equipment & Specifications» ● color monitor with intercom ● warm water washing toilet seat ● bathroom dryer ● pair glass ● shutter shutters (1F) ● water purifier ● dishwasher ● wash basin with hand shower ● stairs with handrails ● System Kitchen ≪設備&仕様≫●カラーモニター付インターフォン●温水洗浄便座●浴室乾燥機●ペアガラス●シャッター雨戸(1F)●浄水器●食器洗浄器●ハンドシャワー付洗面台●手すり付階段●システムキッチン |
Features pickup 特徴ピックアップ | | Corresponding to the flat-35S / System kitchen / Bathroom Dryer / All room storage / LDK15 tatami mats or more / Washbasin with shower / Toilet 2 places / Double-glazing / Warm water washing toilet seat / TV monitor interphone / Dish washing dryer / Water filter / Three-story or more / City gas フラット35Sに対応 /システムキッチン /浴室乾燥機 /全居室収納 /LDK15畳以上 /シャワー付洗面台 /トイレ2ヶ所 /複層ガラス /温水洗浄便座 /TVモニタ付インターホン /食器洗乾燥機 /浄水器 /3階建以上 /都市ガス | Price 価格 | | 34,800,000 yen ・ 37,800,000 yen 3480万円・3780万円 | Floor plan 間取り | | 4LDK 4LDK | Units sold 販売戸数 | | 3 units 3戸 | Total units 総戸数 | | 3 units 3戸 | Land area 土地面積 | | 61.45 sq m ~ 83.7 sq m (18.58 tsubo ~ 25.31 tsubo) (Registration) 61.45m2 ~ 83.7m2(18.58坪 ~ 25.31坪)(登記) | Building area 建物面積 | | 105.9 sq m ~ 112.58 sq m (32.03 tsubo ~ 34.05 tsubo) (Registration) 105.9m2 ~ 112.58m2(32.03坪 ~ 34.05坪)(登記) | Driveway burden-road 私道負担・道路 | | East about 5.90m public road 東側約5.90m公道 | Address 住所 | | Kanagawa Prefecture Tsurumi-ku, Yokohama City Hamacho 1 神奈川県横浜市鶴見区浜町1 | Traffic 交通 | | JR Tsurumi line "Asano" walk 9 minutes JR Tsurumi line "Bentenbashi" walk 14 minutes JR Tsurumi line "Anzen" walk 13 minutes JR鶴見線「浅野」歩9分 JR鶴見線「弁天橋」歩14分 JR鶴見線「安善」歩13分
| Related links 関連リンク | | [Related Sites of this company] 【この会社の関連サイト】 | Person in charge 担当者より | | Person in charge of real-estate and building Endo Power 担当者宅建遠藤 力 | Contact お問い合せ先 | | TEL: 0800-603-2880 [Toll free] mobile phone ・ Also available from PHS Caller ID is not notified Please contact the "saw SUUMO (Sumo)" If it does not lead, If the real estate company TEL:0800-603-2880【通話料無料】携帯電話・PHSからもご利用いただけます 発信者番号は通知されません 「SUUMO(スーモ)を見た」と問い合わせください つながらない方、不動産会社の方は
| Building coverage, floor area ratio 建ぺい率・容積率 | | Kenpei rate: 60%, Volume ratio: 200% 建ペい率:60%、容積率:200% | Time residents 入居時期 | | Consultation 相談 | Land of the right form 土地の権利形態 | | Ownership 所有権 | Structure and method of construction 構造・工法 | | Wooden three-story 木造3階建 | Use district 用途地域 | | One dwelling 1種住居 | Land category 地目 | | Residential land 宅地 | Other limitations その他制限事項 | | Height district, Quasi-fire zones, Shade limit Yes, Greening area 高度地区、準防火地域、日影制限有、緑化地域 | Overview and notices その他概要・特記事項 | | Contact: Endo Power, Building confirmation number: A Building ~ C Building: No. 13UDI1K Ken 00356 ~ The 13UDI1K Ken No. 00056 担当者:遠藤 力、建築確認番号:A号棟 ~ C号棟:第13UDI1K建00356号 ~ 第13UDI1K建00056号 | Company profile 会社概要 | | <Mediation> Governor of Kanagawa Prefecture (3) The 023,713 No. Century 21 (Ltd.) Get House Yubinbango223-0052 Yokohama-shi, Kanagawa-ku, Kohoku Tsunashimahigashi 1-6-3 TS Yoshihara building second floor <仲介>神奈川県知事(3)第023713号センチュリー21(株)ゲットハウス〒223-0052 神奈川県横浜市港北区綱島東1-6-3 TS吉原ビル2階 |
Rendering (appearance)完成予想図(外観)  All rooms are bright design that carries the sunlight and 爽風!
陽光と爽風を運ぶ全室明るい設計です!
Local appearance photo現地外観写真  Is the JR Tsurumi line "Asano" station walk 9 minutes!
JR鶴見線「浅野」駅徒歩9分です!
Local photos, including front road前面道路含む現地写真  There is a spacious near "Irifune park" and a pool "Shiota park"!
近くに広々とした「入船公園」やプールのある「潮田公園」があります!
Floor plan間取り図  (A Building), Price 37,800,000 yen, 4LDK, Land area 61.45 sq m , Building area 112.58 sq m
(A号棟)、価格3780万円、4LDK、土地面積61.45m2、建物面積112.58m2
Primary school小学校  107m up to elementary school in Yokohama - site ship
横浜市立入船小学校まで107m
Floor plan間取り図  (B Building), Price 34,800,000 yen, 4LDK, Land area 80.95 sq m , Building area 105.9 sq m
(B号棟)、価格3480万円、4LDK、土地面積80.95m2、建物面積105.9m2
Junior high school中学校  803m to Yokohama Municipal Kansei junior high school
横浜市立寛政中学校まで803m
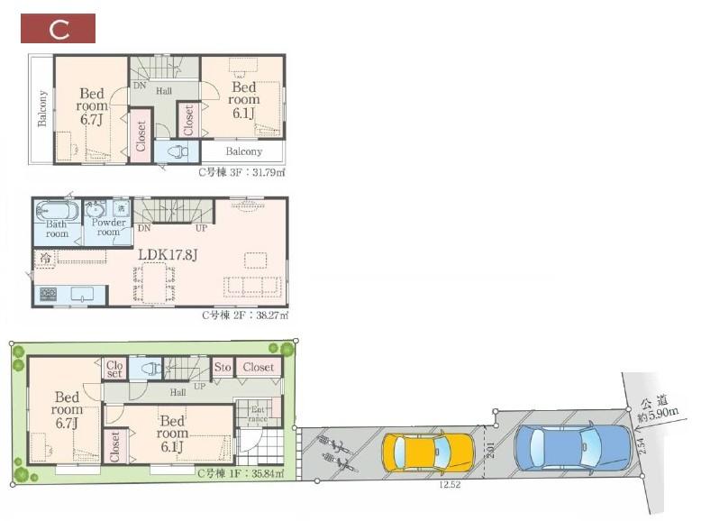
Floor plan間取り図  (C Building), Price 34,800,000 yen, 4LDK, Land area 83.7 sq m , Building area 105.9 sq m
(C号棟)、価格3480万円、4LDK、土地面積83.7m2、建物面積105.9m2
Park公園  Until Irifune park 614m
入船公園まで614m
Location
|