New Homes » Kanto » Kanagawa Prefecture » Tsurumi-ku, Yokohama City
 
| | Kanagawa Prefecture Tsurumi-ku, Yokohama City 神奈川県横浜市鶴見区 |
| Keikyu main line "Namamugi" walk 14 minutes 京急本線「生麦」歩14分 |
| Land area 70 sq m more than large newly built condominiums of! 20 Pledge than of LDK or loose 1 pyeong type bathroom, Abundant storage capacity, such as whole room storage and attic storage It is also attractive! 土地面積70m2超の大型新築分譲住宅!20帖超のLDKやゆったり1坪タイプ浴室、全居室収納や小屋裏収納など豊富な収納力も魅力ですね! |
| 2 along the line more accessible, Super close, City gas, LDK20 tatami mats or more, System kitchen, Bathroom Dryer, All room storage, Face-to-face kitchen, Toilet 2 places, Bathroom 1 tsubo or more, All living room flooring, Water filter, Three-story or more 2沿線以上利用可、スーパーが近い、都市ガス、LDK20畳以上、システムキッチン、浴室乾燥機、全居室収納、対面式キッチン、トイレ2ヶ所、浴室1坪以上、全居室フローリング、浄水器、3階建以上 |
Features pickup 特徴ピックアップ | | 2 along the line more accessible / LDK20 tatami mats or more / Super close / System kitchen / Bathroom Dryer / All room storage / Face-to-face kitchen / Toilet 2 places / Bathroom 1 tsubo or more / All living room flooring / Water filter / Three-story or more / City gas 2沿線以上利用可 /LDK20畳以上 /スーパーが近い /システムキッチン /浴室乾燥機 /全居室収納 /対面式キッチン /トイレ2ヶ所 /浴室1坪以上 /全居室フローリング /浄水器 /3階建以上 /都市ガス | Price 価格 | | 38,800,000 yen 3880万円 | Floor plan 間取り | | 2LDK + 2S (storeroom) ・ 3LDK + S (storeroom) 2LDK+2S(納戸)・3LDK+S(納戸) | Units sold 販売戸数 | | 2 units 2戸 | Total units 総戸数 | | 2 units 2戸 | Land area 土地面積 | | 72.02 sq m ・ 80.02 sq m 72.02m2・80.02m2 | Building area 建物面積 | | 104.04 sq m ・ 108.56 sq m 104.04m2・108.56m2 | Completion date 完成時期(築年月) | | February 2014 schedule 2014年2月予定 | Address 住所 | | Kanagawa Prefecture Tsurumi-ku, Yokohama City Higashiteraohigashidai 神奈川県横浜市鶴見区東寺尾東台 | Traffic 交通 | | Keikyu main line "Namamugi" walk 14 minutes Keikyu main line "Kagetsuen before" walking 15 minutes JR Keihin Tohoku Line "Tsurumi" a 20-minute rough Tatsufu 4 minutes by bus 京急本線「生麦」歩14分 京急本線「花月園前」歩15分 JR京浜東北線「鶴見」バス20分荒立歩4分
| Related links 関連リンク | | [Related Sites of this company] 【この会社の関連サイト】 | Person in charge 担当者より | | Personnel Ryota Nakamura Age: 20 Daigyokai experience: to come across to your satisfaction you live in the three-year customer, We will thoroughly dating. The joy of a new life in my home, Me and please feel together! * Not for each property attaches responsible for each customer 担当者中村亮太年齢:20代業界経験:3年お客様にご満足いただけるお住まいに出逢うまで、とことん付き合って参ります。マイホームでの新たな生活の喜びを、私と一緒に体感してください!*物件毎ではなくお客様毎に担当がつきます | Contact お問い合せ先 | | TEL: 0800-603-1506 [Toll free] mobile phone ・ Also available from PHS Caller ID is not notified Please contact the "saw SUUMO (Sumo)" If it does not lead, If the real estate company TEL:0800-603-1506【通話料無料】携帯電話・PHSからもご利用いただけます 発信者番号は通知されません 「SUUMO(スーモ)を見た」と問い合わせください つながらない方、不動産会社の方は
| Most price range 最多価格帯 | | 38 million yen (2 units) 3800万円台(2戸) | Building coverage, floor area ratio 建ぺい率・容積率 | | Kenpei rate: 60%, Volume ratio: 150% 建ペい率:60%、容積率:150% | Time residents 入居時期 | | February 2014 schedule 2014年2月予定 | Land of the right form 土地の権利形態 | | Ownership 所有権 | Structure and method of construction 構造・工法 | | Wooden three-story 木造3階建 | Use district 用途地域 | | Two mid-high 2種中高 | Land category 地目 | | Residential land 宅地 | Other limitations その他制限事項 | | Height district, Quasi-fire zones 高度地区、準防火地域 | Overview and notices その他概要・特記事項 | | Contact: Ryota Nakamura, Building confirmation number: No. H25A-Jk.eX00755-01 other 担当者:中村亮太、建築確認番号:第H25A-Jk.eX00755-01号他 | Company profile 会社概要 | | <Mediation> Minister of Land, Infrastructure and Transport (2) No. 007124 (Corporation) All Japan Real Estate Association (Corporation) metropolitan area real estate Fair Trade Council member (Ltd.) living life Kawasaki branch Yubinbango210-0012 Kawasaki City, Kanagawa Prefecture, Kawasaki-ku, Miyamae-cho, 2-3 living life Kawasaki building <仲介>国土交通大臣(2)第007124号(公社)全日本不動産協会会員 (公社)首都圏不動産公正取引協議会加盟(株)リビングライフ川崎支店〒210-0012 神奈川県川崎市川崎区宮前町2-3 リビングライフ川崎ビル |
Rendering (appearance)完成予想図(外観)  Exterior - Rendering
外観完成予想図
Otherその他  Compartment figure
区画図
Floor plan間取り図  (A Building), Price 38,800,000 yen, 2LDK+2S, Land area 80.02 sq m , Building area 108.56 sq m
(A号棟)、価格3880万円、2LDK+2S、土地面積80.02m2、建物面積108.56m2
Primary school小学校  Yokohama Municipal Dongtai 150m up to elementary school
横浜市立東台小学校まで150m
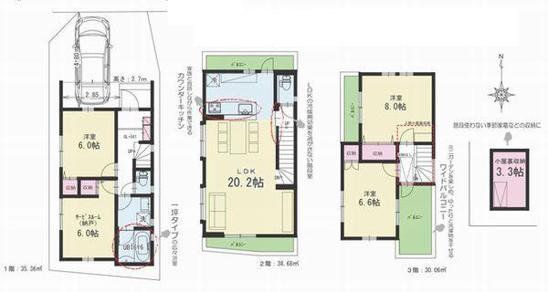
Floor plan間取り図  (B Building), Price 38,800,000 yen, 3LDK+S, Land area 72.02 sq m , Building area 104.04 sq m
(B号棟)、価格3880万円、3LDK+S、土地面積72.02m2、建物面積104.04m2
Supermarketスーパー  850m to Super culture temple Higashiterao shop
スーパー文化堂東寺尾店まで850m
Home centerホームセンター  Shimachu Co., Ltd. home improvement 250m to Yokohama
島忠ホームセンター横浜店まで250m
Kindergarten ・ Nursery幼稚園・保育園  550m to Iiyama kindergarten
飯山幼稚園まで550m
Hospital病院  550m until the medical corporation peace meeting peace hospital
医療法人平和会平和病院まで550m
Park公園  450m until Kishitani park
岸谷公園まで450m
Location
|