New Homes » Kanto » Kanagawa Prefecture » Tsurumi-ku, Yokohama City
 
| | Kanagawa Prefecture Tsurumi-ku, Yokohama City 神奈川県横浜市鶴見区 |
| Tokyu Toyoko Line "Kikuna" bus 13 minutes Tachibana Gakuen before walking 7 minutes 東急東横線「菊名」バス13分橘学苑前歩7分 |
| Pre-ground survey, 2 along the line more accessible, LDK20 tatami mats or more, It is close to Tennis Court, Facing south, System kitchen, Bathroom Dryer, Yang per good, All room storage, Siemens south road, A quiet residential area, Around traffic 地盤調査済、2沿線以上利用可、LDK20畳以上、テニスコートが近い、南向き、システムキッチン、浴室乾燥機、陽当り良好、全居室収納、南側道路面す、閑静な住宅地、周辺交通量 |
| Pre-ground survey, 2 along the line more accessible, LDK20 tatami mats or more, It is close to Tennis Court, Facing south, System kitchen, Bathroom Dryer, Yang per good, All room storage, Siemens south road, A quiet residential area, Around traffic fewer, Or more before road 6m, Corner lot, Shaping land, Washbasin with shower, Face-to-face kitchen, Toilet 2 places, Bathroom 1 tsubo or more, 2-story, South balcony, Double-glazing, Warm water washing toilet seat, TV with bathroom, Underfloor Storage, The window in the bathroom, TV monitor interphone, Leafy residential area, Mu front building, Ventilation good, All living room flooring, Good view, Dish washing dryer, Water filter, Living stairs, City gas, All rooms are two-sided lighting, Located on a hill, A large gap between the neighboring house, roof balcony, Flat terrain 地盤調査済、2沿線以上利用可、LDK20畳以上、テニスコートが近い、南向き、システムキッチン、浴室乾燥機、陽当り良好、全居室収納、南側道路面す、閑静な住宅地、周辺交通量少なめ、前道6m以上、角地、整形地、シャワー付洗面台、対面式キッチン、トイレ2ヶ所、浴室1坪以上、2階建、南面バルコニー、複層ガラス、温水洗浄便座、TV付浴室、床下収納、浴室に窓、TVモニタ付インターホン、緑豊かな住宅地、前面棟無、通風良好、全居室フローリング、眺望良好、食器洗乾燥機、浄水器、リビング階段、都市ガス、全室2面採光、高台に立地、隣家との間隔が大きい、ルーフバルコニー、平坦地 |
Features pickup 特徴ピックアップ | | Pre-ground survey / 2 along the line more accessible / LDK20 tatami mats or more / It is close to Tennis Court / Facing south / System kitchen / Bathroom Dryer / Yang per good / All room storage / Siemens south road / A quiet residential area / Around traffic fewer / Or more before road 6m / Corner lot / Shaping land / Washbasin with shower / Face-to-face kitchen / Toilet 2 places / Bathroom 1 tsubo or more / 2-story / South balcony / Double-glazing / Warm water washing toilet seat / TV with bathroom / Underfloor Storage / The window in the bathroom / TV monitor interphone / Leafy residential area / Mu front building / Ventilation good / All living room flooring / Good view / Dish washing dryer / Water filter / Living stairs / City gas / All rooms are two-sided lighting / Located on a hill / A large gap between the neighboring house / roof balcony / Flat terrain 地盤調査済 /2沿線以上利用可 /LDK20畳以上 /テニスコートが近い /南向き /システムキッチン /浴室乾燥機 /陽当り良好 /全居室収納 /南側道路面す /閑静な住宅地 /周辺交通量少なめ /前道6m以上 /角地 /整形地 /シャワー付洗面台 /対面式キッチン /トイレ2ヶ所 /浴室1坪以上 /2階建 /南面バルコニー /複層ガラス /温水洗浄便座 /TV付浴室 /床下収納 /浴室に窓 /TVモニタ付インターホン /緑豊かな住宅地 /前面棟無 /通風良好 /全居室フローリング /眺望良好 /食器洗乾燥機 /浄水器 /リビング階段 /都市ガス /全室2面採光 /高台に立地 /隣家との間隔が大きい /ルーフバルコニー /平坦地 | Price 価格 | | 29,800,000 yen 2980万円 | Floor plan 間取り | | 3LDK 3LDK | Units sold 販売戸数 | | 1 units 1戸 | Total units 総戸数 | | 2 units 2戸 | Land area 土地面積 | | 80 sq m 80m2 | Building area 建物面積 | | 67.9 sq m 67.9m2 | Completion date 完成時期(築年月) | | July 2013 2013年7月 | Address 住所 | | Kanagawa Prefecture Tsurumi-ku, Yokohama City Baba 6 神奈川県横浜市鶴見区馬場6 | Traffic 交通 | | Tokyu Toyoko Line "Kikuna" bus 13 minutes Tachibana Gakuen before walking 7 minutes JR Keihin Tohoku Line "Tsurumi" 10 minutes reservoir before walk 4 minutes by bus Tokyu Toyoko Line "Okurayama" walk 36 minutes 東急東横線「菊名」バス13分橘学苑前歩7分 JR京浜東北線「鶴見」バス10分貯水池前歩4分 東急東横線「大倉山」歩36分
| Person in charge 担当者より | | [Regarding this property.] Tsurumi-ku, ・ To the Corporation Republic of home sales up to the property of Kanagawa-ku,. It owns unlisted property number. Please tell us your desired conditions. We offer the property to suit you. 【この物件について】鶴見区・神奈川区の物件のことなら株式会社共和住宅販売へ。未公開物件多数保有しております。 ご希望条件をお聞かせ下さい。あなたに合う物件をご提案致します。 | Contact お問い合せ先 | | TEL: 0800-602-5414 [Toll free] mobile phone ・ Also available from PHS Caller ID is not notified Please contact the "saw SUUMO (Sumo)" If it does not lead, If the real estate company TEL:0800-602-5414【通話料無料】携帯電話・PHSからもご利用いただけます 発信者番号は通知されません 「SUUMO(スーモ)を見た」と問い合わせください つながらない方、不動産会社の方は
| Building coverage, floor area ratio 建ぺい率・容積率 | | Kenpei rate: 50%, Volume ratio: 100% 建ペい率:50%、容積率:100% | Time residents 入居時期 | | Consultation 相談 | Land of the right form 土地の権利形態 | | Ownership 所有権 | Structure and method of construction 構造・工法 | | Wooden 2-story (2 × 4 construction method) 木造2階建(2×4工法) | Use district 用途地域 | | One low-rise 1種低層 | Land category 地目 | | Residential land 宅地 | Company profile 会社概要 | | <Mediation> Governor of Kanagawa Prefecture (1) No. 027655 (Ltd.) Republic of home sales Yubinbango221-0014 Kanagawa Prefecture, Kanagawa-ku, Yokohama-shi Irie 1-33-28 <仲介>神奈川県知事(1)第027655号(株)共和住宅販売〒221-0014 神奈川県横浜市神奈川区入江1-33-28 |
Local appearance photo現地外観写真  Local shooting
現地撮影
Local photos, including front road前面道路含む現地写真  Local shooting
現地撮影
 Living
リビング
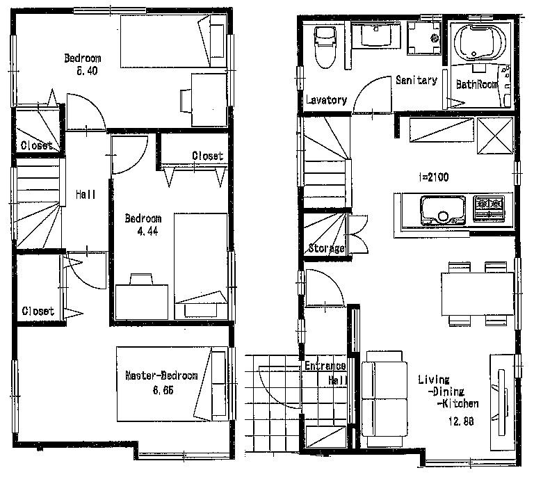
Floor plan間取り図  (2), Price 29,800,000 yen, 3LDK, Land area 80 sq m , Building area 67.9 sq m
(2)、価格2980万円、3LDK、土地面積80m2、建物面積67.9m2
 Bathroom
浴室
 Kitchen
キッチン
 Non-living room
リビング以外の居室
 Entrance
玄関
 Wash basin, toilet
洗面台・洗面所
 Toilet
トイレ
 Balcony
バルコニー
Shopping centreショッピングセンター  Tressa to Yokohama 1982m
トレッサ横浜まで1982m
 The entire compartment Figure
全体区画図
Supermarketスーパー  1057m to Sotetsu Rosen Higashiterao shop
そうてつローゼン東寺尾店まで1057m
Drug storeドラッグストア  Fit Care ・ 1629m until the depot two Tsu pond shop
フィットケア・デポ二ツ池店まで1629m
Location
|