New Homes » Kanto » Kanagawa Prefecture » Tsurumi-ku, Yokohama City
 
| | Kanagawa Prefecture Tsurumi-ku, Yokohama City 神奈川県横浜市鶴見区 |
| JR Keihin Tohoku Line "Tsurumi" bus 14 minutes two Tsu IkeAyumi 3 minutes JR京浜東北線「鶴見」バス14分二ツ池歩3分 |
| All 38 compartments large-scale development subdivision of! ! Relationship of the whole family even after becoming to you live by your move at the same time Those who move from other areas, Oh the sense of security to families with small children 全38区画の大型開発分譲地!!同時期にご入居することでお住まいになった後も家族ぐるみのお付き合い 他エリアからお引っ越しの方、小さなお子さんがいるご家庭には安心感のあ |
Features pickup 特徴ピックアップ | | Immediate Available / 2 along the line more accessible / LDK18 tatami mats or more / Super close / System kitchen / Bathroom Dryer / All room storage / Washbasin with shower / Toilet 2 places / 2-story / Double-glazing / Warm water washing toilet seat / Underfloor Storage / TV monitor interphone / Water filter / City gas / Attic storage 即入居可 /2沿線以上利用可 /LDK18畳以上 /スーパーが近い /システムキッチン /浴室乾燥機 /全居室収納 /シャワー付洗面台 /トイレ2ヶ所 /2階建 /複層ガラス /温水洗浄便座 /床下収納 /TVモニタ付インターホン /浄水器 /都市ガス /屋根裏収納 | Price 価格 | | 37 million yen 3700万円 | Floor plan 間取り | | 4LDK 4LDK | Units sold 販売戸数 | | 1 units 1戸 | Land area 土地面積 | | 126.77 sq m (registration) 126.77m2(登記) | Building area 建物面積 | | 98.53 sq m (registration) 98.53m2(登記) | Driveway burden-road 私道負担・道路 | | Share interests 218 sq m × (1 / 11), Northwest 5.5m width 共有持分218m2×(1/11)、北西5.5m幅 | Completion date 完成時期(築年月) | | September 2013 2013年9月 | Address 住所 | | Kanagawa Prefecture Tsurumi-ku, Yokohama City Shishigaya 1 神奈川県横浜市鶴見区獅子ケ谷1 | Traffic 交通 | | JR Keihin Tohoku Line "Tsurumi" bus 14 minutes two Tsu IkeAyumi 3 minutes Tokyu Toyoko Line "Okurayama" bus 9 minutes two Tsu IkeAyumi 3 minutes Tokyu Toyoko Line "Tsunashima" bus 16 minutes two Tsu IkeAyumi 3 minutes JR京浜東北線「鶴見」バス14分二ツ池歩3分 東急東横線「大倉山」バス9分二ツ池歩3分 東急東横線「綱島」バス16分二ツ池歩3分
| Related links 関連リンク | | [Related Sites of this company] 【この会社の関連サイト】 | Person in charge 担当者より | | Rep Yasaka Yusuke Age: 30 Daigyokai Experience: 1 year customer peace of mind ・ So that will be advanced looking consent has been you live, Support with full force ・ I will propose! ! All in order of happiness and your smile, , , ! ! We look forward to your visit! ! 担当者八坂 裕介年齢:30代業界経験:1年お客様が安心・納得されたお住まい探しを進められますよう、全力でサポート・ご提案させていただきます!!全てはお客様の笑顔と幸せの為に、、、!!ご来店お待ちしております!! | Contact お問い合せ先 | | TEL: 0800-603-9908 [Toll free] mobile phone ・ Also available from PHS Caller ID is not notified Please contact the "saw SUUMO (Sumo)" If it does not lead, If the real estate company TEL:0800-603-9908【通話料無料】携帯電話・PHSからもご利用いただけます 発信者番号は通知されません 「SUUMO(スーモ)を見た」と問い合わせください つながらない方、不動産会社の方は
| Building coverage, floor area ratio 建ぺい率・容積率 | | 40% ・ 80% 40%・80% | Time residents 入居時期 | | Immediate available 即入居可 | Land of the right form 土地の権利形態 | | Ownership 所有権 | Structure and method of construction 構造・工法 | | Wooden 2-story 木造2階建 | Use district 用途地域 | | One low-rise 1種低層 | Overview and notices その他概要・特記事項 | | Contact: Yasaka Yusuke, Facilities: Public Water Supply, This sewage, City gas, Building confirmation number: first 12KAK Ken確 01508 担当者:八坂 裕介、設備:公営水道、本下水、都市ガス、建築確認番号:第12KAK建確01508 | Company profile 会社概要 | | <Mediation> Governor of Kanagawa Prefecture (1) No. 027423 (Ltd.) Gift Yubinbango222-0037 Yokohama-shi, Kanagawa-ku, Kohoku Okurayama 1-23-18 Habitation Okurayama first floor <仲介>神奈川県知事(1)第027423号(株)ギフト〒222-0037 神奈川県横浜市港北区大倉山1-23-18 アビタシオン大倉山1階 |
Local appearance photo現地外観写真  Local Photos
現地写真
 Living
リビング
 Local Photos
現地写真
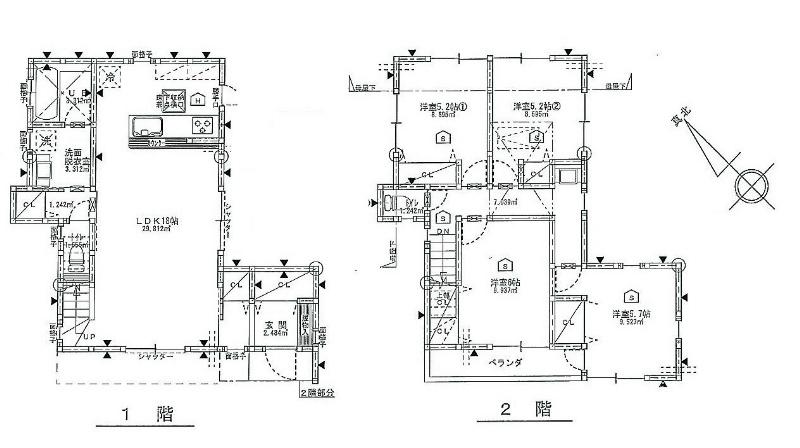
Floor plan間取り図  37 million yen, 4LDK, Land area 126.77 sq m , Building area 98.53 sq m Floor
3700万円、4LDK、土地面積126.77m2、建物面積98.53m2 間取り
Local appearance photo現地外観写真  Local Photos
現地写真
 Living
リビング
Bathroom浴室  bath
風呂
 Kitchen
キッチン
Non-living roomリビング以外の居室  Western style room
洋室
Wash basin, toilet洗面台・洗面所  Wash basin
洗面台
 Toilet
トイレ
Local photos, including front road前面道路含む現地写真  Front road 1
前面道路1
Supermarketスーパー  Super Sanwa Tressa 1280m to Yokohama
スーパー三和トレッサ横浜店まで1280m
Non-living roomリビング以外の居室  Western style room
洋室
Local photos, including front road前面道路含む現地写真  Front road 2
前面道路2
Supermarketスーパー  1710m until the Big yaw San Tsunashima Tarumachi shop
ビッグヨーサン綱島樽町店まで1710m
Local photos, including front road前面道路含む現地写真  Front road 3
前面道路3
Primary school小学校  Yokohama Municipal Shishigaya 300m up to elementary school
横浜市立獅子ケ谷小学校まで300m
Junior high school中学校  1680m to Yokohama Municipal Kaminomiya junior high school
横浜市立上の宮中学校まで1680m
Location
|