New Homes » Kanto » Kanagawa Prefecture » Tsurumi-ku, Yokohama City
 
| | Kanagawa Prefecture Tsurumi-ku, Yokohama City 神奈川県横浜市鶴見区 |
| JR Keihin Tohoku Line "Tsurumi" walk 17 minutes JR京浜東北線「鶴見」歩17分 |
| Newly built single-family nestled in Tsurumi Station within walking distance. Enhancement of equipment and specifications content. Surrounding environment favorable. Secom installation. 鶴見駅徒歩圏内に佇む新築戸建。充実の設備と仕様内容。周辺環境良好。セコム設置。 |
| Over Recommended point-to recommend point-to ● equipment and specifications content of Tsurumi Station within walking distance ● enhance ● Secom installation ● Super ・ A convenience store nearby ・ In the case of our alliance mortgage available, The entire period up to -1.7 preferential treatment ・ The application, Conditions, there is a review ・ Weekdays, Saturday and Sunday, will guide you regardless of holiday ・ It can come to pick you up in the car ーオススメポイントーオススメポイントー●鶴見駅徒歩圏内●充実の設備と仕様内容●セコム設置●スーパー・コンビニ近隣・弊社の提携住宅ローン利用の場合、全期間最大-1.7優遇・適用には、条件,審査がございます・平日,土日,祝日問わずご案内致します・車でお迎えに伺います |
Features pickup 特徴ピックアップ | | Corresponding to the flat-35S / Year Available / Parking two Allowed / 2 along the line more accessible / It is close to golf course / It is close to Tennis Court / Super close / Facing south / System kitchen / Bathroom Dryer / Yang per good / All room storage / Flat to the station / LDK15 tatami mats or more / Around traffic fewer / Washbasin with shower / Face-to-face kitchen / Wide balcony / 3 face lighting / Barrier-free / Toilet 2 places / Natural materials / 2-story / 2 or more sides balcony / South balcony / Otobasu / High speed Internet correspondence / Warm water washing toilet seat / Underfloor Storage / The window in the bathroom / High-function toilet / Ventilation good / Built garage / Walk-in closet / Water filter / Three-story or more / Living stairs / All rooms are two-sided lighting / BS ・ CS ・ CATV / Maintained sidewalk / roof balcony / Attic storage / Floor heating フラット35Sに対応 /年内入居可 /駐車2台可 /2沿線以上利用可 /ゴルフ場が近い /テニスコートが近い /スーパーが近い /南向き /システムキッチン /浴室乾燥機 /陽当り良好 /全居室収納 /駅まで平坦 /LDK15畳以上 /周辺交通量少なめ /シャワー付洗面台 /対面式キッチン /ワイドバルコニー /3面採光 /バリアフリー /トイレ2ヶ所 /自然素材 /2階建 /2面以上バルコニー /南面バルコニー /オートバス /高速ネット対応 /温水洗浄便座 /床下収納 /浴室に窓 /高機能トイレ /通風良好 /ビルトガレージ /ウォークインクロゼット /浄水器 /3階建以上 /リビング階段 /全室2面採光 /BS・CS・CATV /整備された歩道 /ルーフバルコニー /屋根裏収納 /床暖房 | Price 価格 | | 34,800,000 yen ~ 39,800,000 yen 3480万円 ~ 3980万円 | Floor plan 間取り | | 4LDK 4LDK | Units sold 販売戸数 | | 2 units 2戸 | Total units 総戸数 | | 2 units 2戸 | Land area 土地面積 | | 50.17 sq m ~ 99.43 sq m 50.17m2 ~ 99.43m2 | Building area 建物面積 | | 101.05 sq m ~ 102.42 sq m 101.05m2 ~ 102.42m2 | Completion date 完成時期(築年月) | | November 2013 2013年11月 | Address 住所 | | Kanagawa Prefecture Tsurumi-ku, Yokohama City Shiota-cho 3 神奈川県横浜市鶴見区潮田町3 | Traffic 交通 | | JR Keihin Tohoku Line "Tsurumi" walk 17 minutes Keikyū Main Line "Keikyu Tsurumi" walk 15 minutes JR Tsurumi line "Bentenbashi" walk 10 minutes JR京浜東北線「鶴見」歩17分 京急本線「京急鶴見」歩15分 JR鶴見線「弁天橋」歩10分
| Related links 関連リンク | | [Related Sites of this company] 【この会社の関連サイト】 | Person in charge 担当者より | | Rep Kimura 担当者木村 | Contact お問い合せ先 | | TEL: 0800-603-7122 [Toll free] mobile phone ・ Also available from PHS Caller ID is not notified Please contact the "saw SUUMO (Sumo)" If it does not lead, If the real estate company TEL:0800-603-7122【通話料無料】携帯電話・PHSからもご利用いただけます 発信者番号は通知されません 「SUUMO(スーモ)を見た」と問い合わせください つながらない方、不動産会社の方は
| Building coverage, floor area ratio 建ぺい率・容積率 | | Kenpei rate: 80%, Volume ratio: 300% 建ペい率:80%、容積率:300% | Time residents 入居時期 | | Consultation 相談 | Land of the right form 土地の権利形態 | | Ownership 所有権 | Use district 用途地域 | | Residential 近隣商業 | Overview and notices その他概要・特記事項 | | Contact: Kimura, Building confirmation number: 01416 担当者:木村、建築確認番号:01416 | Company profile 会社概要 | | <Mediation> Minister of Land, Infrastructure and Transport (2) the first 007,684 No. + HOUSE Yokohama Office (Ltd.) propoxycarbonyl life Yubinbango230-0062 Kanagawa Prefecture Tsurumi-ku, Yokohama City Toyooka-cho, 8-24 first floor <仲介>国土交通大臣(2)第007684号+HOUSE横浜Office(株)プロポライフ〒230-0062 神奈川県横浜市鶴見区豊岡町8-24 1階 |
 Local appearance photo
現地外観写真
 Local appearance photo
現地外観写真
 Local appearance photo
現地外観写真
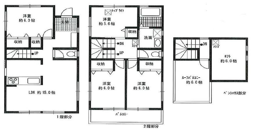
Floor plan間取り図  (A Building), Price 34,800,000 yen, 4LDK, Land area 50.17 sq m , Building area 102.42 sq m
(A号棟)、価格3480万円、4LDK、土地面積50.17m2、建物面積102.42m2
 Local photos, including front road
前面道路含む現地写真
 Other
その他
 (B Building), Price 39,800,000 yen, 4LDK, Land area 99.43 sq m , Building area 101.05 sq m
(B号棟)、価格3980万円、4LDK、土地面積99.43m2、建物面積101.05m2
Location
|