New Homes » Kanto » Kanagawa Prefecture » Tsurumi-ku, Yokohama City
 
| | Kanagawa Prefecture Tsurumi-ku, Yokohama City 神奈川県横浜市鶴見区 |
| Keikyu main line "Namamugi" walk 5 minutes 京急本線「生麦」歩5分 |
| Good day in the southeast corner lot. Also nearby elementary school, My home of dream is located in the surrounding environment a good location near a train station. All two buildings sale building is possible preview. 東南角地で日当たり良好。小学校も近く、駅も近い周辺環境良好な立地に位置する夢のマイホーム。全2棟販売建物内覧可能です。 |
| Pre-ground survey, LDK18 tatami mats or more, Super close, It is close to the city, Facing south, System kitchen, Bathroom Dryer, Yang per good, All room storage, Flat to the station, Siemens south road, A quiet residential area, Around traffic fewer, Corner lotese-style room, Shaping land, Washbasin with shower, Face-to-face kitchen, Wide balcony, 3 face lighting, Toilet 2 places, Bathroom 1 tsubo or more, 2-story, South balcony, Double-glazing, Warm water washing toilet seat, Underfloor Storage, The window in the bathroom, TV monitor interphone, Leafy residential area, Mu front building, Ventilation good, Water filter, Living stairs, City gas, All rooms are two-sided lighting, roof balcony, Flat terrain 地盤調査済、LDK18畳以上、スーパーが近い、市街地が近い、南向き、システムキッチン、浴室乾燥機、陽当り良好、全居室収納、駅まで平坦、南側道路面す、閑静な住宅地、周辺交通量少なめ、角地、和室、整形地、シャワー付洗面台、対面式キッチン、ワイドバルコニー、3面採光、トイレ2ヶ所、浴室1坪以上、2階建、南面バルコニー、複層ガラス、温水洗浄便座、床下収納、浴室に窓、TVモニタ付インターホン、緑豊かな住宅地、前面棟無、通風良好、浄水器、リビング階段、都市ガス、全室2面採光、ルーフバルコニー、平坦地 |
Features pickup 特徴ピックアップ | | Pre-ground survey / LDK18 tatami mats or more / Super close / It is close to the city / Facing south / System kitchen / Bathroom Dryer / Yang per good / All room storage / Flat to the station / Siemens south road / A quiet residential area / Around traffic fewer / Corner lot / Japanese-style room / Shaping land / Washbasin with shower / Face-to-face kitchen / Wide balcony / 3 face lighting / Toilet 2 places / Bathroom 1 tsubo or more / 2-story / South balcony / Double-glazing / Warm water washing toilet seat / Underfloor Storage / The window in the bathroom / TV monitor interphone / Leafy residential area / Mu front building / Ventilation good / Water filter / Living stairs / City gas / All rooms are two-sided lighting / roof balcony / Flat terrain 地盤調査済 /LDK18畳以上 /スーパーが近い /市街地が近い /南向き /システムキッチン /浴室乾燥機 /陽当り良好 /全居室収納 /駅まで平坦 /南側道路面す /閑静な住宅地 /周辺交通量少なめ /角地 /和室 /整形地 /シャワー付洗面台 /対面式キッチン /ワイドバルコニー /3面採光 /トイレ2ヶ所 /浴室1坪以上 /2階建 /南面バルコニー /複層ガラス /温水洗浄便座 /床下収納 /浴室に窓 /TVモニタ付インターホン /緑豊かな住宅地 /前面棟無 /通風良好 /浄水器 /リビング階段 /都市ガス /全室2面採光 /ルーフバルコニー /平坦地 | Event information イベント情報 | | Open House (Please visitors to direct local) schedule / Every Saturday, Sunday and public holidays time / 10:00 ~ 18:00 Information Association mortgage briefing held in our holding and held at the same time. Have you ever refused to Bank, There is no self-financing, Thing etc. What little things have a tax return is also please consult. I empathically answer. オープンハウス(直接現地へご来場ください)日程/毎週土日祝時間/10:00 ~ 18:00案内会開催と同時開催で住宅ローン説明会開催中。銀行に断られたことがある、自己資金が無い、確定申告をしている等どんな些細なことでもご相談下さい。親身になってお答え致します。 | Price 価格 | | 41,800,000 yen 4180万円 | Floor plan 間取り | | 4LDK 4LDK | Units sold 販売戸数 | | 2 units 2戸 | Total units 総戸数 | | 2 units 2戸 | Land area 土地面積 | | 64.41 sq m ~ 74.49 sq m (19.48 tsubo ~ 22.53 tsubo) (Registration) 64.41m2 ~ 74.49m2(19.48坪 ~ 22.53坪)(登記) | Building area 建物面積 | | 89.9 sq m ~ 90.3 sq m (27.19 tsubo ~ 27.31 tsubo) (Registration) 89.9m2 ~ 90.3m2(27.19坪 ~ 27.31坪)(登記) | Completion date 完成時期(築年月) | | November 2013 2013年11月 | Address 住所 | | Kanagawa Prefecture Tsurumi-ku, Yokohama City Namamugi 4 神奈川県横浜市鶴見区生麦4 | Traffic 交通 | | Keikyu main line "Namamugi" walk 5 minutes Keikyu main line "Kagetsuen before" walk 8 minutes JR Tsurumi line "national road" walking 10 minutes 京急本線「生麦」歩5分 京急本線「花月園前」歩8分 JR鶴見線「国道」歩10分
| Related links 関連リンク | | [Related Sites of this company] 【この会社の関連サイト】 | Person in charge 担当者より | | [Regarding this property.] Kanagawa-ku, ・ Tsurumi-ku, the property of the Corporation Republic of home sales if it is a thing. It owns unlisted property number. Please tell us your desired conditions. We offer the property to suit you. 【この物件について】神奈川区・鶴見区の物件の事なら株式会社共和住宅販売へ。未公開物件多数保有しております。 ご希望条件をお聞かせ下さい。あなたに合う物件をご提案致します。 | Contact お問い合せ先 | | TEL: 0800-602-5414 [Toll free] mobile phone ・ Also available from PHS Caller ID is not notified Please contact the "saw SUUMO (Sumo)" If it does not lead, If the real estate company TEL:0800-602-5414【通話料無料】携帯電話・PHSからもご利用いただけます 発信者番号は通知されません 「SUUMO(スーモ)を見た」と問い合わせください つながらない方、不動産会社の方は
| Building coverage, floor area ratio 建ぺい率・容積率 | | Kenpei rate: 60%, Volume ratio: 200% 建ペい率:60%、容積率:200% | Time residents 入居時期 | | Consultation 相談 | Land of the right form 土地の権利形態 | | Ownership 所有権 | Structure and method of construction 構造・工法 | | Wooden 2-story 木造2階建 | Use district 用途地域 | | One dwelling 1種住居 | Land category 地目 | | Residential land 宅地 | Overview and notices その他概要・特記事項 | | Building confirmation number: first 13KAK Ken確 01757 other 建築確認番号:第13KAK建確01757他 | Company profile 会社概要 | | <Mediation> Governor of Kanagawa Prefecture (1) No. 027655 (Ltd.) Republic of home sales Yubinbango221-0014 Kanagawa Prefecture, Kanagawa-ku, Yokohama-shi Irie 1-33-28 <仲介>神奈川県知事(1)第027655号(株)共和住宅販売〒221-0014 神奈川県横浜市神奈川区入江1-33-28 |
Local appearance photo現地外観写真  Local shooting
現地撮影
Local photos, including front road前面道路含む現地写真  Local shooting
現地撮影
Livingリビング  Local shooting
現地撮影
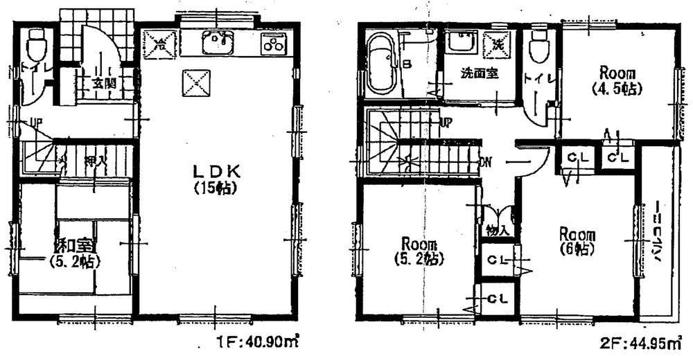
Floor plan間取り図  (A), Price 41,800,000 yen, 4LDK, Land area 64.41 sq m , Building area 89.9 sq m
(A)、価格4180万円、4LDK、土地面積64.41m2、建物面積89.9m2
Bathroom浴室  Local shooting
現地撮影
Kitchenキッチン  Local shooting
現地撮影
Non-living roomリビング以外の居室  Local shooting
現地撮影
Entrance玄関  Local shooting
現地撮影
Wash basin, toilet洗面台・洗面所  Local shooting
現地撮影
Toiletトイレ  Local shooting
現地撮影
Balconyバルコニー  Local shooting
現地撮影
Shopping centreショッピングセンター  1452m to Sea Crane
シークレインまで1452m
Floor plan間取り図  (B), Price 41,800,000 yen, 4LDK, Land area 74.49 sq m , Building area 90.3 sq m
(B)、価格4180万円、4LDK、土地面積74.49m2、建物面積90.3m2
Supermarketスーパー  Maibasuketto Namamugi 328m up to 3-chome
まいばすけっと生麦3丁目店まで328m
Drug storeドラッグストア  Fit Care ・ 867m until the depot national highway shop
フィットケア・デポ国道店まで867m
Home centerホームセンター  Shimachu Co., Ltd. 1811m home improvement to Yokohama
島忠ホームセンター横浜店まで1811m
Location
|