New Homes » Kanto » Kanagawa Prefecture » Tsurumi-ku, Yokohama City
 
| | Kanagawa Prefecture Tsurumi-ku, Yokohama City 神奈川県横浜市鶴見区 |
| Keikyu main line "Tsurumiichiba" walk 7 minutes 京急本線「鶴見市場」歩7分 |
| Imposing completed! The birth of new construction all 9 buildings on a flat location from the train station! Earthquake-proof, Excellent flat 35S corresponding housing to energy-saving! Zento is a large 4LDK of spacious LDK! 堂々完成!駅から平坦なロケーションに新築全9棟の誕生!耐震性、省エネ性に優れたフラット35S対応住宅!全棟広々としたLDKの大型4LDKです! |
| Immediate Available, Yang per good, roof balcony, Flat terrain, Face-to-face kitchen, Or more before road 6m, Corresponding to the flat-35S, Pre-ground survey, 2 along the line more accessible, LDK15 tatami mats or more, Super close, Facing south, System kitchen, Bathroom Dryer, All room storage, Flat to the station, Siemens south road, Around traffic fewer, Shaping land, Washbasin with shower, Toilet 2 places, Bathroom 1 tsubo or more, South balcony, Double-glazing, Otobasu, Warm water washing toilet seat, Underfloor Storage, The window in the bathroom, Atrium, TV monitor interphone, High-function toilet, Ventilation good, All living room flooring, Water filter, Three-story or more, Living stairs, City gas, All rooms are two-sided lighting 即入居可、陽当り良好、ルーフバルコニー、平坦地、対面式キッチン、前道6m以上、フラット35Sに対応、地盤調査済、2沿線以上利用可、LDK15畳以上、スーパーが近い、南向き、システムキッチン、浴室乾燥機、全居室収納、駅まで平坦、南側道路面す、周辺交通量少なめ、整形地、シャワー付洗面台、トイレ2ヶ所、浴室1坪以上、南面バルコニー、複層ガラス、オートバス、温水洗浄便座、床下収納、浴室に窓、吹抜け、TVモニタ付インターホン、高機能トイレ、通風良好、全居室フローリング、浄水器、3階建以上、リビング階段、都市ガス、全室2面採光 |
Features pickup 特徴ピックアップ | | Corresponding to the flat-35S / Pre-ground survey / Immediate Available / 2 along the line more accessible / LDK18 tatami mats or more / Super close / Facing south / System kitchen / Bathroom Dryer / Yang per good / All room storage / Flat to the station / Siemens south road / Around traffic fewer / Or more before road 6m / Shaping land / Washbasin with shower / Face-to-face kitchen / Toilet 2 places / Bathroom 1 tsubo or more / South balcony / Double-glazing / Otobasu / Warm water washing toilet seat / Underfloor Storage / The window in the bathroom / Atrium / TV monitor interphone / High-function toilet / Ventilation good / All living room flooring / Water filter / Three-story or more / Living stairs / City gas / All rooms are two-sided lighting / roof balcony / Flat terrain フラット35Sに対応 /地盤調査済 /即入居可 /2沿線以上利用可 /LDK18畳以上 /スーパーが近い /南向き /システムキッチン /浴室乾燥機 /陽当り良好 /全居室収納 /駅まで平坦 /南側道路面す /周辺交通量少なめ /前道6m以上 /整形地 /シャワー付洗面台 /対面式キッチン /トイレ2ヶ所 /浴室1坪以上 /南面バルコニー /複層ガラス /オートバス /温水洗浄便座 /床下収納 /浴室に窓 /吹抜け /TVモニタ付インターホン /高機能トイレ /通風良好 /全居室フローリング /浄水器 /3階建以上 /リビング階段 /都市ガス /全室2面採光 /ルーフバルコニー /平坦地 | Event information イベント情報 | | Imposing completed! Please visit wish, please feel free to tell us! 堂々完成!ご見学希望はお気軽にお申し付け下さい! | Price 価格 | | 33,900,000 yen ~ 40,900,000 yen 3390万円 ~ 4090万円 | Floor plan 間取り | | 4LDK 4LDK | Units sold 販売戸数 | | 7 units 7戸 | Total units 総戸数 | | 9 units 9戸 | Land area 土地面積 | | 57.1 sq m ~ 78.2 sq m (17.27 tsubo ~ 23.65 tsubo) (measured) 57.1m2 ~ 78.2m2(17.27坪 ~ 23.65坪)(実測) | Building area 建物面積 | | 97.67 sq m ~ 115.83 sq m (29.54 tsubo ~ 35.03 tsubo) (measured) 97.67m2 ~ 115.83m2(29.54坪 ~ 35.03坪)(実測) | Driveway burden-road 私道負担・道路 | | Road width: south 6.1m public road ・ North 5.9m public road 道路幅:南側6.1m公道・北側5.9m公道 | Completion date 完成時期(築年月) | | 2013 early November 2013年11月上旬 | Address 住所 | | Kanagawa Prefecture Tsurumi-ku, Yokohama City Sugasawa cho 神奈川県横浜市鶴見区菅沢町 | Traffic 交通 | | Keikyu main line "Tsurumiichiba" walk 7 minutes Keikyū Main Line "Keikyu Tsurumi" walk 17 minutes JR Keihin Tohoku Line "Tsurumi" walk 19 minutes 京急本線「鶴見市場」歩7分 京急本線「京急鶴見」歩17分 JR京浜東北線「鶴見」歩19分
| Person in charge 担当者より | | It marked with a charge for each person in charge of real-estate and building FP customers. Realistic agent get by all the support from a variety of angles to the starting point of the real estate, It is unceasing at home company of smile! First, please feel free to contact us! Staff, We look forward to! 担当者宅建FPお客様毎に担当が付きます。リアルエージェントは不動産を起点に様々な角度からあらゆるサポートをさせて頂く、笑顔の絶えないアットホームな会社です!まずはお気軽にご相談下さい!スタッフ一同、心よりお待ちしております! | Contact お問い合せ先 | | TEL: 0800-809-8208 [Toll free] mobile phone ・ Also available from PHS Caller ID is not notified Please contact the "saw SUUMO (Sumo)" If it does not lead, If the real estate company TEL:0800-809-8208【通話料無料】携帯電話・PHSからもご利用いただけます 発信者番号は通知されません 「SUUMO(スーモ)を見た」と問い合わせください つながらない方、不動産会社の方は
| Building coverage, floor area ratio 建ぺい率・容積率 | | Kenpei rate: 60%, Volume ratio: 200% 建ペい率:60%、容積率:200% | Time residents 入居時期 | | Immediate available 即入居可 | Land of the right form 土地の権利形態 | | Ownership 所有権 | Structure and method of construction 構造・工法 | | Wooden three-story 木造3階建 | Use district 用途地域 | | One dwelling, Residential 1種住居、近隣商業 | Land category 地目 | | Residential land 宅地 | Other limitations その他制限事項 | | Quasi-fire zones 準防火地域 | Overview and notices その他概要・特記事項 | | Contact: marked with a charge for each customer. , Building confirmation number: 01742 No. other 担当者:お客様毎に担当が付きます。、建築確認番号:01742号他 | Company profile 会社概要 | | <Marketing alliance (mediated)> Governor of Kanagawa Prefecture (1) No. 028428 (Ltd.) realistic agent Yubinbango221-0825 Kanagawa Prefecture, Kanagawa-ku, Yokohama-shi Sorimachi 1-7-1 US-1 building the third floor <販売提携(媒介)>神奈川県知事(1)第028428号(株)リアルエージェント〒221-0825 神奈川県横浜市神奈川区反町1-7-1 US‐1ビル3階 |
Local appearance photo現地外観写真  Local appearance (You can preview your! )
現地外観(ご内見できます!)
Livingリビング  dining
ダイニング
Kitchenキッチン  3 Kaiyoshitsu (with top light)
3階洋室(トップライト付き)
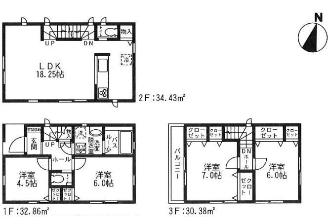
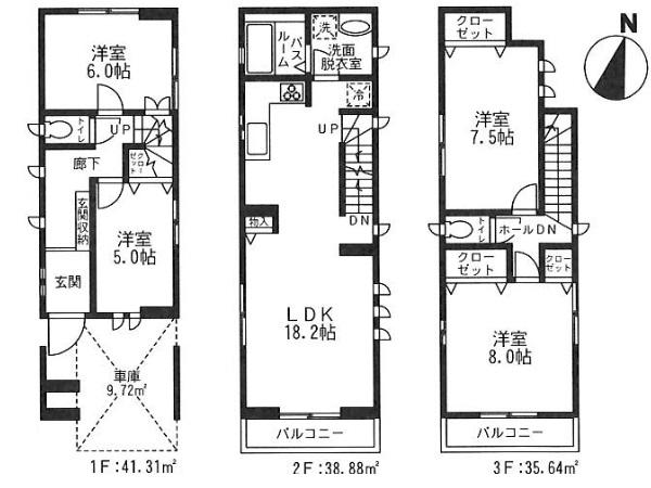
Floor plan間取り図  (A Building), Price 33,900,000 yen, 4LDK, Land area 78.18 sq m , Building area 97.67 sq m
(A号棟)、価格3390万円、4LDK、土地面積78.18m2、建物面積97.67m2
Local appearance photo現地外観写真  Local appearance (You can preview your! )
現地外観(ご内見できます!)
 Living
リビング
Bathroom浴室  System bus
システムバス
Kitchenキッチン  System kitchen
システムキッチン
Wash basin, toilet洗面台・洗面所  Bathroom vanity
洗面化粧台
 Toilet
トイレ
Local photos, including front road前面道路含む現地写真  Local appearance (You can preview your! )
現地外観(ご内見できます!)
Supermarketスーパー  800m until Maruetsu
マルエツまで800m
 The entire compartment Figure
全体区画図
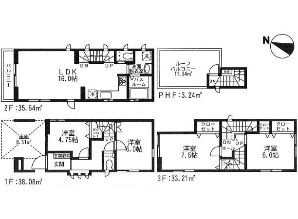
Floor plan間取り図  (B Building (with roof balcony)), Price 36,900,000 yen, 4LDK, Land area 60.28 sq m , Building area 110.17 sq m
(B号棟(ルーフバルコニー付))、価格3690万円、4LDK、土地面積60.28m2、建物面積110.17m2
Local photos, including front road前面道路含む現地写真  Local appearance (You can preview your! )
現地外観(ご内見できます!)
Park公園  300m to market park
市場公園まで300m
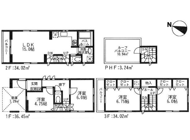
Floor plan間取り図  (C Building (with roof balcony)), Price 35,900,000 yen, 4LDK, Land area 57.1 sq m , Building area 107.73 sq m
(C号棟(ルーフバルコニー付))、価格3590万円、4LDK、土地面積57.1m2、建物面積107.73m2
Primary school小学校  Until the peace elementary school 350m
平安小学校まで350m
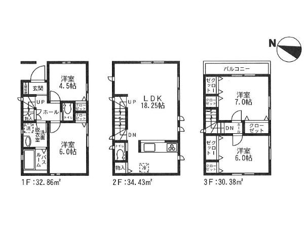
Floor plan間取り図  (E Building), Price 33,900,000 yen, 4LDK, Land area 78.2 sq m , Building area 97.67 sq m
(E号棟)、価格3390万円、4LDK、土地面積78.2m2、建物面積97.67m2
Junior high school中学校  500m to market junior high school
市場中学校まで500m
Floor plan間取り図  (F Building), Price 40,900,000 yen, 4LDK, Land area 65.03 sq m , Building area 115.83 sq m
(F号棟)、価格4090万円、4LDK、土地面積65.03m2、建物面積115.83m2
Location
|