New Homes » Kanto » Kanagawa Prefecture » Tsurumi-ku, Yokohama City


Kanagawa Prefecture Tsurumi-ku, Yokohama City
JR Keihin Tohoku Line "Tsurumi" 12 minutes Sueyoshi Fudomae walk 3 minutes by bus
Kamisueyoshi 2-chome ~ Newly built single-family
Spacious about 18 quires of LDK simple and cool appearance
Features pickup
Immediate Available / System kitchen / Bathroom Dryer / Warm water washing toilet seat / Underfloor Storage / TV monitor interphone / Floor heating
Price
34,800,000 yen
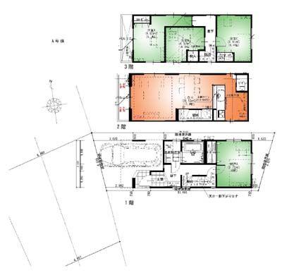
Floor plan
3LDK + S (storeroom)
Units sold
1 units
Land area
57.27 sq m (measured)
Building area
91.09 sq m
Driveway burden-road
Nothing, West 8.4m width
Completion date
November 2013
Address
Kanagawa Prefecture Tsurumi-ku, Yokohama City Kamisueyoshi 2
Traffic
JR Keihin Tohoku Line "Tsurumi" 12 minutes Sueyoshi Fudomae walk 3 minutes by bus
Person in charge
Rep Takashi Hasegawa
Contact
TEL: 0800-603-1901 [Toll free] mobile phone ・ Also available from PHS
Caller ID is not notified
Please contact the "saw SUUMO (Sumo)"
If it does not lead, If the real estate company
Building coverage, floor area ratio
60% ・ 200%
Time residents
Immediate available
Land of the right form
Ownership
Structure and method of construction
Wooden three-story
Use district
One dwelling
Overview and notices
Contact: Takashi Hasegawa, Facilities: Public Water Supply, This sewage, City gas, Building confirmation number: 01561
Company profile
<Mediation> Minister of Land, Infrastructure and Transport (2) No. 007,179 (one company) Real Estate Association (Corporation) metropolitan area real estate Fair Trade Council member (Ltd.) Benhausu Kawasaki Nishiguchi branch Yubinbango212-0014 Kawasaki-shi, Kanagawa-ku, Saiwai Omiya-cho, address 5 Futoo building first floor


Local appearance photo
Local appearance photo

Floor plan

Floor plan. 34,800,000 yen, 3LDK+S, Land area 57.27 sq m , Building area 91.09 sq m
34,800,000 yen, 3LDK+S, Land area 57.27 sq m , Building area 91.09 sq m

Kitchen

Kitchen. Example of construction
Example of construction

Local appearance photo
Local appearance photo

Living

Living. Example of construction
Example of construction

Bathroom

Bathroom. Example of construction
Example of construction

Entrance

Entrance. Example of construction
Example of construction

Other

Other. Example of construction
Example of construction

Other. Example of construction
Example of construction

Other. Example of construction
Example of construction

Other. Example of construction
Example of construction



Location