New Homes » Kanto » Kanagawa Prefecture » Tsurumi-ku, Yokohama City
 
| | Kanagawa Prefecture Tsurumi-ku, Yokohama City 神奈川県横浜市鶴見区 |
| Keikyū Main Line "Keikyu Tsurumi" walk 15 minutes 京急本線「京急鶴見」歩15分 |
| Good per sun for the south road. primary school, Since close to junior high school you attend with confidence children. 南道路のため陽当たり良好。小学校、中学校近くにありますのでお子様も安心して通えます。 |
| Pre-ground survey, 2 along the line more accessible, Facing south, System kitchen, Bathroom Dryer, Yang per good, Flat to the station, A quiet residential area, LDK15 tatami mats or more, Washbasin with shower, Face-to-face kitchen, Toilet 2 places, Bathroom 1 tsubo or more, South balcony, Double-glazing, Warm water washing toilet seat, TV with bathroom, Underfloor Storage, TV monitor interphone, Ventilation good, All living room flooring, Dish washing dryer, Water filter, Three-story or more, Living stairs, City gas, All rooms are two-sided lighting, Flat terrain 地盤調査済、2沿線以上利用可、南向き、システムキッチン、浴室乾燥機、陽当り良好、駅まで平坦、閑静な住宅地、LDK15畳以上、シャワー付洗面台、対面式キッチン、トイレ2ヶ所、浴室1坪以上、南面バルコニー、複層ガラス、温水洗浄便座、TV付浴室、床下収納、TVモニタ付インターホン、通風良好、全居室フローリング、食器洗乾燥機、浄水器、3階建以上、リビング階段、都市ガス、全室2面採光、平坦地 |
Features pickup 特徴ピックアップ | | Pre-ground survey / Immediate Available / 2 along the line more accessible / Facing south / System kitchen / Bathroom Dryer / Yang per good / All room storage / Flat to the station / A quiet residential area / LDK15 tatami mats or more / Around traffic fewer / Shaping land / Washbasin with shower / Face-to-face kitchen / Toilet 2 places / Bathroom 1 tsubo or more / South balcony / Double-glazing / Warm water washing toilet seat / TV with bathroom / Underfloor Storage / The window in the bathroom / TV monitor interphone / Ventilation good / All living room flooring / Dish washing dryer / Water filter / Three-story or more / Living stairs / City gas / All rooms are two-sided lighting / Flat terrain / Readjustment land within 地盤調査済 /即入居可 /2沿線以上利用可 /南向き /システムキッチン /浴室乾燥機 /陽当り良好 /全居室収納 /駅まで平坦 /閑静な住宅地 /LDK15畳以上 /周辺交通量少なめ /整形地 /シャワー付洗面台 /対面式キッチン /トイレ2ヶ所 /浴室1坪以上 /南面バルコニー /複層ガラス /温水洗浄便座 /TV付浴室 /床下収納 /浴室に窓 /TVモニタ付インターホン /通風良好 /全居室フローリング /食器洗乾燥機 /浄水器 /3階建以上 /リビング階段 /都市ガス /全室2面採光 /平坦地 /区画整理地内 | Price 価格 | | 32,800,000 yen 3280万円 | Floor plan 間取り | | 4LDK 4LDK | Units sold 販売戸数 | | 2 units 2戸 | Total units 総戸数 | | 3 units 3戸 | Land area 土地面積 | | 67.14 sq m ・ 67.17 sq m (20.30 tsubo ・ 20.31 tsubo) (Registration) 67.14m2・67.17m2(20.30坪・20.31坪)(登記) | Building area 建物面積 | | 88.8 sq m (26.86 tsubo) (Registration) 88.8m2(26.86坪)(登記) | Completion date 完成時期(築年月) | | August 2013 2013年8月 | Address 住所 | | Kanagawa Prefecture Tsurumi-ku, Yokohama City Sakaemachidori 1 神奈川県横浜市鶴見区栄町通1 | Traffic 交通 | | Keikyū Main Line "Keikyu Tsurumi" walk 15 minutes JR Keihin Tohoku Line "Tsurumi" walk 15 minutes Keikyu main line "Tsurumiichiba" walk 16 minutes 京急本線「京急鶴見」歩15分 JR京浜東北線「鶴見」歩15分 京急本線「鶴見市場」歩16分
| Related links 関連リンク | | [Related Sites of this company] 【この会社の関連サイト】 | Person in charge 担当者より | | [Regarding this property.] Kanagawa-ku,, Kohoku-ku, Tsurumi-ku, the property is to the Corporation Republic of home sales. There are a number of non-public property. Please tell us your desired conditions. We offer you to commensurate property. 【この物件について】神奈川区、港北区、鶴見区の物件は株式会社共和住宅販売へ。未公開物件多数あります。ご希望条件をお聞かせください。あなたにみあう物件をご提案いたします。 | Contact お問い合せ先 | | TEL: 0800-602-5414 [Toll free] mobile phone ・ Also available from PHS Caller ID is not notified Please contact the "saw SUUMO (Sumo)" If it does not lead, If the real estate company TEL:0800-602-5414【通話料無料】携帯電話・PHSからもご利用いただけます 発信者番号は通知されません 「SUUMO(スーモ)を見た」と問い合わせください つながらない方、不動産会社の方は
| Most price range 最多価格帯 | | 32 million yen (2 units) 3200万円台(2戸) | Building coverage, floor area ratio 建ぺい率・容積率 | | Kenpei rate: 60%, Volume ratio: 200% 建ペい率:60%、容積率:200% | Time residents 入居時期 | | Immediate available 即入居可 | Land of the right form 土地の権利形態 | | Ownership 所有権 | Structure and method of construction 構造・工法 | | Wooden three-story 木造3階建て | Use district 用途地域 | | One dwelling 1種住居 | Company profile 会社概要 | | <Mediation> Governor of Kanagawa Prefecture (1) No. 027655 (Ltd.) Republic of home sales Yubinbango221-0014 Kanagawa Prefecture, Kanagawa-ku, Yokohama-shi Irie 1-33-28 <仲介>神奈川県知事(1)第027655号(株)共和住宅販売〒221-0014 神奈川県横浜市神奈川区入江1-33-28 |
Local appearance photo現地外観写真  Local shooting (3 Building)
現地撮影(3号棟)
Livingリビング  Spacious 16.7 Pledge
広々16.7帖
Kitchenキッチン  Dishwasher, Water purifier systems with kitchen
食洗器、浄水器付きシステムキッチン
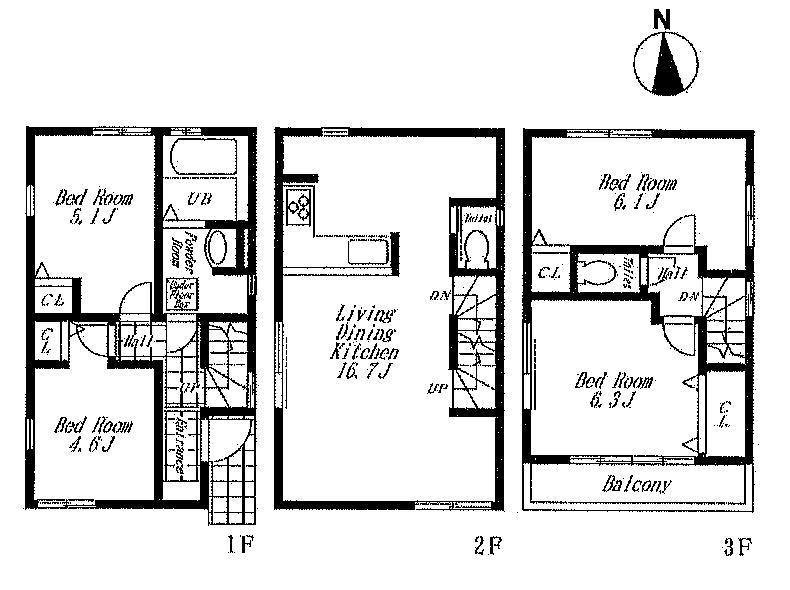
Floor plan間取り図  (1), Price 32,800,000 yen, 4LDK, Land area 67.14 sq m , Building area 88.8 sq m
(1)、価格3280万円、4LDK、土地面積67.14m2、建物面積88.8m2
Livingリビング  Living stairs
リビング階段
Bathroom浴室  LCD TV unit bus
液晶テレビ付きユニットバス
Non-living roomリビング以外の居室  6.1 Pledge Western-style
6.1帖洋室
Wash basin, toilet洗面台・洗面所  Shampoo dresser
シャンプードレッサー
Toiletトイレ  Washlet type
ウォシュレットタイプ
Supermarketスーパー  Ito-Yokado to Tsurumi shop 876m
イトーヨーカドー鶴見店まで876m
 The entire compartment Figure
全体区画図
Floor plan間取り図  (2), Price 32,800,000 yen, 4LDK, Land area 67.17 sq m , Building area 88.8 sq m
(2)、価格3280万円、4LDK、土地面積67.17m2、建物面積88.8m2
Convenience storeコンビニ  Seven-Eleven 363m up to 2-chome Yokohama peace-cho
セブンイレブン横浜平安町2丁目店まで363m
Drug storeドラッグストア  Create es ・ 773m until Dee Tsurumi Daito-cho shop
クリエイトエス・ディー鶴見大東町店まで773m
Junior high school中学校  246m to Yokohama Municipal Shiota Junior High School
横浜市立潮田中学校まで246m
Primary school小学校  163m to Yokohama Municipal Shiota Elementary School
横浜市立潮田小学校まで163m
Kindergarten ・ Nursery幼稚園・保育園  Shiota 557m to kindergarten
潮田幼稚園まで557m
Hospital病院  736m to Moriyama hospital
森山病院まで736m
Park公園  582m to the peace park
平安公園まで582m
Location
|