|
|
Kanagawa Prefecture Tsurumi-ku, Yokohama City
神奈川県横浜市鶴見区
|
|
Tokyu Toyoko Line "Kikuna" walk 17 minutes
東急東横線「菊名」歩17分
|
|
In quiet flat residential area! Commute ・ Commute ・ Shopping convenient! Per yang ・ Ventilation good! Is a popular face-to-face kitchen conversation bouncing of large loft with! Family!
閑静な平坦住宅地内!通勤・通学・買物至便!陽当り・通風良好!大型ロフト付!家族の会話も弾む人気の対面キッチンです!
|
|
■ All-in-one water purifier ■ Electric shutter (part) ■ Dish washing dryer ■ Room pair glass ■ With entrance some people a sense of sensor ■ Bathroom ventilation dryer ■ Warm water washing toilet seat with remote control ■ Color monitor intercom ■ With entrance card key ■ Bathroom TV
■オールインワン浄水器■電動シャッター(一部)■食器洗乾燥機■居室ペアガラス■玄関一部人感センサー付■浴室換気乾燥機■リモコン付温水洗浄便座■カラーモニターインターホン■玄関カードキー付■浴室テレビ
|
Features pickup 特徴ピックアップ | | 2 along the line more accessible / Bathroom Dryer / Yang per good / A quiet residential area / Face-to-face kitchen / 2-story / Double-glazing / Warm water washing toilet seat / loft / TV with bathroom / Underfloor Storage / The window in the bathroom / TV monitor interphone / Dish washing dryer / Water filter / Flat terrain 2沿線以上利用可 /浴室乾燥機 /陽当り良好 /閑静な住宅地 /対面式キッチン /2階建 /複層ガラス /温水洗浄便座 /ロフト /TV付浴室 /床下収納 /浴室に窓 /TVモニタ付インターホン /食器洗乾燥機 /浄水器 /平坦地 |
Price 価格 | | 29,800,000 yen 2980万円 |
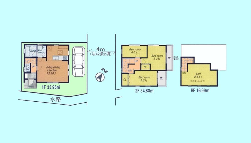
Floor plan 間取り | | 3LDK 3LDK |
Units sold 販売戸数 | | 1 units 1戸 |
Land area 土地面積 | | 68.76 sq m (measured) 68.76m2(実測) |
Building area 建物面積 | | 68.75 sq m (measured) 68.75m2(実測) |
Driveway burden-road 私道負担・道路 | | 10.47 sq m , Northeast 4m width 10.47m2、北東4m幅 |
Completion date 完成時期(築年月) | | February 2014 2014年2月 |
Address 住所 | | Kanagawa Prefecture Tsurumi-ku, Yokohama City Baba 1 神奈川県横浜市鶴見区馬場1 |
Traffic 交通 | | Tokyu Toyoko Line "Kikuna" walk 17 minutes Tokyu Toyoko Line "Myorenji" walk 23 minutes JR Yokohama Line "large" walk 27 minutes 東急東横線「菊名」歩17分 東急東横線「妙蓮寺」歩23分 JR横浜線「大口」歩27分
|
Related links 関連リンク | | [Related Sites of this company] 【この会社の関連サイト】 |
Person in charge 担当者より | | Rep Tsuchiya KyoHisashi family laughing everyone is crying, The most important place for the family to nurture a lot of memories. Please bumped pounding in his feelings for the of your customers housing. Let's be sure to get! 担当者土屋 共央家族みんなが泣いたり笑ったり、たくさんの思い出をはぐくむ家族にとって一番大切な場所。御客様の住宅に対する想いを自分にガンガンぶつけてください。必ずゲットしましょう! |
Contact お問い合せ先 | | TEL: 0800-603-2880 [Toll free] mobile phone ・ Also available from PHS Caller ID is not notified Please contact the "saw SUUMO (Sumo)" If it does not lead, If the real estate company TEL:0800-603-2880【通話料無料】携帯電話・PHSからもご利用いただけます 発信者番号は通知されません 「SUUMO(スーモ)を見た」と問い合わせください つながらない方、不動産会社の方は
|
Building coverage, floor area ratio 建ぺい率・容積率 | | 60% ・ Hundred percent 60%・100% |
Time residents 入居時期 | | Consultation 相談 |
Land of the right form 土地の権利形態 | | Ownership 所有権 |
Structure and method of construction 構造・工法 | | Wooden 2-story 木造2階建 |
Use district 用途地域 | | One low-rise 1種低層 |
Other limitations その他制限事項 | | Set-back: already, Quasi-fire zones セットバック:済、準防火地域 |
Overview and notices その他概要・特記事項 | | Contact: Tsuchiya KyoHisashi, Facilities: Public Water Supply, This sewage, City gas, Building confirmation number: No. 13KAK Ken確 04995, Parking: car space 担当者:土屋 共央、設備:公営水道、本下水、都市ガス、建築確認番号:第13KAK建確04995号、駐車場:カースペース |
Company profile 会社概要 | | <Mediation> Governor of Kanagawa Prefecture (3) The 023,713 No. Century 21 (Ltd.) Get House Yubinbango223-0052 Yokohama-shi, Kanagawa-ku, Kohoku Tsunashimahigashi 1-6-3 TS Yoshihara building second floor <仲介>神奈川県知事(3)第023713号センチュリー21(株)ゲットハウス〒223-0052 神奈川県横浜市港北区綱島東1-6-3 TS吉原ビル2階 |