New Homes » Kanto » Kanagawa Prefecture » Tsurumi-ku, Yokohama City
 
| | Kanagawa Prefecture Tsurumi-ku, Yokohama City 神奈川県横浜市鶴見区 |
| Keikyu main line "Namamugi" walk 11 minutes 京急本線「生麦」歩11分 |
| Nearly flat walk 11 minutes to the station ・ Southeast, Good day per southwest road contact road ・ All building livable 2-story ・ Local will guide you, Please feel free to contact us. 駅までほぼ平坦徒歩11分・南東、南西道路接道につき日当たり良好・全棟暮らしやすい2階建・現地ご案内いたします、お気軽にお問い合わせください。 |
| Popular face-to-face kitchen adoption ・ Bathroom spacious 1 pyeong type ・ Flat 35S corresponding housing ・ Good living environment per quiet residential area ・ With loft ・ Room pair glass 人気の対面キッチン採用・浴室広々1坪タイプ・フラット35S対応住宅・閑静な住宅街につき住環境良好・ロフト付・居室ペアガラス |
Features pickup 特徴ピックアップ | | Corresponding to the flat-35S / 2 along the line more accessible / Fiscal year Available / System kitchen / Bathroom Dryer / Yang per good / All room storage / Flat to the station / Siemens south road / A quiet residential area / LDK15 tatami mats or more / Corner lot / Washbasin with shower / Face-to-face kitchen / Toilet 2 places / Bathroom 1 tsubo or more / 2-story / Southeast direction / South balcony / Double-glazing / Warm water washing toilet seat / loft / Underfloor Storage / The window in the bathroom / TV monitor interphone / Ventilation good / All living room flooring / Water filter / City gas / All rooms are two-sided lighting / Flat terrain / All rooms facing southeast フラット35Sに対応 /2沿線以上利用可 /年度内入居可 /システムキッチン /浴室乾燥機 /陽当り良好 /全居室収納 /駅まで平坦 /南側道路面す /閑静な住宅地 /LDK15畳以上 /角地 /シャワー付洗面台 /対面式キッチン /トイレ2ヶ所 /浴室1坪以上 /2階建 /東南向き /南面バルコニー /複層ガラス /温水洗浄便座 /ロフト /床下収納 /浴室に窓 /TVモニタ付インターホン /通風良好 /全居室フローリング /浄水器 /都市ガス /全室2面採光 /平坦地 /全室東南向き | Property name 物件名 | | "All building 2-story! All building flat land of the south road! ! "Higashiterao 4-chome newly built condominiums all three buildings 《全棟2階建!全棟平坦地の南側道路!!》東寺尾4丁目新築分譲住宅全3棟 | Price 価格 | | 35,800,000 yen ~ 36,800,000 yen 3580万円 ~ 3680万円 | Floor plan 間取り | | 3LDK ~ 4LDK 3LDK ~ 4LDK | Units sold 販売戸数 | | 3 units 3戸 | Total units 総戸数 | | 3 units 3戸 | Land area 土地面積 | | 70.06 sq m ~ 76.66 sq m (21.19 tsubo ~ 23.18 tsubo) (measured) 70.06m2 ~ 76.66m2(21.19坪 ~ 23.18坪)(実測) | Building area 建物面積 | | 83.1 sq m ~ 88.63 sq m (25.13 tsubo ~ 26.81 tsubo) (measured) 83.1m2 ~ 88.63m2(25.13坪 ~ 26.81坪)(実測) | Driveway burden-road 私道負担・道路 | | Set back separately 0.8m2 ~ 4.18m2 <B ・ Building C is driveway burden 72m2 × 1 / 9 There is a separate> セットバック別途0.8m2 ~ 4.18m2<B・C棟は私道負担72m2×1/9別途あり> | Completion date 完成時期(築年月) | | March 2014 in late schedule 2014年3月下旬予定 | Address 住所 | | Kanagawa Prefecture Tsurumi-ku, Yokohama City Higashiterao 4 神奈川県横浜市鶴見区東寺尾4 | Traffic 交通 | | Keikyu main line "Namamugi" walk 11 minutes Keikyu main line "Kagetsuen before" walk 20 minutes JR Keihin Tohoku Line "Shin Koyasu" walk 20 minutes 京急本線「生麦」歩11分 京急本線「花月園前」歩20分 JR京浜東北線「新子安」歩20分
| Person in charge 担当者より | | We are dedicating personnel system for each person in charge customers. 担当者お客様毎に専属担当者制です。 | Contact お問い合せ先 | | TEL: 0800-603-7504 [Toll free] mobile phone ・ Also available from PHS Caller ID is not notified Please contact the "saw SUUMO (Sumo)" If it does not lead, If the real estate company TEL:0800-603-7504【通話料無料】携帯電話・PHSからもご利用いただけます 発信者番号は通知されません 「SUUMO(スーモ)を見た」と問い合わせください つながらない方、不動産会社の方は
| Building coverage, floor area ratio 建ぺい率・容積率 | | Kenpei rate: 60%, Volume ratio: 200% 建ペい率:60%、容積率:200% | Time residents 入居時期 | | March 2014 in late schedule 2014年3月下旬予定 | Land of the right form 土地の権利形態 | | Ownership 所有権 | Structure and method of construction 構造・工法 | | Wooden 2-story (framing method) 木造2階建(軸組工法) | Use district 用途地域 | | Quasi-residence 準住居 | Land category 地目 | | Residential land 宅地 | Other limitations その他制限事項 | | Height district, Quasi-fire zones, Height ceiling Yes 高度地区、準防火地域、高さ最高限度有 | Overview and notices その他概要・特記事項 | | The person in charge: is dedicating personnel system for each customer. , Building confirmation number: No. 13KAK Ken確 5894 other 担当者:お客様毎に専属担当者制です。、建築確認番号:第13KAK建確5894号他 | Company profile 会社概要 | | <Mediation> Kanagawa Governor (2) the first 026,326 No. Century 21 Global Home Co., Ltd. Sales Lesson 5 Yubinbango221-0825 Kanagawa Prefecture, Kanagawa-ku, Yokohama-shi Sorimachi 4-37-3 Nissin building Yokohama Sorimachi first floor ・ Second floor <仲介>神奈川県知事(2)第026326号センチュリー21グローバルホーム(株)営業5課〒221-0825 神奈川県横浜市神奈川区反町4-37-3 日伸ビル横浜反町1階・2階 |
Station駅  Kyokyusen "Namamugi" nearly flat 11 minutes' walk from the station. Frequently there is a bus service from JR "Tsurumi" station.
京急線「生麦」駅からほぼ平坦徒歩11分。JR「鶴見」駅からも頻繁にバスの便があります。
Local photos, including front road前面道路含む現地写真  It was taken from the southeast side of the road. Even the shadow of long this time, Most of the site has hit the sunshine. 2013 November 17 shooting
南東道路側から撮影しました。影の長いこの時期でも、敷地のほとんどは陽射しがあたっています。2013年11月17日撮影
Local appearance photo現地外観写真  It was taken from the southwest side of the road. 2013 November 17 shooting
南西道路側から撮影しました。2013年11月17日撮影
 It is near the site of Building A. It will start construction in the future terrain. 2013 November 17 shooting
A棟の敷地近辺です。これから整地して建築がはじまります。2013年11月17日撮影
Floor plan間取り図  (A Building), Price 35,800,000 yen, 3LDK, Land area 70.82 sq m , Building area 83.1 sq m
(A号棟)、価格3580万円、3LDK、土地面積70.82m2、建物面積83.1m2
Station駅  Kyokyusen "Namamugi" 880m to the station
京急線「生麦」駅まで880m
 The entire compartment Figure
全体区画図
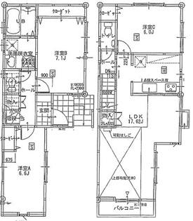
Floor plan間取り図  (B Building), Price 36,800,000 yen, 4LDK, Land area 70.06 sq m , Building area 88.63 sq m
(B号棟)、価格3680万円、4LDK、土地面積70.06m2、建物面積88.63m2
Supermarketスーパー  Yukopu Kishitani to the store 650m
ユーコープ岸谷店まで650m
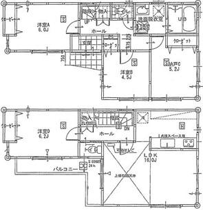
Floor plan間取り図  (C Building), Price 35,800,000 yen, 4LDK, Land area 76.66 sq m , Building area 88.28 sq m
(C号棟)、価格3580万円、4LDK、土地面積76.66m2、建物面積88.28m2
Park公園  700m until Kishitani park
岸谷公園まで700m
 700m until Koyasudai park
子安台公園まで700m
Convenience storeコンビニ  80m to FamilyMart
ファミリーマートまで80m
Home centerホームセンター  500m to Shimachu Co., Ltd. home improvement Yokohama
島忠ホームセンター横浜店まで500m
Station駅  2300m to Tsurumi Station
鶴見駅まで2300m
Location
|