New Homes » Kanto » Kanagawa Prefecture » Tsurumi-ku, Yokohama City
 
| | Kanagawa Prefecture Tsurumi-ku, Yokohama City 神奈川県横浜市鶴見区 |
| Tokyu Toyoko Line "Kikuna" walk 17 minutes 東急東横線「菊名」歩17分 |
| Tokyu Toyoko Line "Kikuna" newly built single-family nestled in a quiet residential area of walking distance from the station. 3LDK + large loft 8 pledge more than the building is dishwasher and bathroom TV, etc. in town. 東急東横線「菊名」駅より徒歩圏の閑静な住宅地に佇む新築一戸建て。3LDK+大型ロフト8帖以上に建物は食洗機や浴室テレビ等充実設備。 |
| Room pair glass, Bathroom TV, Dishwasher, Bathroom Dryer, Large loft other 居室ペアガラス、浴室テレビ、食洗機、浴室乾燥機、大型ロフト他 |
Features pickup 特徴ピックアップ | | 2 along the line more accessible / System kitchen / Yang per good / A quiet residential area / Face-to-face kitchen / Bathroom 1 tsubo or more / 2-story / Double-glazing / loft / TV with bathroom / Underfloor Storage / The window in the bathroom / All living room flooring / Dish washing dryer 2沿線以上利用可 /システムキッチン /陽当り良好 /閑静な住宅地 /対面式キッチン /浴室1坪以上 /2階建 /複層ガラス /ロフト /TV付浴室 /床下収納 /浴室に窓 /全居室フローリング /食器洗乾燥機 | Event information イベント情報 | | ・ With respect to this property, So we have prepared a large number of photos from various angles, If you contact us we will send you by e-mail. ・ And we will respond individually to the financial planner is consultation of the funds on housing purchase. Please contact us than do not hesitate to right link website consultation is also possible because of the e-mail. ・こちらの物件に関して、様々な角度からの写真を多数用意しておりますので、お問合せいただければメールにてお送りします。・ファイナンシャルプランナーが住宅購入に関する資金のご相談に個別に対応させて頂きます。メールでのご相談も可能ですのでお気軽に右記リンクホームページよりお問い合わせください。 | Property name 物件名 | | ● Kikuna Station walk 17 minutes ● 3LDK + large loft ● newly built single-family 29,800,000 yen ●菊名駅徒歩17分 ●3LDK+大型ロフト付 ●新築一戸建て2980万円 | Price 価格 | | 29,800,000 yen 2980万円 | Floor plan 間取り | | 3LDK 3LDK | Units sold 販売戸数 | | 1 units 1戸 | Total units 総戸数 | | 1 units 1戸 | Land area 土地面積 | | 68.76 sq m (registration) 68.76m2(登記) | Building area 建物面積 | | 68.75 sq m (registration) 68.75m2(登記) | Driveway burden-road 私道負担・道路 | | Share equity 198.95 sq m × (1 / 19), Northeast 4m width 共有持分198.95m2×(1/19)、北東4m幅 | Completion date 完成時期(築年月) | | February 2014 2014年2月 | Address 住所 | | Kanagawa Prefecture Tsurumi-ku, Yokohama City Baba 1 神奈川県横浜市鶴見区馬場1 | Traffic 交通 | | Tokyu Toyoko Line "Kikuna" walk 17 minutes JR Keihin Tohoku Line "Tsurumi" bus 14 minutes Baba seven-chome, walk 2 minutes 東急東横線「菊名」歩17分 JR京浜東北線「鶴見」バス14分馬場七丁目歩2分
| Related links 関連リンク | | [Related Sites of this company] 【この会社の関連サイト】 | Person in charge 担当者より | | Person in charge of real-estate and building Hagiya Koji recently, Although the era of easy to draw a variety of information on a computer one, Real estate is located in a lot of things you do not know and do not go to the local. "If you wish to field trips do not hesitate please let me know! 担当者宅建萩谷 浩二最近は、パソコン一つで様々な情報を簡単に引き出せる時代ですが、不動産は現地へ行かないとわからないことがたくさんあります。『現地見学をご希望の際はお気軽にご一報ください! | Contact お問い合せ先 | | TEL: 0120-694790 [Toll free] Please contact the "saw SUUMO (Sumo)" TEL:0120-694790【通話料無料】「SUUMO(スーモ)を見た」と問い合わせください | Building coverage, floor area ratio 建ぺい率・容積率 | | 60% ・ Hundred percent 60%・100% | Time residents 入居時期 | | March 2014 schedule 2014年3月予定 | Land of the right form 土地の権利形態 | | Ownership 所有権 | Structure and method of construction 構造・工法 | | Wooden 2-story 木造2階建 | Use district 用途地域 | | One low-rise 1種低層 | Other limitations その他制限事項 | | Quasi-fire zones, Site area minimum Yes, Shade limit Yes, Irregular land 準防火地域、敷地面積最低限度有、日影制限有、不整形地 | Overview and notices その他概要・特記事項 | | Contact: Hagiya Koji, Facilities: Public Water Supply, This sewage, City gas, Building confirmation number: No. 13KAK Ken確 04995, Parking: car space 担当者:萩谷 浩二、設備:公営水道、本下水、都市ガス、建築確認番号:第13KAK建確04995号、駐車場:カースペース | Company profile 会社概要 | | <Mediation> Kanagawa Governor (2) No. 026229 (the company), Kanagawa Prefecture Building Lots and Buildings Transaction Business Association (Corporation) metropolitan area real estate Fair Trade Council member FP housing counseling network (Ltd.) home town of Yokohama, Kanagawa Prefecture Yubinbango244-0801 Totsuka-ku, Yokohama-shi Shinano-machi 517-1 Park house south of the city 1F <仲介>神奈川県知事(2)第026229号(社)神奈川県宅地建物取引業協会会員 (公社)首都圏不動産公正取引協議会加盟FP住宅相談ネットワーク(株)ホームタウンよこはま〒244-0801 神奈川県横浜市戸塚区品濃町517-1 パークハウス南の街1F |
Park公園  Baba flowers and trees Gardens
馬場花木園
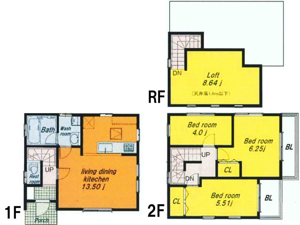
Floor plan間取り図  29,800,000 yen, 3LDK, Land area 68.76 sq m , Building area 68.75 sq m floor plan
2980万円、3LDK、土地面積68.76m2、建物面積68.75m2 間取り図
Supermarketスーパー  There is a large supermarket in the 2090m close to Olympic Okurayama shop. Shopping Convenience
オリンピック大倉山店まで2090m 近隣に大型スーパーあります。お買い物便利
Kindergarten ・ Nursery幼稚園・保育園  Kindergarten relieved to near 290m kindergarten to Sumiregaoka kindergarten
すみれが丘幼稚園まで290m 幼稚園近くて通園安心
Junior high school中学校  It is 910m junior high school near to Yokohama Municipal Kaminomiya junior high school. It is a school safe.
横浜市立上の宮中学校まで910m 中学校近くです。通学安心ですね。
Primary school小学校  It is 360m primary school near to Yokohama Municipal Baba Elementary School. It is a school safe.
横浜市立馬場小学校まで360m 小学校近くです。通学安心ですね。
Hospital病院  There is a large hospital in 1030m neighborhood Kikuna to Memorial Hospital.
菊名記念病院まで1030m 近隣に大型病院あります。
Park公園  How about in your walk in the 600m holiday until Baba flowers and trees Gardens
馬場花木園まで600m 休日にはお散歩でもいかがでしょうか
 340m we can play with everyone in a large park to Baba Akamon park.
馬場赤門公園まで340m 大きな公園で皆さんで遊べます。
Station駅  Until Kikuna Station 1360m Tokyu Toyoko Line, JR Yokohama line will be available.
菊名駅まで1360m 東急東横線、JR横浜線がご利用になれます。
Kindergarten ・ Nursery幼稚園・保育園  Day care peace of mind near 830m nursery until Baba Nursery.
馬場保育園まで830m 保育園近くで通園安心。
Location
|