New Homes » Kanto » Kanagawa Prefecture » Tsurumi-ku, Yokohama City
 
| | Kanagawa Prefecture Tsurumi-ku, Yokohama City 神奈川県横浜市鶴見区 |
| JR Keihin Tohoku Line "Tsurumi" walk 19 minutes JR京浜東北線「鶴見」歩19分 |
| Face-to-face kitchen, In the living room stairs, Dwelling family of communication can take active. primary school ・ Nursery school is located within a 7-minute walk, Is a convenient living environment in the small children of the drop off and pick up and school! 対面式キッチン、リビング階段で、家族のコミュニケーションが活発に取れる住まい。小学校・保育園が徒歩7分以内にあり、小さなお子さまの送り迎えや通学に便利な住環境です! |
| Parking two Allowed (4 ・ 6 ・ 7 ・ 9 Building), System kitchen, All room storage, Corner lot (3 Building), Face-to-face kitchen, The window in the bathroom, Dish washing dryer, Three-story or more, All rooms are two-sided lighting, Toilet 2 places 駐車2台可(4・6・7・9号棟)、システムキッチン、全居室収納、角地(3号棟)、対面式キッチン、浴室に窓、食器洗乾燥機、3階建以上、全室2面採光、トイレ2ヶ所 |
Features pickup 特徴ピックアップ | | Parking two Allowed / System kitchen / All room storage / Corner lot / Face-to-face kitchen / Toilet 2 places / The window in the bathroom / Dish washing dryer / Three-story or more / Living stairs / City gas / All rooms are two-sided lighting 駐車2台可 /システムキッチン /全居室収納 /角地 /対面式キッチン /トイレ2ヶ所 /浴室に窓 /食器洗乾燥機 /3階建以上 /リビング階段 /都市ガス /全室2面採光 | Property name 物件名 | | Housing that lively conversation of family in the dishwasher with a face-to-face kitchen. 食洗機付き対面式キッチンで家族の会話がはずむ住まい。 | Price 価格 | | 36,800,000 yen ~ 38,800,000 yen 3680万円 ~ 3880万円 | Floor plan 間取り | | 2LDK + 2S (storeroom) ~ 4LDK 2LDK+2S(納戸) ~ 4LDK | Units sold 販売戸数 | | 7 units 7戸 | Total units 総戸数 | | 9 units 9戸 | Land area 土地面積 | | 55.16 sq m ~ 81.83 sq m (measured) 55.16m2 ~ 81.83m2(実測) | Building area 建物面積 | | 103.49 sq m ~ 115.55 sq m (measured) 103.49m2 ~ 115.55m2(実測) | Driveway burden-road 私道負担・道路 | | Road width: 4.3m ・ 5.2m, Asphaltic pavement 道路幅:4.3m・5.2m、アスファルト舗装 | Completion date 完成時期(築年月) | | 2013 end of November 2013年11月末 | Address 住所 | | Kanagawa Prefecture Tsurumi-ku, Yokohama City Shimosueyoshi 1 神奈川県横浜市鶴見区下末吉1 | Traffic 交通 | | JR Keihin Tohoku Line "Tsurumi" walk 19 minutes JR Keihin Tohoku Line "Tsurumi" bus 6 minutes Shimosueyoshi national highway wallet 2 minutes JR京浜東北線「鶴見」歩19分 JR京浜東北線「鶴見」バス6分下末吉国道際歩2分
| Related links 関連リンク | | [Related Sites of this company] 【この会社の関連サイト】 | Person in charge 担当者より | | Personnel Yohei Kaneda Age: 20 Daigyokai experience: When you are purchasing two years My Home, Suffer from anxiety, I think that there be bothering. When such, And it is in your near, Help would be greatly possible to eliminate the anxiety and worries. * Not for each property attaches responsible for each customer 担当者金田洋平年齢:20代業界経験:2年マイホームをご購入される際、不安を抱え、悩まれることもあると思います。そのような時、お客様の傍にいて、不安や悩みを解消するお手伝いが出来れば幸いです。*物件毎ではなくお客様毎に担当がつきます | Contact お問い合せ先 | | TEL: 0800-603-1506 [Toll free] mobile phone ・ Also available from PHS Caller ID is not notified Please contact the "saw SUUMO (Sumo)" If it does not lead, If the real estate company TEL:0800-603-1506【通話料無料】携帯電話・PHSからもご利用いただけます 発信者番号は通知されません 「SUUMO(スーモ)を見た」と問い合わせください つながらない方、不動産会社の方は
| Most price range 最多価格帯 | | 37 million yen (4 units) 3700万円台(4戸) | Building coverage, floor area ratio 建ぺい率・容積率 | | Kenpei rate: 60% ・ 80%, Volume ratio: 200% ・ 300% 建ペい率:60%・80%、容積率:200%・300% | Time residents 入居時期 | | Consultation 相談 | Land of the right form 土地の権利形態 | | Ownership 所有権 | Structure and method of construction 構造・工法 | | Wooden three-story 木造3階建 | Use district 用途地域 | | Residential, One dwelling, Commerce 近隣商業、1種住居、商業 | Land category 地目 | | Residential land 宅地 | Other limitations その他制限事項 | | Height district, Quasi-fire zones 高度地区、準防火地域 | Overview and notices その他概要・特記事項 | | Contact: Yohei Kaneda, Building confirmation number: the H25 building certification No. KBI00196 担当者:金田洋平、建築確認番号:第H25確認建築KBI00196号 | Company profile 会社概要 | | <Mediation> Minister of Land, Infrastructure and Transport (2) No. 007124 (Corporation) All Japan Real Estate Association (Corporation) metropolitan area real estate Fair Trade Council member (Ltd.) living life Kawasaki branch Yubinbango210-0012 Kawasaki City, Kanagawa Prefecture, Kawasaki-ku, Miyamae-cho, 2-3 living life Kawasaki building <仲介>国土交通大臣(2)第007124号(公社)全日本不動産協会会員 (公社)首都圏不動産公正取引協議会加盟(株)リビングライフ川崎支店〒210-0012 神奈川県川崎市川崎区宮前町2-3 リビングライフ川崎ビル |
Local appearance photo現地外観写真  Local appearance (Building 2: 2013 December shooting)
現地外観(2号棟:平成25年12月撮影)
Livingリビング  Living Room (Building 2: 2013 December shooting)
リビング(2号棟:平成25年12月撮影)
Kitchenキッチン  Dishwasher kitchen (Building 2: 2013 December shooting)
食洗機付きキッチン(2号棟:平成25年12月撮影)
Floor plan間取り図  (Building 2), Price 36,800,000 yen, 3LDK+S, Land area 55.16 sq m , Building area 111.82 sq m
(2号棟)、価格3680万円、3LDK+S、土地面積55.16m2、建物面積111.82m2
Local appearance photo現地外観写真  There is a sense of open corner lot (Building 3: 2013 December shooting)
開放感ある角地(3号棟:平成25年12月撮影)
Livingリビング  Living (3 Building: 2013 December shooting)
リビング(3号棟:平成25年12月撮影)
Bathroom浴室  Bathroom (Building 2: 2013 December shooting)
バスルーム(2号棟:平成25年12月撮影)
Kitchenキッチン  You momentum conversation with the family in the face-to-face (Building 2: 2013 December shooting)
対面式で家族との会話が弾みます(2号棟:平成25年12月撮影)
Primary school小学校  500m to Yokohama Municipal Shimosueyoshi Elementary School
横浜市立下末吉小学校まで500m
Floor plan間取り図  (3 Building), Price 38,800,000 yen, 4LDK, Land area 60.48 sq m , Building area 115.55 sq m
(3号棟)、価格3880万円、4LDK、土地面積60.48m2、建物面積115.55m2
Local appearance photo現地外観写真  Local appearance (4 Building: 2013 December shooting)
現地外観(4号棟:平成25年12月撮影)
Livingリビング  Living (4 Building: 2013 December shooting)
リビング(4号棟:平成25年12月撮影)
Bathroom浴室  Bathroom (Building 3: 2013 December shooting)
バスルーム(3号棟:平成25年12月撮影)
Kitchenキッチン  Dishwasher kitchen (Building 3: 2013 December shooting)
食洗機付きキッチン(3号棟:平成25年12月撮影)
Junior high school中学校  1100m to Yokohama Municipal Sueyoshi junior high school
横浜市立末吉中学校まで1100m
Floor plan間取り図  (4 Building), Price 37,800,000 yen, 2LDK+2S, Land area 81.53 sq m , Building area 104.53 sq m
(4号棟)、価格3780万円、2LDK+2S、土地面積81.53m2、建物面積104.53m2
Local appearance photo現地外観写真  Parking two possible (4 Building: 2013 December shooting)
駐車2台可能(4号棟:平成25年12月撮影)
Livingリビング  Living (6 Building: 2013 December shooting)
リビング(6号棟:平成25年12月撮影)
Bathroom浴室  Bathroom (4 Building: 2013 December shooting)
バスルーム(4号棟:平成25年12月撮影)
Kitchenキッチン  With dishwasher face-to-face kitchen (4 Building: 2013 December shooting)
食洗機付き対面式キッチン(4号棟:平成25年12月撮影)
Kindergarten ・ Nursery幼稚園・保育園  Sueyoshi smiling 150m to nursery school
末吉にこにこ保育園まで150m
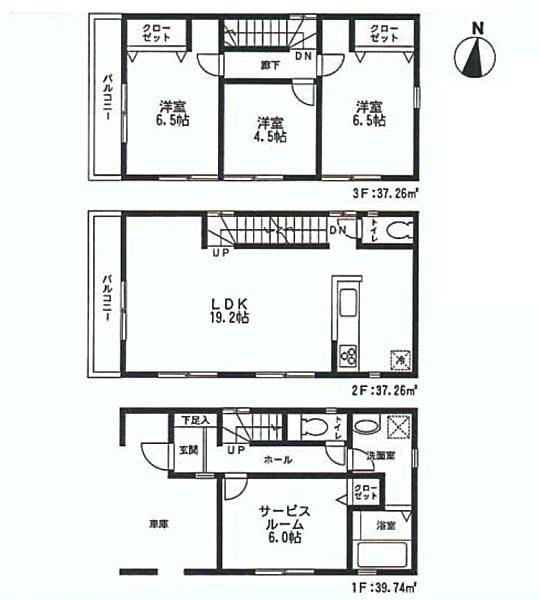
Floor plan間取り図  500m to Yokohama Municipal Shimosueyoshi Elementary School
横浜市立下末吉小学校まで500m
 500m to Yokohama Municipal Shimosueyoshi Elementary School
横浜市立下末吉小学校まで500m
 500m to Yokohama Municipal Shimosueyoshi Elementary School
横浜市立下末吉小学校まで500m
 500m to Yokohama Municipal Shimosueyoshi Elementary School
横浜市立下末吉小学校まで500m
Park公園  1100m to Motomiya refreshing park
元宮さわやか公園まで1100m
 1800m to market the old Tokaido park
市場旧東海道公園まで1800m
Location
|